电脑桌面
添加小米粒文库到电脑桌面
安装后可以在桌面快捷访问

脚手架支撑方案模板

脚手架支撑方案模板_第1页
1/65
脚手架支撑方案模板_第2页
2/65
脚手架支撑方案模板_第3页
3/65
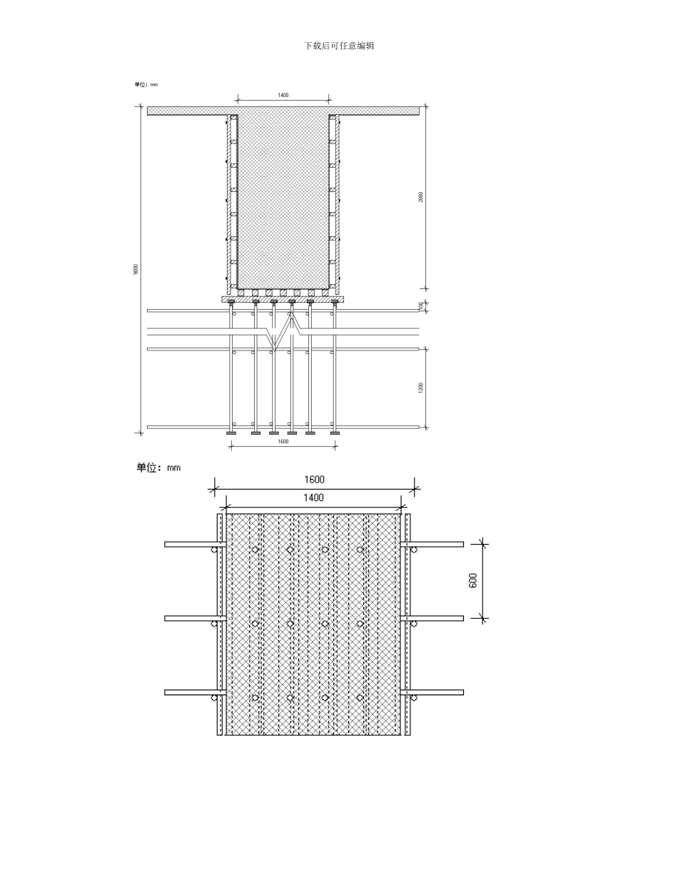
下载后可任意编辑梁、 板模板(扣件钢管架)计算书宝鸡南站位于陕西省宝鸡市, 为中型铁路旅客车站, 由站房、 站台、 雨棚等组成。该站房建筑物长203.422m, 站房分为A、 B、 C三个区段。A、 C段结构高度18.2m, B段主体结构高度27.9m。宝鸡南站站场规模为5台11线。站型为线侧平式, 采纳下进下出的旅客流线模式。地上二层, 局部地下一层, 地上三层。站房建筑面积为19990m2。结构形式站房为框架结构屋顶大跨度钢结构, 网架覆盖面积为8411.8m2。基本站台雨棚采纳钢管混凝土双肢格构柱带斜拉杆悬挑实腹H型钢梁结构, 中间站台采纳钢管柱悬挑Y型实腹H型钢梁构件。雨棚总长450m, 屋面采纳压型钢板系统屋面, 雨棚建筑面积28897m2。高支撑架的计算依据《建筑施工扣件式钢管脚手架安全技术法律规范》( JGJ130- ) 、 《混凝土结构设计法律规范》GB50010- 、 《建筑结构荷载法律规范》(GB 50009- )、 《钢结构设计法律规范》(GB 50017- )等法律规范编制。因本工程梁支架高度大于4米, 根据有关文献建议, 假如仅按法律规范计算, 架体安全性仍不能得到完全保证。为此计算中还参考了《施工技术》 ( 3) : 《扣件式钢管模板高支撑架设计和使用安全》中的部分内容。第一章梁段L1=1400×2800mm的计算下载后可任意编辑下载后可任意编辑一、 参数信息1.模板支撑及构造参数梁截面宽度 B(m): 1.40; 梁截面高度 D(m): 2.80; 混凝土板厚度(mm): 120.00; 立杆沿梁跨度方向间距La(m): 0.60; 立杆上端伸出至模板支撑点长度a(m): 0.10; 立杆步距h(m): 1.20; 板底承重立杆横向间距或排距Lb(m): 1.20; 梁支撑架搭设高度H(m): 9.00; 梁两侧立杆间距(m): 1.60; 承重架支撑形式: 梁底支撑小楞垂直梁截面方向; 梁底增加承重立杆根数: 4; 采纳的钢管类型为Φ48×3.5; 立杆承重连接方式: 可调托座; 2.荷载参数新浇混凝土重力密度(kN/m3): 26.00; 模板自重(kN/m2): 0.30; 钢筋自重(kN/m3):3.00; 施工均布荷载标准值(kN/m2): 2.0; 新浇混凝土侧压力标准值(kN/m2): 19.3; 振捣混凝土对梁底模板荷载(kN/m2): 2.0; 振捣混凝土对梁侧模板荷载(kN/m2): 4.0; 3.材料参数木材品种: 柏木; 木材弹性模量E(N/mm2): 9000.0; 木材抗压强度设计值fc(N/mm): 16.0; 木材抗弯强度设计值fm(N/mm2): 17.0; 木材抗剪强度设计值fv(N/mm2): 1.7; 面板材质: 胶合面板; 面板厚度(mm): 18.00; 面板弹性模量E(N/mm2): 6000.0...

1、当您付费下载文档后,您只拥有了使用权限,并不意味着购买了版权,文档只能用于自身使用,不得用于其他商业用途(如 [转卖]进行直接盈利或[编辑后售卖]进行间接盈利)。
2、本站所有内容均由合作方或网友上传,本站不对文档的完整性、权威性及其观点立场正确性做任何保证或承诺!文档内容仅供研究参考,付费前请自行鉴别。
3、如文档内容存在违规,或者侵犯商业秘密、侵犯著作权等,请点击“违规举报”。

碎片内容

脚手架支撑方案模板

范哲铺+ 关注
实名认证
内容提供者

想你所想,急你所急,你需要的都在店铺里可以找到。

确认删除?
VIP
微信客服
  • 扫码咨询
会员Q群
  • 会员专属群点击这里加入QQ群
客服邮箱
回到顶部