电脑桌面
添加小米粒文库到电脑桌面
安装后可以在桌面快捷访问

水池施工方案模板

水池施工方案模板_第1页
1/18
水池施工方案模板_第2页
2/18
水池施工方案模板_第3页
3/18
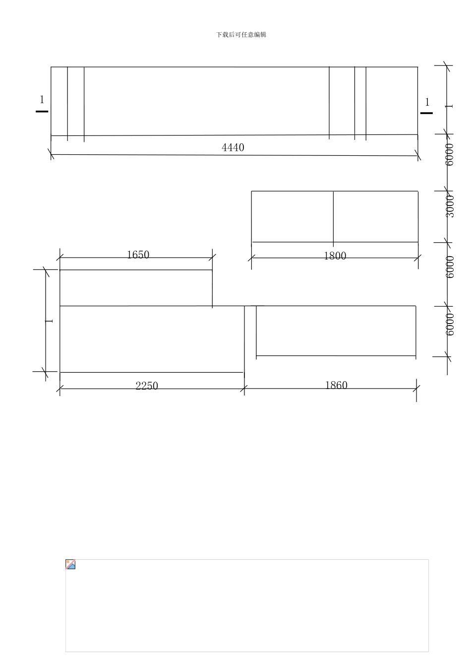
下载后可任意编辑金 泥 集 团 40 万 吨 / 年 电 石 工 程 — 浊 循 环 水 施 工 方 案第 一 节 、 工 程 概 况1 、 地 质 情 况根 据 地 质 报 告 , 天 然 地 基 持 力 层 为 勘 察 报 告 中第 层 ( 角 砾 ) 。2 、 工 程 地 点 甘 肃 省 金 昌 河 西 堡 镇 化 工 循 环 经 济 产 业 园 。3 、 浊 循 环 水 概 况建 筑 面 积 为 986.6 ㎡ ; 建 筑 层 数 : 地 上 一 层 , 地下 一 层 ; 建 筑 高 度 为 : 5 米 ; 建 筑 设 计 使 用 年 限 为50 年 ; 建 筑 结 构 类 型 : 本 工 程 为 浊 循 环 水 , 包 括 泵房 和 热 水 池 、 冷 水 池 、 沉 淀 池 , 泵 房 为 现 浇 钢 筋混 凝 土 框 架 结 构 , 左 部 分 采 纳 柱 下 独 立 基 础 ; 水 池采 纳 钢 筋 混 凝 土 结 构 ; 抗 震 设 防 烈 度 : 七 度 ; 泵 房 为 : A-D 轴 1-5 线 宽 12 米 , 长 22.5 米 , 泵 房 基坑 底 标 高 -2.0m, B-C轴 5-9 线 宽 6 米 , 长 18.6 米 , 泵 房 基坑 底 标 高 -3.60m; 冷 水 池 、 热 水 池 : 宽 4.4 米 , 长 19.4 米 , 基 坑 底标 高 -4.15m; 沉 淀 池 : 宽 19.1 米 , 长 4804 米 , 基 坑 底 标 高 -4.6m 。形 状 见 附 图 :下载后可任意编辑 144401 16000300060006000180016501 22501860下载后可任意编辑第 二 节 、 编 制 依 据( 1) 中 国 天 辰 工 程 有 限 公 司 浊 循 环 水 施 工 蓝 图 ; ( 2) 相 关 技 术 资 料 及 法 律 规 范 ; ( 3) 施 工 现 场 实 际 情 况 。第 三 节 、 人 员 、 机 具 计 划1 、 人 力 动 员 计 划序 号工 种数 量主 要 工 作 内 容1土建工程师1负 责 土 建 施 工 技 术2质量员1质 量 监 督 及 检 查3安全员1安 全 监 督 及 检 查4测量工1现 场 控 制 点 布 设 、 施 工 测量5土石方 工6土 方 清 理6木 工8模板制作、 安装、 拆除7钢筋工5钢 筋 制 作 、 绑 扎8混凝土 工3混 凝 土 浇 注 及 养 护9铆 工1套 管 制 作 及 安 装10焊 工1配 合 铆 工 制 作 及 安...

1、当您付费下载文档后,您只拥有了使用权限,并不意味着购买了版权,文档只能用于自身使用,不得用于其他商业用途(如 [转卖]进行直接盈利或[编辑后售卖]进行间接盈利)。
2、本站所有内容均由合作方或网友上传,本站不对文档的完整性、权威性及其观点立场正确性做任何保证或承诺!文档内容仅供研究参考,付费前请自行鉴别。
3、如文档内容存在违规,或者侵犯商业秘密、侵犯著作权等,请点击“违规举报”。

碎片内容

水池施工方案模板

确认删除?
VIP
微信客服
  • 扫码咨询
会员Q群
  • 会员专属群点击这里加入QQ群
客服邮箱
回到顶部