电脑桌面
添加小米粒文库到电脑桌面
安装后可以在桌面快捷访问

旋臂式起重机(悬臂吊)计算公式

旋臂式起重机(悬臂吊)计算公式_第1页
1/14
旋臂式起重机(悬臂吊)计算公式_第2页
2/14
旋臂式起重机(悬臂吊)计算公式_第3页
3/14
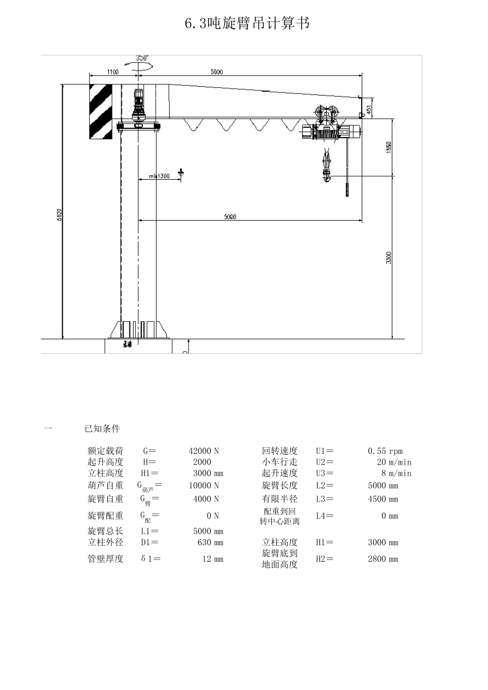
6.3吨旋臂吊计算书旋臂式起重机计算公式设计计算书 6.3吨旋臂吊计算书一 已知条件额定载荷G= 42000 N回转速度U1=0.55 rpm起升高度H=2000小车行走U2=20 m/min立柱高度H1=3000 mm起升速度U3=8 m/min葫芦自重G葫芦=10000 N旋臂长度L2=5000 mm旋臂自重G臂= 4000 N有限半径L3=4500 mm旋臂配重G配=0 N配重到回转中心距离L4=0 mm旋臂总长L1=5000 mm立柱外径D1=630 mm立柱高度H1=3000 mm管壁厚度δ1=12 mm旋臂底到地面高度H2=2800 mm 6.3吨旋臂吊计算书二立柱、旋臂截面简图以及数立柱截面计算参数800mm16mm39388mm^23.03E+09mm^43.03E+09mm^47.57E+06mm^37.57E+06mm^3旋臂截面计算参数300mm16mm20mm560mm6mm188mm17520mm^21.07E+09mm^41.44E+08mm^43.83E+06mm^39.62E+05mm^3三 计算旋臂所受弯矩旋臂均布载荷 q1Q臂4000L15000葫芦和载荷在最大回转半径4500处的N/mm0.8==q1=腹板间隔(C)面积A惯性矩Ix惯性矩Iy模数Wx模数Wy模数Wy盖板宽度(B)上盖板板厚(δ1)下盖板板厚(δ3)腹板高度(H)腹板板厚(δ2)直径板厚面积惯性矩Ix惯性矩Iy模数Wx 6.3吨旋臂吊计算书M1=(G葫芦+G)×=(10000+42000)×4500=2.3E+08 N.mm旋臂自重所引起的力矩 M2L2L1-L22250005000-500022=-=10000000 N.mm配重所引起的力矩M3M3=G配×L40 N.mm总力矩 MM=M1+M2-M3== 2.4E+08 N.mm四 计算回转扭矩 T参数数值单位n=0.5r/mink=4常数m=5200KgDe=5mt=3sK=1.33M=1010KGD= 2.5mα=0.5°u=0.012D=0.8mG=62100N(旋转惯性矩)J载荷==0.8(5000-5000)Kg.m130000--q1(L1-L2)=q1×L20.8×5000M2==KmDe^244 x 5200 x 5^24悬臂重心半径坡度倾角止推轴承的摩擦系止推轴承内径与外径止推轴承所受的垂直系数(载荷)质量(载荷)吊具总长度(回转半预定启动时间系数(悬臂)质量(悬臂)1000000000×0=234000000+10000000-0名称转速 6.3吨旋臂吊计算书Jn=J载荷+J悬臂==132098.9 Kg.m== 298.1N.m坡度阻力矩T2=0.7×M×sin=0.7×244000000×sin(0.5)=1490492 N.mm=1490.5N.m回转阻力矩 T=Tf + T1+T2=2305.39+298.08+1=4093.97 N.m=4.1E+06 N.mm四旋臂强度校核旋臂垂直应力 σ1M2.4E+08Wx3.83E+06旋臂水平应力 σ2T4.1E+06Wy9.62E+05主梁最大应力 σσ= σ1+σ2=67.94MPa2351.33(旋转惯性矩)J悬臂=(惯性扭矩)T1==Kg.mN.mMPaMPa2098.912305.3963.684.26N/mm^2==176.7====...

1、当您付费下载文档后,您只拥有了使用权限,并不意味着购买了版权,文档只能用于自身使用,不得用于其他商业用途(如 [转卖]进行直接盈利或[编辑后售卖]进行间接盈利)。
2、本站所有内容均由合作方或网友上传,本站不对文档的完整性、权威性及其观点立场正确性做任何保证或承诺!文档内容仅供研究参考,付费前请自行鉴别。
3、如文档内容存在违规,或者侵犯商业秘密、侵犯著作权等,请点击“违规举报”。

碎片内容

旋臂式起重机(悬臂吊)计算公式

小辰8+ 关注
实名认证
内容提供者

出售各种资料和文档

相关文档

确认删除?
VIP
微信客服
  • 扫码咨询
会员Q群
  • 会员专属群点击这里加入QQ群
客服邮箱
回到顶部