电脑桌面
添加小米粒文库到电脑桌面
安装后可以在桌面快捷访问

泵管布置与支架做法技术交底

泵管布置与支架做法技术交底_第1页
1/7
泵管布置与支架做法技术交底_第2页
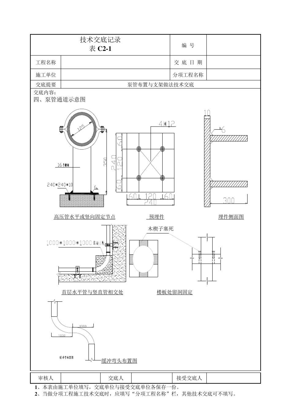
2/7
泵管布置与支架做法技术交底_第3页
3/7
审 核 人 交 底 人 接 受 交 底 人 1、 本 表 由 施 工 单 位 填 写 , 交 底 单 位 与 接 受 交 底 单 位 各 保 存 一 份 。 2、 当 做 分 项 工 程 施 工 技 术 交 底 时 , 应 填 写 “ 分 项 工 程 名 称 ” 栏 , 其 他 技 术 交 底 可 不 填 写 。 技 术 交 底 记 录 表 C 2-1 编 号 工 程 名 称 交 底 日 期 施 工 单 位 分 项 工 程 名 称 交 底 提 要 泵 管 布 置 与 支 架 做 法 技 术 交 底 交 底 内 容 : 一 、 材 料 要 求 1、 泵 送 使 用 的 管 件 连 接 良 好 , 管 径 、 管 厚 、 长 度 等 均 满 足 施 工 要 求 。 泵 送 机 械 进 场前 进 行 检 测 , 能 满 足 工 地 使 用 的 要 求 。 2、 钢 管 、 扣 件 规 格 、 橡 胶 垫 圈 等 种 类 齐 全 。 二 、 作 业 条 件 1、 地 泵 泵 车 及 泵 管 等 设 备 须 进 场 并 检 验 合 格 。 2、 安 放 地 泵 的 场 地 平 整 硬 化 完 毕 且 场 地 灌 车 通 行 便 捷 , 场 地 不 得 积水。 三、 操作 工 艺 1、 布 置 原则 本 工 程 共分 为4 个施 工 分 区, 其 中4 区在正负零封顶, 2 区、 3 区在地 上9 层封顶,1 区到顶。按照此施 工 组织本 工 程 混凝土输送 管 道分 为地 下和地 上两个阶段布 置 。地 下阶段共布 置 2 套主管 道其 中1 套供1、 2 区使 用 , 另1 套供3、 4 区使 用 , 地 下施 工 阶段使 用 φ125 普通 管 道, 施 工 至±0.00 时 将管 道拆除重新布 置 。 地 上施 工 阶段同样布 置 两套主管 ,高度 250m 以下使 用 φ125 壁厚 9mm 复合 超高压管 道,高度 250m以上及 支 管 使 用 φ125 普通 管 道。 管 道的 配置 线路应 最短, 尽量少用 弯管 和软管 , 避免使 用 弯度 过大的 弯头, 管 道末端活动软管 不 得 超过 1800。 泵 机 出口应 有一 定长 度的 水平 管 (出口处水平 管 长 度 不 应 小于 5m), 然后再接 弯管 。 管 路布 置 应 使 泵 送 的 方向与 混凝土浇注方向相反, 使 在浇注过程 中容 易拆除管...

1、当您付费下载文档后,您只拥有了使用权限,并不意味着购买了版权,文档只能用于自身使用,不得用于其他商业用途(如 [转卖]进行直接盈利或[编辑后售卖]进行间接盈利)。
2、本站所有内容均由合作方或网友上传,本站不对文档的完整性、权威性及其观点立场正确性做任何保证或承诺!文档内容仅供研究参考,付费前请自行鉴别。
3、如文档内容存在违规,或者侵犯商业秘密、侵犯著作权等,请点击“违规举报”。

碎片内容

泵管布置与支架做法技术交底

确认删除?
VIP
微信客服
  • 扫码咨询
会员Q群
  • 会员专属群点击这里加入QQ群
客服邮箱
回到顶部