电脑桌面
添加小米粒文库到电脑桌面
安装后可以在桌面快捷访问

管道支架及吊架施工方案(精)

管道支架及吊架施工方案(精)_第1页
1/6
管道支架及吊架施工方案(精)_第2页
2/6
管道支架及吊架施工方案(精)_第3页
3/6
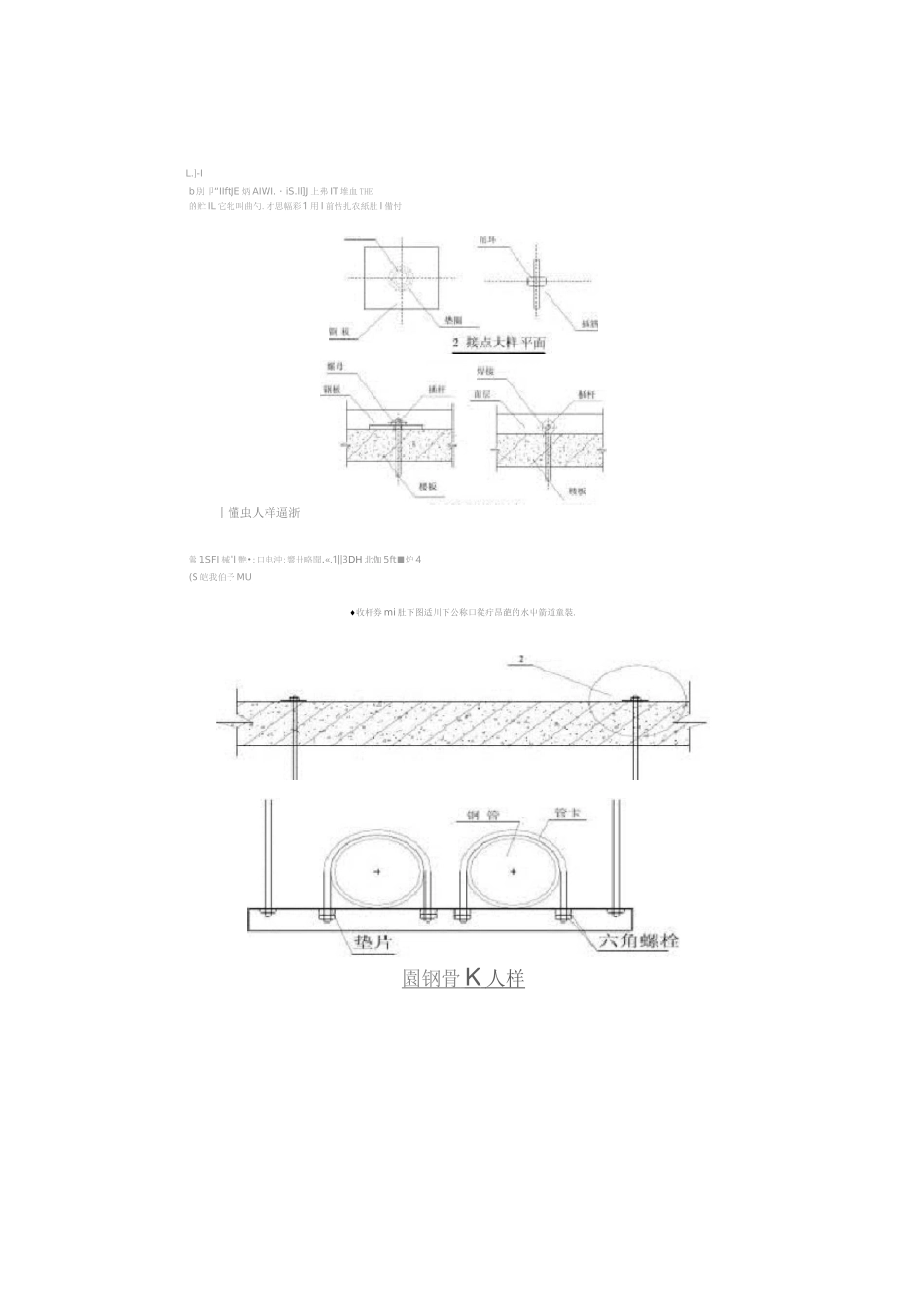
一、支吊架的设置原则常用的管道支吊架按用途分为固定支架、活动支架、导向支架、拖吊架等。管道支吊架的布置和类型应满足管道荷重、补偿及位移的要求,并注意减少管道的振动;另外,还必须考虑管道的稳定性、强度和刚度以及输送介质的温度和工作压力,并尽量简便易于制作和节省钢材。有膨胀要求的管道,在不允许有任何位移的地方,应设置固定支架;在水平管道上只允许管道单向水平位移的地方,应装设导向支架或活动吊架;在管道具有垂直位移的地方,应装活动支架;水平安装的方型补偿器或弯管附近的支架,应选用滑动支架(属于活动支架),以使管道能自由地横向移动。另外,在一条管路上连续使用吊架不宜过多,应在适当位置设立型钢支架,以避免管道摆动。二、施工工艺:本工程综合管线较多,支吊架形式类别、工艺要求复杂。2.1.穿墙管线横梁安装的说明及分类;•工丹门啦屮 l「|押淫心艮 v-F-ifir、学」叭阻阻绝 *I 册 11 网車书戌 P 」 1 噜 1sr^rt-K 沁*平£■,iwx 号片 if*■*耳勺甫睥审 ia 冉 rlMil 瞬讹.斗 iti-ftrnft-»|«fcTr^-tHtiStKMiPiS'fiir.汇诈•2--l.i.iTTHk^i■I 惦證血 ITMiH 庶宙弹 ljf:*n.f 口.匕 i|l.札 IP*rtL.WJH1-flRII-IEX'e^ff(rr^ffLDMfl'ISKH^U«卜 IHH■止川岸丄尽-ndwR 甲 m 叫总甲 Hdasr.L.]-Ib 別卩“IIftJE 炳 AIWI.・iS.ll]J 上弗 IT 堆血 THE的贮 IL 它牝叫曲勺.才思幅彩 1 用 I 前怙扎农紙肚 I 備忖丨懂虫人样逼浙鶯 1SFI 械"I 艷•:口电沖:響卄略聞.«.1||3DH 北伽 5ft■炉 4(S 皑我伯予 MU♦收杆券 mi 肚下图适川下公称口從疔昂葩的水屮箭道童裝.園钢骨 K 人样 应按设计要求间距设置支吊架,“W”接口机制铸铁管应按厂家技术资料要求进行设置支吊架。2 圆钢管卡;下图适用与 15-700mm 固定水平钢管及立管安装。水平管道计算的间距,公称直径 15-100mm 的为 3 米,公称直径 125-600mm 为 6 米。铜管、机制铸铁支吊架同上说明。♦烦杆苓背肾最;卜-昭适用■屮公称九总的水甲诲迢安勉。2fH!钢 nTI•JzF1■ +'也k4上,圆钢管卡犬样 岂 :© 冋怙起區: gg 'i 尅略 1,HiW.科时町莓用施再掘】♦"MFir 时雄旳 1 比朴 1F 杵王 ij『於 Mftrswift*:平 isiiJi 装T]为际嫌空 IM 砸程 JK 卅誉・单管吊架;为上锚固型吊架与单管扁卡的组合,适用于<200mm 的有坡度调节要求的管道。膨胀螺栓楼膨胀螺栓槽钢板垫螺圈母...

1、当您付费下载文档后,您只拥有了使用权限,并不意味着购买了版权,文档只能用于自身使用,不得用于其他商业用途(如 [转卖]进行直接盈利或[编辑后售卖]进行间接盈利)。
2、本站所有内容均由合作方或网友上传,本站不对文档的完整性、权威性及其观点立场正确性做任何保证或承诺!文档内容仅供研究参考,付费前请自行鉴别。
3、如文档内容存在违规,或者侵犯商业秘密、侵犯著作权等,请点击“违规举报”。

碎片内容

管道支架及吊架施工方案(精)

您可能关注的文档

确认删除?
VIP
微信客服
  • 扫码咨询
会员Q群
  • 会员专属群点击这里加入QQ群
客服邮箱
回到顶部