电脑桌面
添加小米粒文库到电脑桌面
安装后可以在桌面快捷访问

理化生实验室平面图纸范例

理化生实验室平面图纸范例_第1页
1/11
理化生实验室平面图纸范例_第2页
2/11
理化生实验室平面图纸范例_第3页
3/11
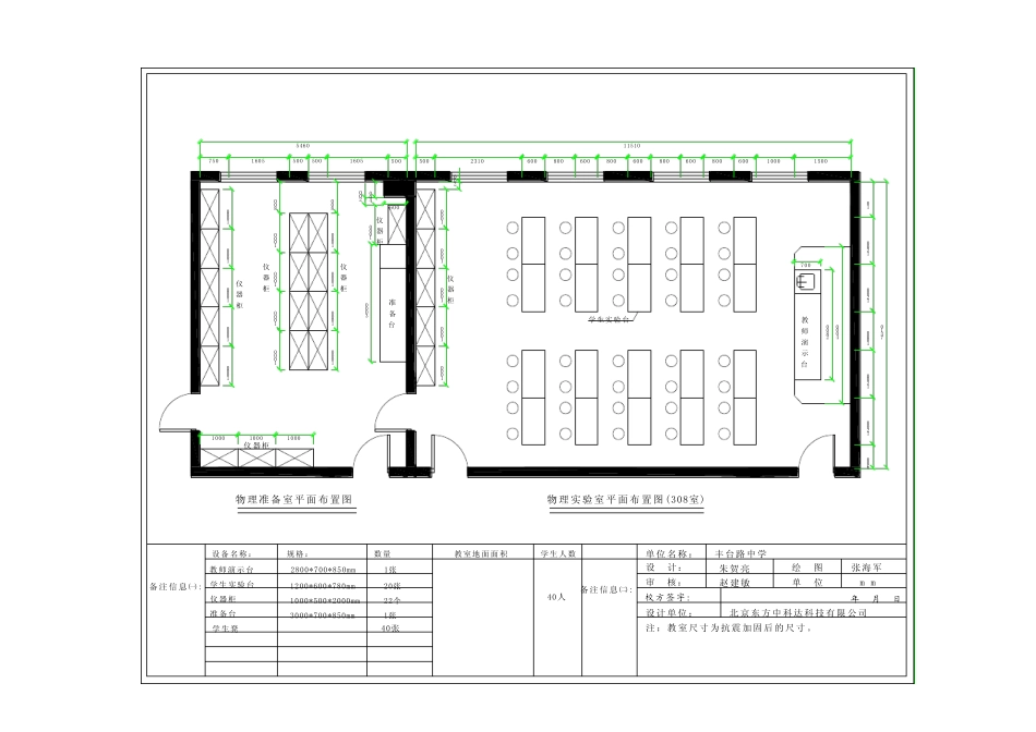
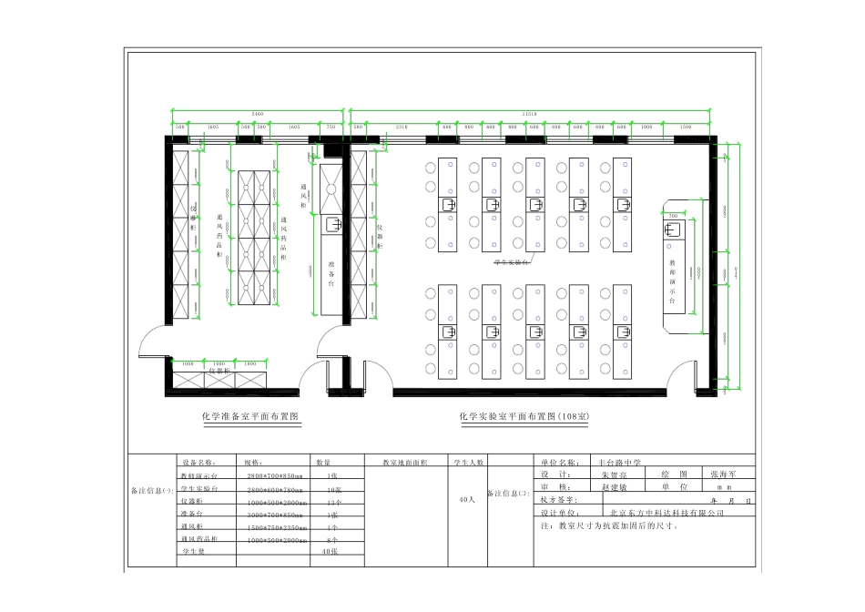
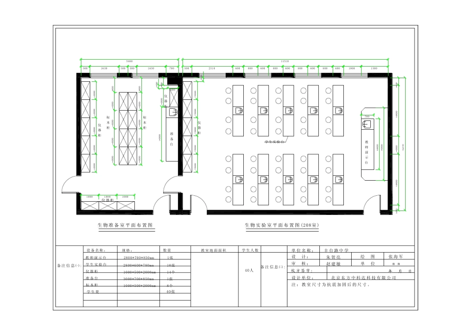
备注信息㈠:单位名称:年 月 日校方签字:单 位审 核:绘 图设 计:m m教师演示台2800*700*850mm 1张设备名称: 规格:数量教室地面面积学生人数备注信息㈡:40人朱贺亮赵建敏张海军设计单位:学生凳40张学生实验台 2800*600*780mm 10张丰台路中学北京东方中科达科技有限公司仪器柜 1000*500*2000mm 13个注:教室尺寸为抗震加固后的尺寸。化学实验室平面布置图(108室)化学准备室平面布置图70028004000教师演示台3000准备台150010006008002310500750400160550050016055005460115108001000100010001000100010001000100080020020010001000100010001000学生实验台仪器柜通风药品柜通风药品柜准备台 3000*700*850mm 1张通风柜 1500*750*2350mm 1个通风药品柜 1000*500*2000mm 8个41028001000280030073106006008006008006008001000100010001000仪器柜2001500通风柜1000100010001000仪器柜备注信息㈠:单位名称:年 月 日校方签字 :单 位审 核:绘 图设 计:m m教师演示台2800*700*850mm 1张设备名称:规格:数量教室地面面积学生人数备注信息㈡:40人朱贺亮赵建敏张海军设计单位:学生凳40张学生实验台 2800*600*780mm 10张丰台路中学北京东方中科达科技有限公司仪器柜 1000*500*2000mm 14个注:教室尺寸为抗震加固后的尺寸。生物 实验室平 面布 置 图(208室)生物 准 备室平 面布 置 图70028004000教师演示台1500100060080023105007006004001630500500163050054601151080010001000100010001000100010001000800100020020010001000100010001000学生实验台仪器柜仪器柜标本柜准 备台 3000*700*850mm 1张标 本 柜 1000*500*2000mm 8个1000100010001000仪器柜1000标本柜41028001000280030073106008006008006008006003000准备台100010001000仪器柜备注信息㈠:单位名称:年 月 日校方签字 :单 位审 核:绘 图设 计:m m教师演示台2800*700*850mm 1张设备名称:规格:数量教室地面面积学生人数备注信息㈡:40人朱贺亮赵建敏张海军设计单位:学生凳40张学生实验台 1200*600*780mm 20张丰台路中学北京东方中科达科技有限公司仪器柜 1000*500*2000mm 22个注:教室尺寸为抗震加固后的尺寸。物 理 实验室平 面布 置 图(308室)物 理 准 备室平 面布 置 图70028004000教师演示台1500100060080050050060040016055005001605750546011510800100010001000100010001000100010008001000200200100010001...

1、当您付费下载文档后,您只拥有了使用权限,并不意味着购买了版权,文档只能用于自身使用,不得用于其他商业用途(如 [转卖]进行直接盈利或[编辑后售卖]进行间接盈利)。
2、本站所有内容均由合作方或网友上传,本站不对文档的完整性、权威性及其观点立场正确性做任何保证或承诺!文档内容仅供研究参考,付费前请自行鉴别。
3、如文档内容存在违规,或者侵犯商业秘密、侵犯著作权等,请点击“违规举报”。

碎片内容

理化生实验室平面图纸范例

小辰2+ 关注
实名认证
内容提供者

出售各种资料和文档

确认删除?
VIP
微信客服
  • 扫码咨询
会员Q群
  • 会员专属群点击这里加入QQ群
客服邮箱
回到顶部