电脑桌面
添加小米粒文库到电脑桌面
安装后可以在桌面快捷访问

景观设计管理流程

景观设计管理流程_第1页
1/17
景观设计管理流程_第2页
2/17
景观设计管理流程_第3页
3/17
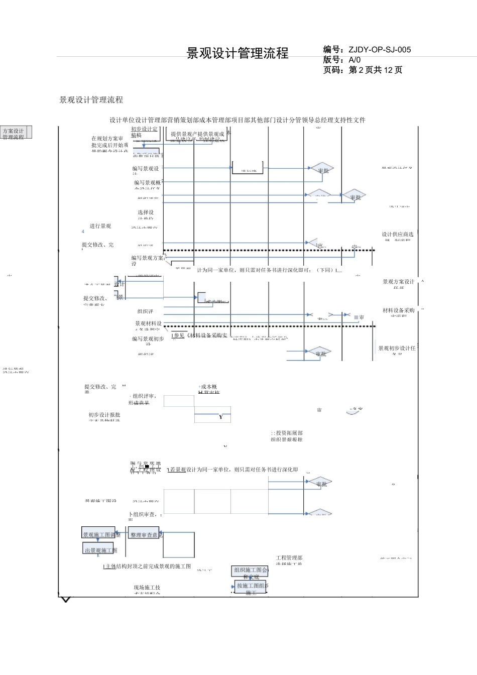
景观设计管理流程编号:ZJDY-OP-SJ-005版号:A/0页码:第 2 页共 12 页方案设计管理流程计设念概观计设案方观计设步初观审会及计设图工施观景观设计管理流程景观设计管理流程设计单位设计管理部营销策划部成本管理部项目部其他部门设计分管领导总经理支持性文件审审若景观审审进彳丁景观组织评审蝕流程》中选型定板部组织评设计中期交观作编写景观概念设计任务景观材料设4 备选型定计为同一家单位,则只需对任务书进行深化即可;(下同)I....提交修改、完善观方编写景观初步设在规划方案审批完成后开始景的概念设计编写景观方案;设选择设计单位I 参见 《材料设备采购实廿审■审进行景观4提交修改、完L编写景观设计景Y景观施工图设设计中期交初步设计报批文本及物料选提交修改、完善编 写 景 观 施工,回■丄丄Ar 々 岭 图 设计 1 丄务书::投资拓展部组织景观报批卜组织审查,:形・组织评审,形成意见审初步设计定稿稿'I 若景观 设计为同一家单位,则只需对任务书进行深化即+成本概H 算审核设计工现场施工技术支持配合I 主体 结构封顶之前完成景观的施工图工程管理部选择施工单*备案景观设计任务设计评审设计供应商选择・制流程景观方案设计任书材料设备采购实流程景观初步设计任务书务施工图会审记进行确进行景观提供景观产提供景观成品建议书_控制建议务施收集项目资组织评审设计中期交组织评组织评审成本测可景观设计管理流程编号:ZJDY-OP-SJ-005 版号:A/0页码:第 3 页共 12 页编号:ZJDY-OP-SJ-005版号:A/0页码:第 4 页共 12 页4.3.3 参与景观各阶段设计成果的评审。4.4设计分管领导4.4.1 审批景观设计计划;4.4.2 参与景观设计任务书和景观设计成果的评审;4.4.3 审核景观概念、方案设计任务书;4.4.4 审核景观概念设计、方案设计成果;4.4.5 审批景观初步设计任务书和初步设计成果;4.4.6 审批景观施工图设计任务书和施工图设计成果。4.5总经理4.5.1 审批景观概念、方案设计任务书;编号:ZJDY-OP-SJ-005版号:A/0页码:第 6 页共 12 页'责任部门名称'、、营销策划部成本管理部工程管理部项目部投资拓展部项目设计主管设计管理部经理物业公司设计分管领导总经理景观概念方案OOOOOOOOOO景观方案设计OOOOOOOOOO景观初步设计OOOOOOOOO景观施工图OOOOOO5.4.2 供方选择景观概念方案设计供方选择审批的操作流程,按照《设计承包商选择控制流程》执行。景观设计管理流程编号:ZJDY-OP-SJ-005 版...

1、当您付费下载文档后,您只拥有了使用权限,并不意味着购买了版权,文档只能用于自身使用,不得用于其他商业用途(如 [转卖]进行直接盈利或[编辑后售卖]进行间接盈利)。
2、本站所有内容均由合作方或网友上传,本站不对文档的完整性、权威性及其观点立场正确性做任何保证或承诺!文档内容仅供研究参考,付费前请自行鉴别。
3、如文档内容存在违规,或者侵犯商业秘密、侵犯著作权等,请点击“违规举报”。

碎片内容

景观设计管理流程

您可能关注的文档

确认删除?
VIP
微信客服
  • 扫码咨询
会员Q群
  • 会员专属群点击这里加入QQ群
客服邮箱
回到顶部