电脑桌面
添加小米粒文库到电脑桌面
安装后可以在桌面快捷访问

外墙保温技术要求

外墙保温技术要求_第1页
1/6
外墙保温技术要求_第2页
2/6
外墙保温技术要求_第3页
3/6
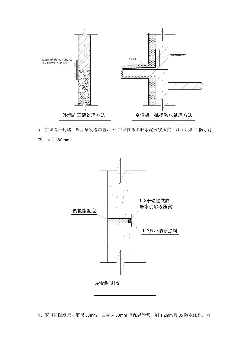
外墙保温技术要求一、材料:材质聚苯板岩棉保温板维护结构部位外墙防火隔离带飘窗阳台空调板屋面檐沟腰线保温材料聚苯板岩棉保温板聚苯板聚苯板聚苯板聚苯板聚苯板EPS厚度(mm)110同相邻聚苯板110203010030备注顶板、底板、侧板底板、侧板表观密度≥20kg/m3≥140kg/m3导热系数≤0.039≤0.040燃烧性能级别B1 级A 级塑料锚栓圆盘直径不小于 50mm,防火隔离带锚栓圆盘直径不小于 100mm,不得使用再生料制品。栓钉长度为保温板厚度+50mm,不同长度栓钉采用不同颜色加以区分,严禁混用。耐碱玻璃纤维网格布单位面积质量≥160g/m2。成品鹰嘴、滴水槽。所有材料必须提前送样至项目部留存,进场材料必须与样品一致。二、外墙防渗透处理1、加气混凝土砌块抹灰找平,与混凝土剪力墙交接处贴 300 宽 0.6 厚高分子防水卷材,每侧各 150mm。2、空调板、雨棚、飘窗顶板等突出墙体部位,聚合物防水砂浆找坡5%,找坡后刷 1.2 厚 JS防水涂料,卷起 250mm 高。1.2厚JS防水混凝土墙与砌体交接处贴300宽0.6mm厚高分子防水卷材5%找坡外墙施工缝处理方法空调板、挑檐防水处理方法3、穿墙螺杆封堵:聚氨酯发泡填塞,1:2 干硬性微膨胀水泥砂浆压实,刷 1.2 厚 JS 防水涂料,直径≥50mm。聚氨酯发泡1:2干硬性微膨胀水泥砂浆压实1.2厚JS防水涂料穿墙螺杆封堵4、窗口按图纸尺寸缩尺 60mm,四周抹 30mm 厚保温砂浆,刷 1.2mm 厚 JS 防水涂料,向内卷至窗框,向外卷至阳角处 150mm。JS防水成品鹰嘴保温砂浆聚氨酯发泡聚氨酯发泡保温砂浆成品鹰嘴混凝土压顶JS防水三、保温层施工1、排版:根据门窗洞口及挑檐位置合理排版,竖缝应逐层错缝1/2 板长,阴阳角部位交错互锁,门窗洞口处保温板应做套割处理,宽度≥200mm。2、保温板拼缝应做到上板压下板,不得有朝天缝。聚苯板拼缝:保温拼缝方式示意3、粘贴保温板:保温板采用框点法粘贴,有效粘接面积不小于40%。沿保温板边缘 10mm 处涂抹粘接砂浆 80mm 宽,下部留 50mm 宽排气口,保温板中间打 3个直径 150mm 粘接点。粘接砂浆涂抹厚度不应小于 15mm,将保温板粘贴于墙面上同时用刮杠压平,粘接压贴时应整板均匀受力挤压。板边缘挤压后溢出胶浆及时刮除,板侧面接缝处不得进入胶浆。保温板接缝缝隙不应大于 2mm,相邻两板高差不得大于 1mm。4、保温板遇门窗洞口边缘时设翻包网,翻包网压入保温板粘接层中宽度不小于100mm,翻包后在保温板表面搭接宽度不小于 150mm。5、安装锚栓:保温粘贴...

1、当您付费下载文档后,您只拥有了使用权限,并不意味着购买了版权,文档只能用于自身使用,不得用于其他商业用途(如 [转卖]进行直接盈利或[编辑后售卖]进行间接盈利)。
2、本站所有内容均由合作方或网友上传,本站不对文档的完整性、权威性及其观点立场正确性做任何保证或承诺!文档内容仅供研究参考,付费前请自行鉴别。
3、如文档内容存在违规,或者侵犯商业秘密、侵犯著作权等,请点击“违规举报”。

碎片内容

外墙保温技术要求

您可能关注的文档

确认删除?
VIP
微信客服
  • 扫码咨询
会员Q群
  • 会员专属群点击这里加入QQ群
客服邮箱
回到顶部