电脑桌面
添加小米粒文库到电脑桌面
安装后可以在桌面快捷访问

AutoCAD2002试题解答(中级)第八单元1part

AutoCAD2002试题解答(中级)第八单元1part_第1页
1/20
AutoCAD2002试题解答(中级)第八单元1part_第2页
2/20
AutoCAD2002试题解答(中级)第八单元1part_第3页
3/20
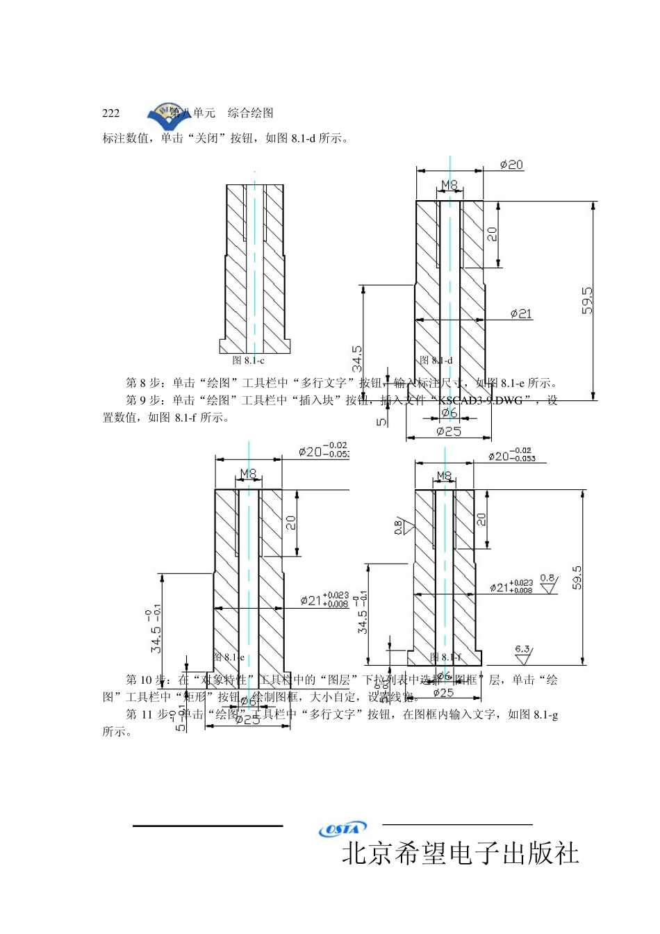
第八单元 综合绘图 8 .1 第1 题解答 第1 步:选择“文件”菜单中“新建”命令,打开“Au toCAD 2002 今日”窗口。在“我的图形”区域单击“创建图形”选项卡,在“如何选择开始”下拉列表中选择“向导”。在“向导”列表中单击“快速设置”,打开“快速设置”对话框,单击“下一步”按钮,在对话框中设置图纸的属性,单击“完成”按钮。 第2 步:选择“格式”菜单中“图层”命令,打开“图层特性管理器”对话框,单击“新建”按钮,建立新图层分别为“标注”、“图框”、“轴线”,设置轴线图层颜色为“红色”,设置线型为“CENTER”,单击“确定”按钮。,选择“轴线”层,单击“当前”按钮,单击“确定”按钮。 第3 步:单击“绘图”工具栏中“直线”按钮,在绘图区中间,绘制一条垂直的中心轴线。 第4 步:单击“绘图”工具栏中“多段线”按钮,在命令行中输入“W”,设置宽度为“0.1”,绘制图形轮廓线,如图8.1-a 所示。 第5 步:单击“绘图”工具栏中“直线”按钮,绘制图形填充区域轮廓线,如图8.1-b所示。 图8.1-a 图8.1-b 第6 步:单击“绘图”工具栏中“图案填充”按钮,打开“边界图案填充”对话框,拾取填充区域,设置图案为“ANSI31”,设置角度为“90”,设置比例为“1.3”,单击“确定”按钮,如图8.1-c 所示。 第7 步:选择“标注”菜单中“样式”命令,打开“标注样式管理器”对话框,调整北京希望电子出版社 222 第八单元 综合绘图 标注数值,单击“关闭”按钮,如图8.1-d 所示。 图8.1-c 图8.1-d 第8 步:单击“绘图”工具栏中“多行文字”按钮,输入标注尺寸,如图8.1-e 所示。 第9 步:单击“绘图”工具栏中“插入块”按钮,插入文件“KSCAD3-9.DWG”,设置数值,如图8.1-f 所示。 图8.1-e 图8.1-f 第10 步:在“对象特性”工具栏中的“图层”下拉列表中选择“图框”层,单击“绘图”工具栏中“矩形”按钮,绘制图框,大小自定,设置线宽。 第11 步:单击“绘图”工具栏中“多行文字”按钮,在图框内输入文字,如图8.1-g所示。 北京希望电子出版社 劳动和社会保障部全国计算机信息高新技术考试指定教材 223 图8.1-g 第12 步:选择“文件”菜单中“保存”命令,打开“图形另存为”对话框,输入文件名为“KSCAD8-1.DWG”,保存至考生文件夹,单击“保存”按钮。 8 .2 第2 题解答 第1 步:选择“文件”菜单中“新建”命令,打开“Au toCAD 2002 今日”窗口。在“我...

1、当您付费下载文档后,您只拥有了使用权限,并不意味着购买了版权,文档只能用于自身使用,不得用于其他商业用途(如 [转卖]进行直接盈利或[编辑后售卖]进行间接盈利)。
2、本站所有内容均由合作方或网友上传,本站不对文档的完整性、权威性及其观点立场正确性做任何保证或承诺!文档内容仅供研究参考,付费前请自行鉴别。
3、如文档内容存在违规,或者侵犯商业秘密、侵犯著作权等,请点击“违规举报”。

碎片内容

AutoCAD2002试题解答(中级)第八单元1part

小辰4+ 关注
实名认证
内容提供者

出售各种资料和文档

确认删除?
VIP
微信客服
  • 扫码咨询
会员Q群
  • 会员专属群点击这里加入QQ群
客服邮箱
回到顶部