电脑桌面
添加小米粒文库到电脑桌面
安装后可以在桌面快捷访问

精装修关键节点做法

精装修关键节点做法_第1页
1/32
精装修关键节点做法_第2页
2/32
精装修关键节点做法_第3页
3/32
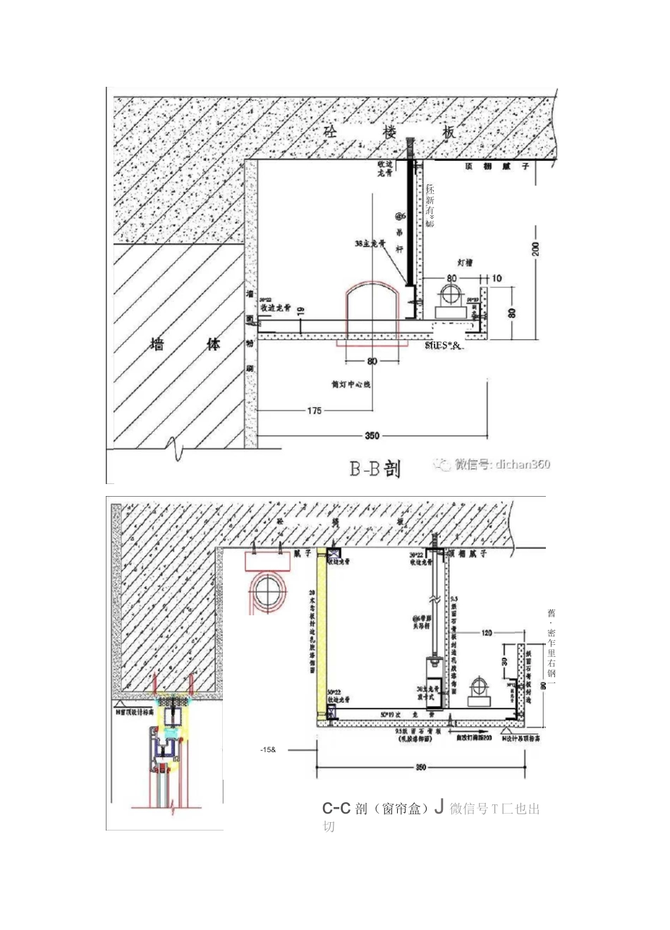
01第一部分:吊顶精装修关键节点① 轻钢龙骨石膏板吊顶关键节点客厅石膏板吊顼离部犬样<£厂聖二微信号;dichsirjSEOk_J•万科客厅石膏板吊顶局部大样一5具0Wt1叱十第自攻阖幽 9Q洗龙#间歴 400旣面石番粧抖汝计帝韓标高(乳联杯呵A"A剖匚「.微,信号:dirhgn^GO坯新有«帳SfiES*&-15&舊・密乍里右钢一c-c 剖(窗帘盒)J 微信号 T 匚也出切②.铝扣板吊顶做法轻 HfcW铝扣板吊顶鮭 W 億信号讪汕嗣mtn巧制縫 lilt三刪翻③.铝扣板吊顶(卡式龙骨)做法铝扣板吊顶做法大样(卡式龙骨〉'■卸悟号:印比卅简④.单层石膏吊顶关键节点适用位置:室内客厅、餐厅|T»:|准备工作」弹线」固定卡式轻钢龙骨(间距小于600mm)框架膨胀螺栓固定」安装副龙骨(间距小于 400mm)〜石膏板安装一自攻螺丝钉固定〜钉盖涂防锈漆 f 防锈漆腻子〜石膏板嵌缝处使用专用嵌缝石膏找平一贴优质防裂纸绷带点说明:!I① 吊杆应采用热镀锌成品螺纹杆。I② 安装石膏板的自攻螺丝钉帽须沉入板面|0.5^1.0mm,但不使纸面破损。钉帽涂防锈漆,腻予掺防锈漆补平。石膏板安装前』须核对灯孔与龙骨的位置,严禁灯孔与主、次龙骨位置重叠③ 吊顶要求采用成品检修孔,规格满足检修要求⑤ 万科吊顶过梁处收口节点适用位置:室内客厅、餐厅、过道工序:I 准备工作 T 弹线 T 固定卡式轻钢龙骨〔间距小于 600mm)框架膨胀螺栓固定■>安装副龙!骨(间距小于 400mm)T 石膏板安装 T 自攻|螺丝钉固定 T 钉盖涂防锈漆今防锈漆腻子 T 石膏板嵌缝处使用专用嵌缝石膏找平 T 贴优 I 质防裂纸绷带|重点说明:过梁处石膏板需外挑 15mm,使石膏板与过梁的之间的缝隙留在上阴角处。⑥ 吊顶防开裂节点适用位置:室内客厅、餐厅准备工作弹线膨胀瞟栓固定安装副龙骨(问距小于 400H1I11)一石膏板安装一自攻螺丝钉固定一钉盖涂防锈漆一防锈漆腻子一石膏板嵌缝处使用专用嵌缝石膏找平一贴优质防裂纸绷带固定卡式轻钢龙骨(间距小于 600nun)框架重点说明:❶ 转角处需采用整板七字板❷ 转角处加拉条⑦ 窗帘盒安装节点适用位置:室内客厅、餐厅工序:准备工作 T 弹线 T 下料 T 龙骨吊筋安装 T 窗帘盒机架制作 T 安装固定 T 面贴石膏板重点说明:宽度不小于 200mm,深度不小于 150mm丄 fimn 鋼木工櫃⑧ 叠级吊顶暗光槽施工节点适用位置:室内吊顶——MT 管 f 叠细)T 丘灯管(蛙蟲、—9®石青械一痰列轻钢龙晋两嵌木肓——取层爼五晋檢重点说明:(单层...

1、当您付费下载文档后,您只拥有了使用权限,并不意味着购买了版权,文档只能用于自身使用,不得用于其他商业用途(如 [转卖]进行直接盈利或[编辑后售卖]进行间接盈利)。
2、本站所有内容均由合作方或网友上传,本站不对文档的完整性、权威性及其观点立场正确性做任何保证或承诺!文档内容仅供研究参考,付费前请自行鉴别。
3、如文档内容存在违规,或者侵犯商业秘密、侵犯著作权等,请点击“违规举报”。

碎片内容

精装修关键节点做法

wxg+ 关注
实名认证
内容提供者

该用户很懒,什么也没介绍

确认删除?
VIP
微信客服
  • 扫码咨询
会员Q群
  • 会员专属群点击这里加入QQ群
客服邮箱
回到顶部