电脑桌面
添加小米粒文库到电脑桌面
安装后可以在桌面快捷访问

人防钢筋交底

人防钢筋交底_第1页
1/7
人防钢筋交底_第2页
2/7
人防钢筋交底_第3页
3/7
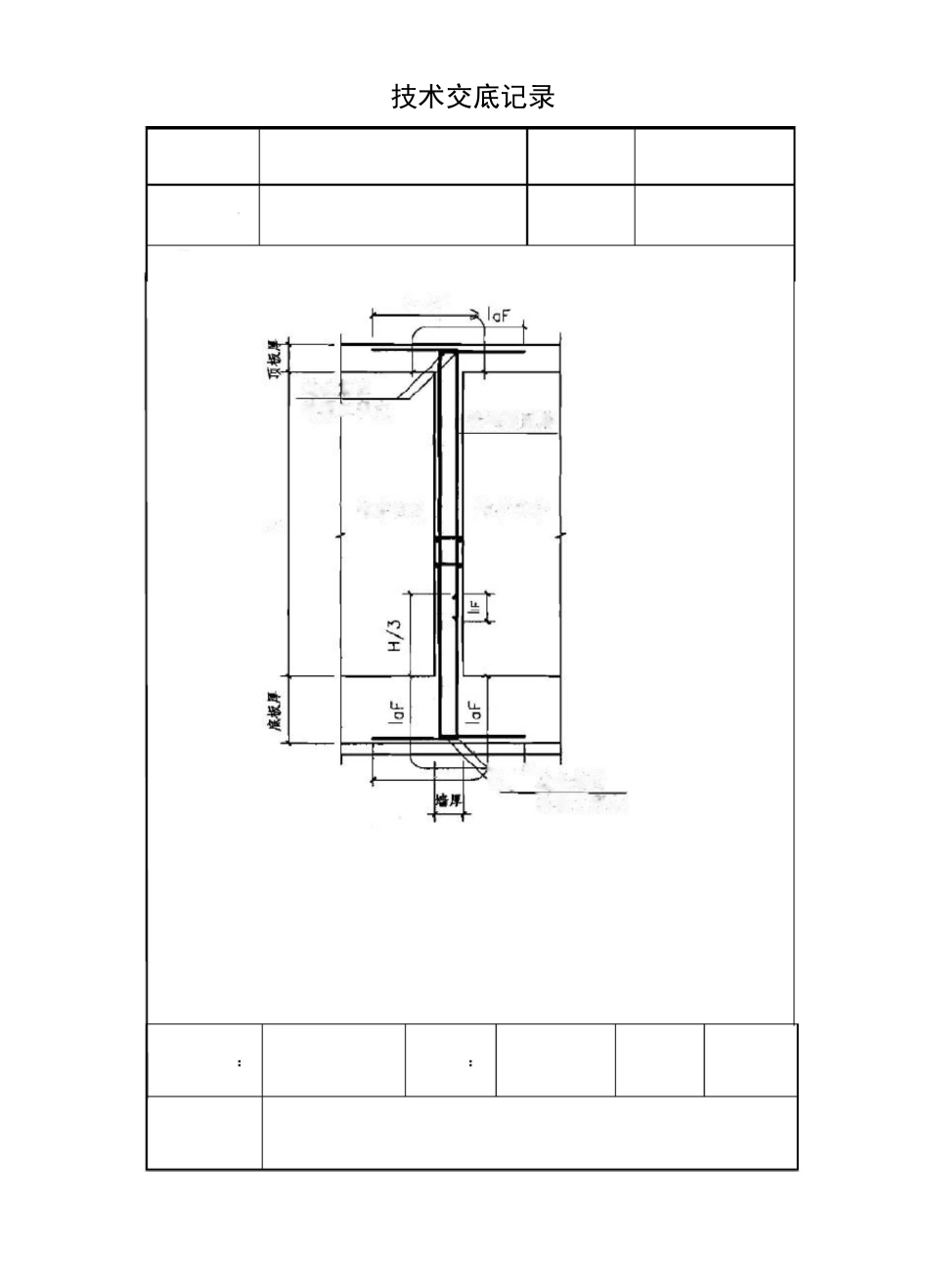
技术负责交底接交接交人:工程名称君禧华庭交底部位人防区钢筋加工及安装交底工程编号001日期交底内容:人防验收中常见问题一、底板:1、底板钢筋网片上下层筋必须满扎,不允许跳扣、漏扣。2、板筋“S”拉钩上下端要勾住板筋纵横筋节点,并绑扎牢固。3、人防验收前集水井子口钢筋必须绑扎完成,井口角钢锚固筋不得遗漏。4、门框墙反坎高度控制,与地漏的相对高度。5、人防口部四周均设置封闭箍筋,反坎封闭箍筋要勾住底板下层筋。6、临空墙、人防隔墙等人防特性墙在板内设置压脚筋。技术交底记录接交人:人防区钢筋加工及安装交底技术交底记录00工程名称君禧华庭交底部位工程编号父底内谷:技术负责人:3II=7>匸-S-A交底人:接交人:人防区钢筋加工及安装交底技术交底记录接交人:工程名称君禧华庭交底部位人防区钢筋加工及安装交底技术交底记录接交人:技术交底记录接交人:技术交底记录

1、当您付费下载文档后,您只拥有了使用权限,并不意味着购买了版权,文档只能用于自身使用,不得用于其他商业用途(如 [转卖]进行直接盈利或[编辑后售卖]进行间接盈利)。
2、本站所有内容均由合作方或网友上传,本站不对文档的完整性、权威性及其观点立场正确性做任何保证或承诺!文档内容仅供研究参考,付费前请自行鉴别。
3、如文档内容存在违规,或者侵犯商业秘密、侵犯著作权等,请点击“违规举报”。

碎片内容

人防钢筋交底

确认删除?
VIP
微信客服
  • 扫码咨询
会员Q群
  • 会员专属群点击这里加入QQ群
客服邮箱
回到顶部