电脑桌面
添加小米粒文库到电脑桌面
安装后可以在桌面快捷访问

什么是钻孔灌注桩自平衡试桩

什么是钻孔灌注桩自平衡试桩_第1页
1/5
什么是钻孔灌注桩自平衡试桩_第2页
2/5
什么是钻孔灌注桩自平衡试桩_第3页
3/5
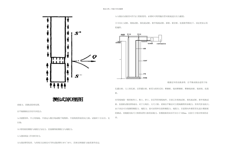
精品文档---下载后可任意编辑自平衡法测桩法是一种基于在桩基内部寻求加载反力的间接的静载荷试验方法。其主要装置是一种特制的荷载箱,它与钢筋笼连接而安置于桩身下部。试验时,从桩顶通过输压管对荷载箱内腔施加压力,箱盖与箱底被推开,从而调动桩周土的摩阻力与端阻力,直至破坏。将桩侧土摩阻力与桩底土阻力迭加而得到单桩抗压精品文档---下载后可任意编辑承载力,其测试原理见图。自平衡测桩法具有许多优点:(a)装置简单,不占用场地、不需运入数百吨或数千吨物料,不需构筑笨重的反力架;试验时十分安全,无污染;(b)利用桩的侧阻与端阻互为反力,直接测得桩侧阻力与端阻力;(c)试桩准备工作省时省力;(d)试验费用较省,与传统方法相比可节约试验费约 30%~40%,具体比例视桩与地质条件而定;(e)试验后试桩仍可作为工程桩使用,必要时可利用输压管对桩底进行压力灌浆;(f)在水上试桩、坡地试桩、基坑底试桩、狭窄场地试桩、斜桩、嵌岩桩、抗拔桩等情况下,该法更显示其优越性。根据近年的实践表明,自平衡试桩法适用于钻孔灌注桩,人工挖孔桩、沉管灌注桩,桩受力的形式有:摩擦桩、端承摩擦桩、摩擦端承桩、端承校、抗拔桩。应用场地除一般的粘性土、粉土、砂土、岩层等常规场地外,目前已在坡地试桩、基坑底试桩、狭窄场地试桩、抗拔桩试桩获得成功。对于大吨位、大尺寸桩,采纳自平衡法可方便地测得其承载力,但其代价也较大。由于该法可分别测得侧阻力、端阻力,故可求得单位面积侧阻力、端阻力。目前国内外都常常先进行模拟桩的测试,再根据实际尺寸换算求得大桩的承载力,但模拟桩的直径不应小于 800mm,以防尺寸效应带来的误差。精品文档---下载后可任意编辑囊式荷载箱组焊准备囊式荷载箱组焊精品文档---下载后可任意编辑囊式荷载箱导流筒囊式荷载箱导流筒混凝土填充精品文档---下载后可任意编辑囊式荷载箱-钢筋笼焊装囊式荷载箱-导正筋

1、当您付费下载文档后,您只拥有了使用权限,并不意味着购买了版权,文档只能用于自身使用,不得用于其他商业用途(如 [转卖]进行直接盈利或[编辑后售卖]进行间接盈利)。
2、本站所有内容均由合作方或网友上传,本站不对文档的完整性、权威性及其观点立场正确性做任何保证或承诺!文档内容仅供研究参考,付费前请自行鉴别。
3、如文档内容存在违规,或者侵犯商业秘密、侵犯著作权等,请点击“违规举报”。

碎片内容

什么是钻孔灌注桩自平衡试桩

津创媒+ 关注
实名认证
内容提供者

欢迎交流文创,小店资料希望满足您的需要。

确认删除?
VIP
微信客服
  • 扫码咨询
会员Q群
  • 会员专属群点击这里加入QQ群
客服邮箱
回到顶部