电脑桌面
添加小米粒文库到电脑桌面
安装后可以在桌面快捷访问

安装工程算量给排水专业实例(含图纸及计算式)

安装工程算量给排水专业实例(含图纸及计算式)_第1页
1/27
安装工程算量给排水专业实例(含图纸及计算式)_第2页
2/27
安装工程算量给排水专业实例(含图纸及计算式)_第3页
3/27
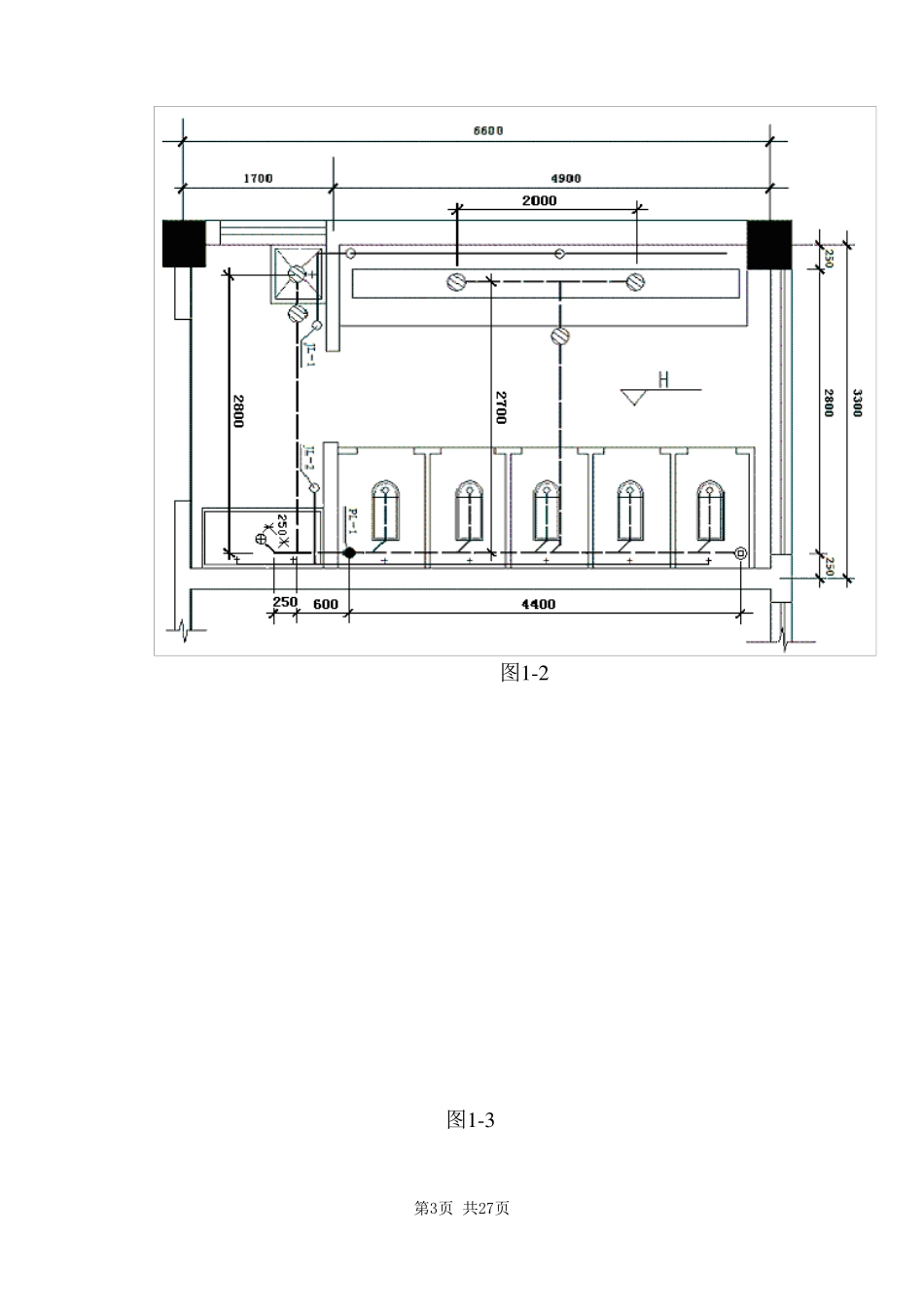
第1页 共27页 安装工程预算实例(含图纸及计算式) 一、给排水工程 第一节 室内给水工程识图中的预算知识 室内给水工程施工顺序 引入管(进户管)-→干管―→立管―→支管-→阀门类-→水压试验-→管道冲洗消毒。 一、引入管也称进户管 1、管道室内外界限划分 (1)入户处有阀门者以阀门为界(水表节点)。 (2)入户处无阀门者以建筑物外墙皮1.5m处为界。 2、防水套管 入户管在穿越地下室等外墙时,要设置防水套管,根据不同的防水要求分为刚性、柔性两种。刚性防水套管在一般防水要求时使用,柔性防水套管在防水要求较高时使用,如;水池壁、与水泵连接处。 (1)定额单位:个 (2)规格:按被套管的管径确定。 图1-1 注意:入户管为DN100,那么防水套管规格即为“DN100”的,该防水套管第 2页 共 27页 的 规 格 虽 是 “DN100”, 但 其 真 正 的 管 径 不 是 DN100的 , 而 应 该 是 DN150, 比 被套 管 的 管 径 大 , 否 则 穿 不 过 去 。 DN100防 水 套 管 这 一 定 额( 6册 )中 已 经 按 DN150的 人 工 费 、 材 料 费 、 机 械 费 计 入 了 。 〔 例 题 〕 1 、 某 给 排 水 工 程 给 水 入 户 管 为 De75, 消 防 入 户 管 为 DN100 , 排水 入 户 管 为 De160, 在 穿 越 建 筑 物 外 墙 时 设 置 防 水 套 管 , 问 : 分 别 用 什 么 规 格的 防 水 套 管 ? 答 : 给 水 用 DN80的 防 水 套 管 1个 。 消 防 用 DN100的 防 水 套 管 1个 。 排 水 用DN150的 防 水 套 管 3个 。 二 、 管 道 计 算 ( 干 管 、 立 管 、 支 管 ) 1、 定 额 单 位 : 10m 2、 计 算 : 按 不 同 材 质 、 不 同 管 径 分 别 累 计 长 度 。 准 确 计 算 管 道 长 度 的 关 键 是 找 准 管 道 变 径 点 的 位 置 , 对 于 螺 纹 连 接 的 管 道来 说 , 变 径 点 发 生 在 三 通 处 。 注 意 : 管 道 的 弯 头 、 阀 门 、 穿 楼 板 、 穿 墙 等 处 一 般 不 会 是 管 道 变 径 点 的 位置 。 ( 1) 水 平管 (干 管 )计 算 : 应 根据平面图上标注 的 尺寸计 算 , 因为 图纸设计 原因安装工 程 施...

1、当您付费下载文档后,您只拥有了使用权限,并不意味着购买了版权,文档只能用于自身使用,不得用于其他商业用途(如 [转卖]进行直接盈利或[编辑后售卖]进行间接盈利)。
2、本站所有内容均由合作方或网友上传,本站不对文档的完整性、权威性及其观点立场正确性做任何保证或承诺!文档内容仅供研究参考,付费前请自行鉴别。
3、如文档内容存在违规,或者侵犯商业秘密、侵犯著作权等,请点击“违规举报”。

碎片内容

安装工程算量给排水专业实例(含图纸及计算式)

确认删除?
VIP
微信客服
  • 扫码咨询
会员Q群
  • 会员专属群点击这里加入QQ群
客服邮箱
回到顶部