电脑桌面
添加小米粒文库到电脑桌面
安装后可以在桌面快捷访问

悬挑式卸料平台施工方案审批版

悬挑式卸料平台施工方案审批版_第1页
1/9
悬挑式卸料平台施工方案审批版_第2页
2/9
悬挑式卸料平台施工方案审批版_第3页
3/9
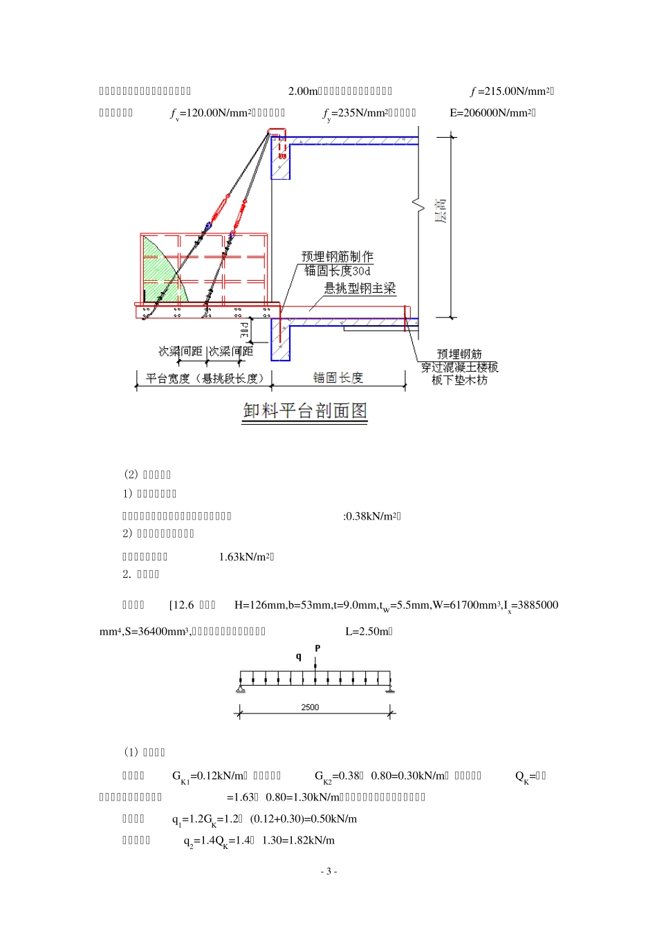
- 1 - 目 录 1、工程概况………………………………………………………………2 2、设计依据………………………………………………………………2 3、设计方案(详见附图1、 2 所示) …………………………………2 4、 悬挑卸料平台设计计算………………………………………………2 5、操作平台安全要求……………………………………………………8 6、钢平台安装……………………………………………………………9 - 2 - 悬挑式卸料平台施工方案 一、 工程概况: 广东公路大厦建设规模,地下三层,地上30 层、 其中首层层高为6.2m,二层层高为4.5m,三层层高为4.8m,四至三十层(标准层)层高为3.1m,总建筑面积38385m2。为了克服以往主体施工中卸料平台与主体连接复杂(须埋设预埋件铁件、吊环);搭设外架时须专门留设卸料平台口;本工程采用悬挑式转料平台设计,拆装方便,能够多次利用,悬挑式卸料平台二层开始设置,位于BA-AB*B2 轴处。计算依据《建筑施工安全检查标准》(JGJ59-99)和 《钢结构设计规范》(GB50017-2003)。 悬挂式卸料平台的计算参照连续梁的计算进行。由于卸料平台的悬挑长度和所受荷载都很大,因此必须严格地进行设计和验算。 平台水平钢梁(主梁)的悬挑长度4.4 m,悬挑水平钢梁间距(平台宽度)2.0 m。用2根钢丝绳斜拉固定,2根作为备用,主梁采用16a号槽钢槽口水平,次梁采用12.6号槽钢槽口水平,次梁间距2.0m。施工堆载、活荷载1.63kN/m 2; 二、设计依据: 1.《建筑施工高处作业安全技术规程》(JGJ80— 91) 2.《钢结构设计规范》(GB50017— 2003) 3.《建筑施工安全检查标准》(JGJ59— 99) 三、设计方案(详见附图1、 2 所示) 卸料平台宽度4.40m ,长度2.50m ,楼层高度3.10m ;平台上满铺木枋格栅。次梁采用[12.6 槽钢,间距800m m ; 悬挑主梁采用2 根 [16a 槽钢,槽钢悬挑梁端部设置吊索为Φ 16m m( 6× 19)钢丝绳,采用Φ 30m m 的 CO 型花篮螺栓,内侧钢丝绳吊点宽度2.00m , Φ 18m m锚固钢筋,Φ 20m m 吊环设置在上层楼面梁上。两边用两根Φ 16m m 钢丝绳斜拉固定,拉绳和卸料平台平面成37°,另外两根备用斜拉钢丝绳与平台成56°,斜拉钢丝绳张开一定距离固定在剪刀墙螺杆孔内。平台设1.2m 高的防护栏杆,设 18 ㎜厚胶合板挡板。以下是对其主次梁强度、稳定性,钢丝绳的强度,以及挡脚、吊环焊缝的验算。 四、悬挑卸料平台设计计算 1. 计...

1、当您付费下载文档后,您只拥有了使用权限,并不意味着购买了版权,文档只能用于自身使用,不得用于其他商业用途(如 [转卖]进行直接盈利或[编辑后售卖]进行间接盈利)。
2、本站所有内容均由合作方或网友上传,本站不对文档的完整性、权威性及其观点立场正确性做任何保证或承诺!文档内容仅供研究参考,付费前请自行鉴别。
3、如文档内容存在违规,或者侵犯商业秘密、侵犯著作权等,请点击“违规举报”。

碎片内容

悬挑式卸料平台施工方案审批版

确认删除?
VIP
微信客服
  • 扫码咨询
会员Q群
  • 会员专属群点击这里加入QQ群
客服邮箱
回到顶部