电脑桌面
添加小米粒文库到电脑桌面
安装后可以在桌面快捷访问

悬挑脚手架计算

悬挑脚手架计算_第1页
1/11
悬挑脚手架计算_第2页
2/11
悬挑脚手架计算_第3页
3/11
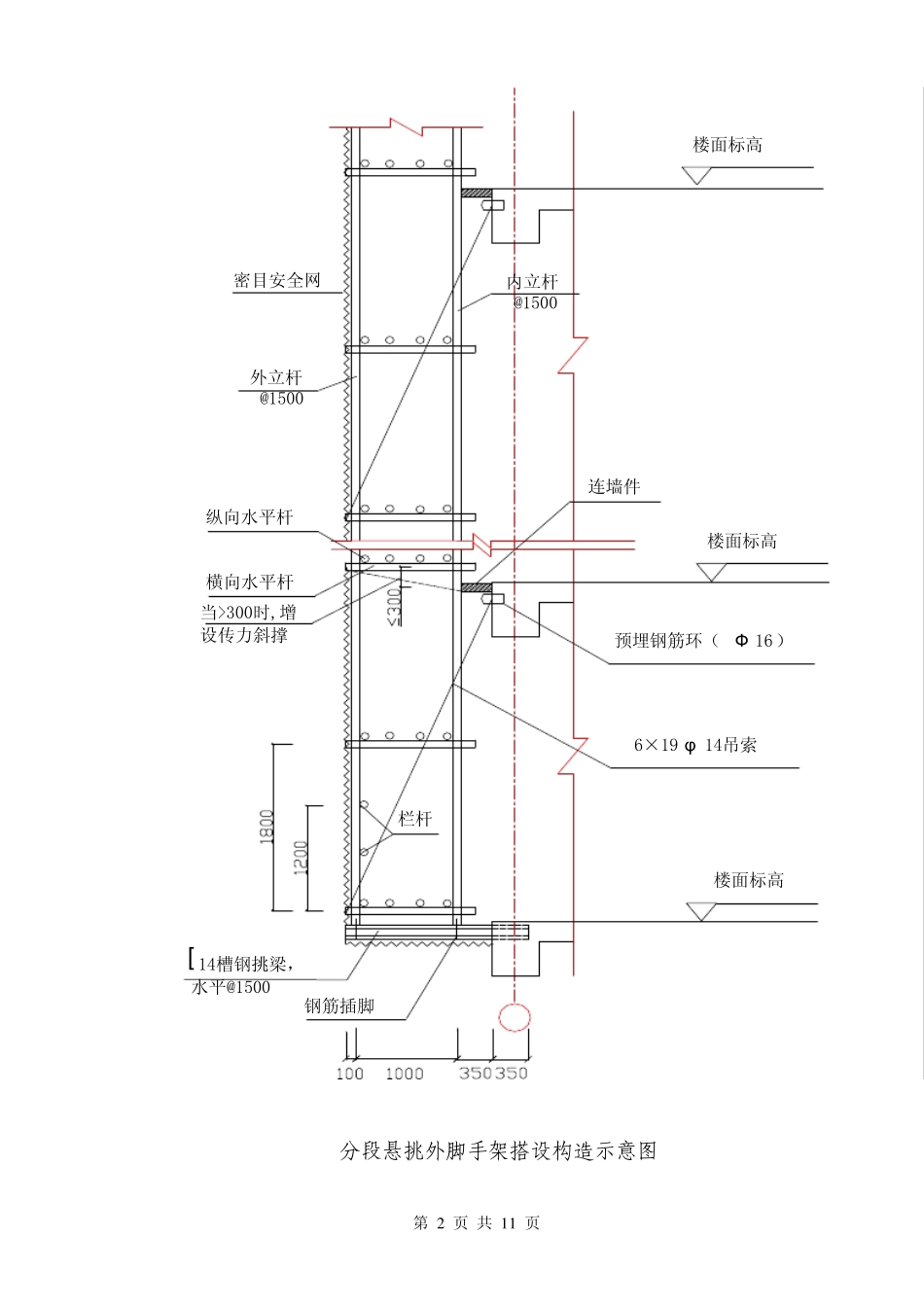
第 1 页 共 11 页 分段悬挑扣件式钢管脚手架计算书 一、外脚手架方案要点 1.分段搭设,分段卸载,每段高度为30m。 2.悬挑外脚手架跟随主体结构上升而逐段、逐层搭设,待进行悬挑第二段结构施工、脚手架升高搭设时,拆除第一悬挑段脚手架的钢管、脚手板、安全网等,用于第三段悬挑脚手架的搭设,依次循环向上进行。 3.搭设材料:用钢管扣件搭设双排脚手架的基本架体,立杆、大小横管均采用φ48×3.5钢管(钢材强度设计值 fc=205 N/mm2),以竹笆片作为脚手板,架体外侧用密目安全网封闭。 4.外脚手架基本技术参数 立杆横距:lb=1.0m 立杆纵距:la=1.5m 步距:h=1.8 m 连墙件为2步 3跨 对脚手架施工活荷载计算,主体施工阶段考虑一层作业,荷载标准值为3KN/m2;装饰阶段考虑二层同时作业,荷载标准值为2KN/m2。 5.执行标准:《建筑施工扣件式钢管脚手架安全技术规范》(JGJ130—2001、J84—2001)。 二、分段悬挑扣件式钢管脚手架构造 采用扣件式钢管脚手架搭设的分段悬挑脚手架构造示意图见下页所示。 三、荷载计算 按《建筑施工扣件式钢管脚手架安全技术规范》(JGJ130—2001、J84—2001)的有关规定执行。 第 2 页 共 1 1 页 分段悬挑外脚手架搭设构造示意图 [ 14槽钢挑梁,水平@1500钢筋插脚楼面标高密目安全网预埋钢筋环(Ф 16)6×19 φ 14吊索楼面标高楼面标高外立杆@1500内立杆@1500连墙件栏杆纵向水平杆横向水平杆当>300时,增设传力斜撑第 3 页 共 11 页 1.恒载标准值计算 由于搭设时,立杆的纵距la=1.5m,取纵向1.5m宽为计算单元,以悬挑高 度30m 高为一个验算段。 (1)结构自重标准值:按(JGJ1301—2001,J84--2001)附录A表A-1:构架基本结构部件自重 : gk1=0.1248 KN/m, 则 Gk1=Hi gk1=30×0.1248=3.744 KN (2)安全网、外围护结构整体拉结杆件和防护材料自重: gk3=0.0768 KN/m, 则 Gk3=Hi gk1=30×0.0768=2.304 KN (3)作业层材料自重栏杆、竹笆片荷重: gk2=0.05 KN/m2, 竹笆片隔层铺设,n=30/1.8=16.6,取n=17 Gk3= nla lbgk2=17×1.5×1.0×0.05=1.275 KN 则恒载总值: Gk1 = Gk1+Gk2 +Gk3=3.744+2.304+1.275=7.323 KN 2.施工活荷载标准值计算 QK= n1 la gk= n1 la *0.5qk 按(JGJ130—2001、J84—2001) 中 4.2.2条 结构施工时,q k =3 KN/m2, 装饰施工时,qk =2 KN/m2 ,gk =0.5 qk, 结构施工时,以一层施工荷载n=1, 装饰施工时,以...

1、当您付费下载文档后,您只拥有了使用权限,并不意味着购买了版权,文档只能用于自身使用,不得用于其他商业用途(如 [转卖]进行直接盈利或[编辑后售卖]进行间接盈利)。
2、本站所有内容均由合作方或网友上传,本站不对文档的完整性、权威性及其观点立场正确性做任何保证或承诺!文档内容仅供研究参考,付费前请自行鉴别。
3、如文档内容存在违规,或者侵犯商业秘密、侵犯著作权等,请点击“违规举报”。

碎片内容

悬挑脚手架计算

小辰6+ 关注
实名认证
内容提供者

出售各种资料和文档

确认删除?
VIP
微信客服
  • 扫码咨询
会员Q群
  • 会员专属群点击这里加入QQ群
客服邮箱
回到顶部