电脑桌面
添加小米粒文库到电脑桌面
安装后可以在桌面快捷访问

折弯和板厚的尺寸关系

折弯和板厚的尺寸关系_第1页
1/6
折弯和板厚的尺寸关系_第2页
2/6
折弯和板厚的尺寸关系_第3页
3/6
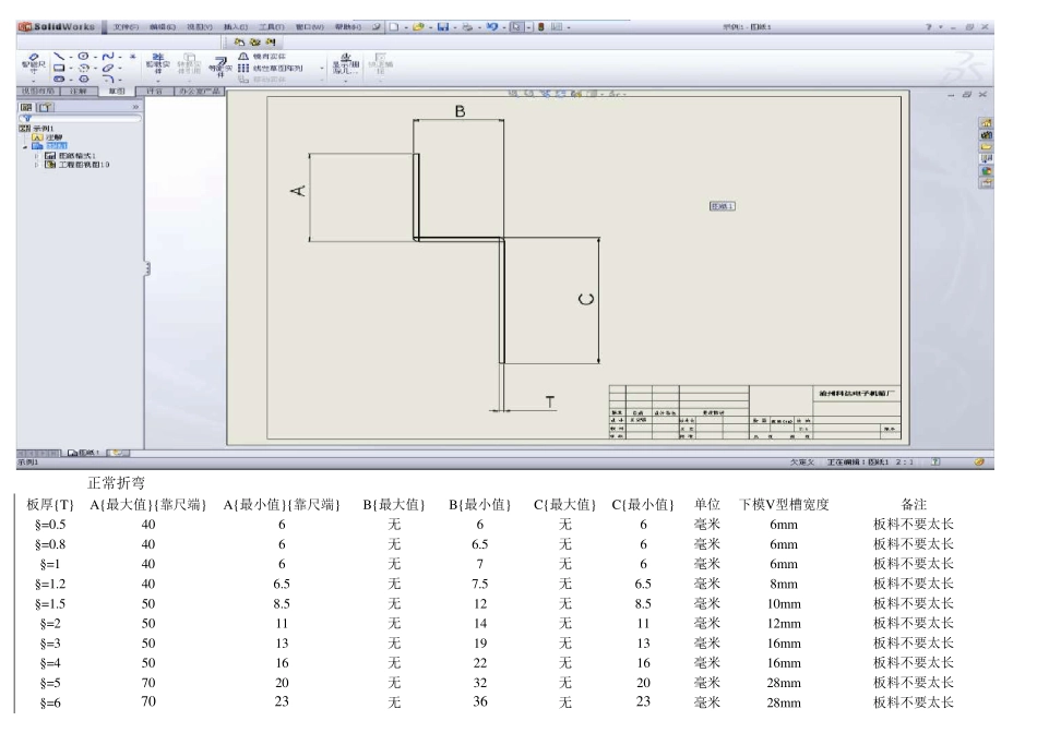
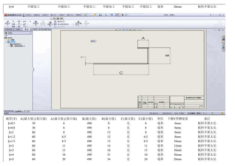
正常折弯板厚{T}A{最大值}{靠尺端}A{最小值}{靠尺端}B{最大值}B{最小值}C{最大值}C{最小值}单位下模V型槽宽度§=0.5406无6无6毫米6mm§=0.8406无6.5无6毫米6mm§=1406无7无6毫米6mm§=1.2406.5无7.5无6.5毫米8mm§=1.5508.5无12无8.5毫米10mm§=25011无14无11毫米12mm§=35013无19无13毫米16mm§=45016无22无16毫米16mm§=57020无32无20毫米28mm§=67023无36无23毫米28mm备注板料不要太长板料不要太长板料不要太长板料不要太长板料不要太长板料不要太长板料不要太长板料不要太长板料不要太长板料不要太长段差模加工板厚{T}A{最大值}{靠尺端}A{最小值}{靠尺端}B{最大值}B{最小值}C{最大值}C{最小值}单位下模V型槽宽度§=0.5301052无10毫米6mm§=0.8301052无10毫米6mm§=1301053无10毫米6mm§=1.2301053无10毫米8mm§=1.5301054无10毫米10mm§=2不能加工不能加工不能加工不能加工不能加工不能加工毫米12mm§=3不能加工不能加工不能加工不能加工不能加工不能加工毫米16mm§=4不能加工不能加工不能加工不能加工不能加工不能加工毫米16mm§=5不能加工不能加工不能加工不能加工不能加工不能加工毫米28mm备注板料不要太长板料不要太长板料不要太长板料不要太长板料不要太长板料不要太长板料不要太长板料不要太长板料不要太长§=6不能加工不能加工不能加工不能加工不能加工不能加工毫米 28mm板厚{T}A{最大值}{靠尺端}A{最小值}{靠尺端}B{最大值}B{最小值}C{最大值}C{最小值}单位下模V型槽宽度§=0.53064908无6毫米 6mm§=0.83064908无6毫米 6mm§=160649012无6毫米 6mm§=1.2606.549012无6.5毫米 8mm§=1.5608.549012无8.5毫米 10mm§=2601149014无11毫米 12mm§=3601349016无13毫米 16mm§=4601649031无16毫米 16mm§=5602049034无20毫米 28mm板料不要太长备注板料不要太长板料不要太长板料不要太长板料不要太长板料不要太长板料不要太长板料不要太长板料不要太长板料不要太长§=6602349036无23毫米 28mm板厚{T}A{最大值}{靠尺端}A{最小值}{靠尺端}B{最大值}B{最小值}C{最大值}C{最小值}单位下模V型槽宽度§=0.549064906无无 毫米 6mm§=0.849064906无无 毫米 6mm§=149064906无无 毫米 6mm§=1.24906.54906.5无无 毫米 8mm§=1.54908.54908.5无无 毫米 10mm§=24901149011无无 毫米 12mm§=34901349013无无 毫米 16mm§=44901649016无无 毫米 16mm§=54902049020无无 毫米 28mm板料不要太长备注板料不要太长板料不要太长板...

1、当您付费下载文档后,您只拥有了使用权限,并不意味着购买了版权,文档只能用于自身使用,不得用于其他商业用途(如 [转卖]进行直接盈利或[编辑后售卖]进行间接盈利)。
2、本站所有内容均由合作方或网友上传,本站不对文档的完整性、权威性及其观点立场正确性做任何保证或承诺!文档内容仅供研究参考,付费前请自行鉴别。
3、如文档内容存在违规,或者侵犯商业秘密、侵犯著作权等,请点击“违规举报”。

碎片内容

折弯和板厚的尺寸关系

您可能关注的文档

小辰3+ 关注
实名认证
内容提供者

出售各种资料和文档

确认删除?
VIP
微信客服
  • 扫码咨询
会员Q群
  • 会员专属群点击这里加入QQ群
客服邮箱
回到顶部