电脑桌面
添加小米粒文库到电脑桌面
安装后可以在桌面快捷访问

排水沟槽施工专项方案

排水沟槽施工专项方案_第1页
1/9
排水沟槽施工专项方案_第2页
2/9
排水沟槽施工专项方案_第3页
3/9
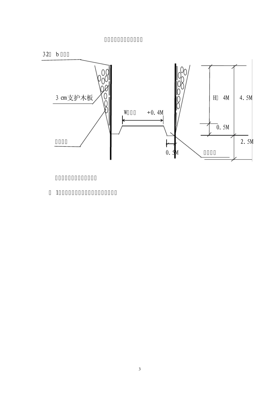
1 排水沟槽施工专项方案 本着规范、高效、安全对排水工程进行施工的原则,制定本专项施工方案。 一、雨、污水管道沟槽开挖施工方案 1、放坡开挖 在土质较好,开挖深度小于4M 的排水沟槽按1: 0.75 采用放坡开挖,沟槽土方开挖采用挖掘机反铲挖土,先将道路范围内土方开挖至路基标高,再进行沟槽土方开挖。沟槽开挖将到位时,为避免扰土,预留约30cm 左右土层用人工开挖、修整到设计标高,以保证槽底土壤结构不被扰动或超挖,认真控制槽底高程和宽度,同时及时进行管道的基础施工,以免槽底土壤暴露过久,若出现超挖现象,则及时进行处理。根据土质情况,机械开挖出的土方不能作为沟槽回填土时,将直接用载重量6T 自卸汽车运输出场5 公里外弃掉。如有符合工程质量的土料必须按设计要求,送交试验室作试验合格后方可用于作填料。现场可用做回填的土料,转运场地由业主提供,或往返各5 公里调运。 机械开挖沟槽底宽度按结构物底宽度每侧分别增加工作面0.5M。 在沟槽开挖的同时注意地下水的排放,地下水采用明沟排水,即施工中土基槽底边两侧挖50cm× 50cm 的流水边沟,边沟纵坡为0.2~~0.5%,每隔30~~ 40m 设一集水坑80cm× 80cm× 80cm,在人行道外侧沿道路纵向铺设Ф300 塑料排水管,把沟槽抽出的水排向现状排水系 2 统。放坡开挖见下示意图 放坡开挖沟槽示意图 1︰0.75 H≤ 4M W=管径+0.4M 0.5M 排水沟槽 0.5M 2、钢板桩支护开挖 沟槽开挖深度大于4M 时视土质情况,用槽钢板桩配砂袋支护相结合进行施工。钢板桩采用32# b 槽钢桩,桩长7M,预先将钢板桩卸在桩位附近6M 范围内。利用两部挖掘机人工配合打桩,一部挖掘机吊桩,一部挖掘机负责压桩,压桩时利用人工配合吊桩挖掘机将钢板桩扶正,施工时注意桩的垂直度。钢板桩距0.5M,钢板桩挤压入土深度2.5M,桩与桩之间在桩的背后用3 ㎝厚的木板支挡土块,木板后面用砂包支护。作法见下图: 3 钢板桩支护开挖沟槽示意图 32# b 槽钢桩 3 ㎝支护木板 H> 4M 4.5M W=管径+0.4M 0.5M 支护砂包 2.5M 0.5M 沟排水槽 沟槽土方开挖施工技术措施: ( 1)沟槽施工的工艺流程按如下程序进行: 4 沟槽施工工艺流程 ( 2)施工方法 ○1 、 沟槽开挖前应先探明开挖的地下管、线及地下结构物的具体方位尺寸和埋置深度,及施工相关的地下情况,已建管道情况。 ○2 、根据施工设计图纸、现场地质情况及场地条件。开挖从水流的下游方向往上游方向...

1、当您付费下载文档后,您只拥有了使用权限,并不意味着购买了版权,文档只能用于自身使用,不得用于其他商业用途(如 [转卖]进行直接盈利或[编辑后售卖]进行间接盈利)。
2、本站所有内容均由合作方或网友上传,本站不对文档的完整性、权威性及其观点立场正确性做任何保证或承诺!文档内容仅供研究参考,付费前请自行鉴别。
3、如文档内容存在违规,或者侵犯商业秘密、侵犯著作权等,请点击“违规举报”。

碎片内容

排水沟槽施工专项方案

您可能关注的文档

确认删除?
VIP
微信客服
  • 扫码咨询
会员Q群
  • 会员专属群点击这里加入QQ群
客服邮箱
回到顶部