电脑桌面
添加小米粒文库到电脑桌面
安装后可以在桌面快捷访问

桥梁监测方案

桥梁监测方案_第1页
1/25
桥梁监测方案_第2页
2/25
桥梁监测方案_第3页
3/25
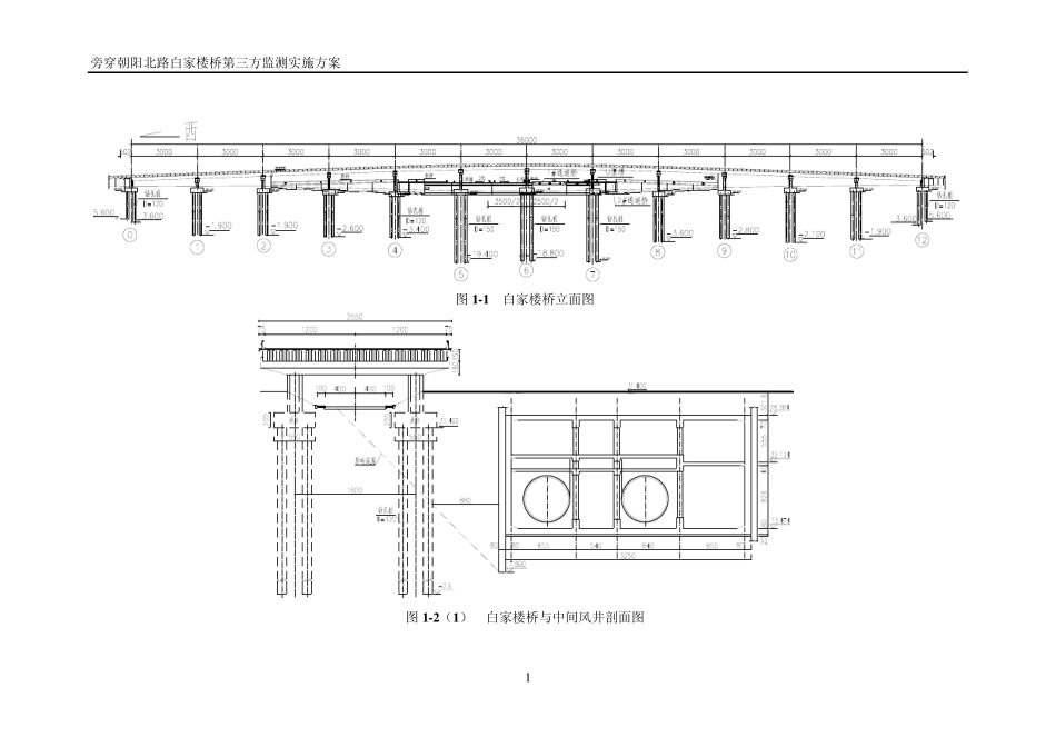
旁穿朝阳北路白家楼桥第三方监测实施方案 1 目 录 1 概述 ...................................................................... 1 1.1 工程概况 ............................................................. 1 1.2 工程地质与水文地质概况 ............................................... 1 1.3 结构设计及施工工法 ................................................... 1 2 监测目的 .................................................................. 1 3 第三方监测依据 ............................................................ 3 4 监测布点 .................................................................. 3 4.1 监测项目 ............................................................. 3 4.2 监测布点 ............................................................. 4 4.3 现场监测频率、周期及控制标准 ......................................... 5 5 现场监测 .................................................................. 6 5.1 监测点埋设 ........................................................... 6 5.2 施工前的初始数据采集 ................................................ 8 5.3 施工过程中的监测 ..................................................... 8 5.4 监测控制标准及报警值 ................................................. 9 5.5 监测数据处理与分析 .................................................. 9 6 现场巡视 .................................................................. 9 6.1 巡视主要内容 ....................................................... 11 6.2 主要巡视方法 ....................................................... 11 6.3 巡视预警标准 ....................................................... 12 6.4 巡视信息的分析及处理 ............................................... 12 7 信息反馈 ................................................................. 12 8 工作计划安排 ............................................................. 14 9 现场监测人员组织及监测设备 .....................................

1、当您付费下载文档后,您只拥有了使用权限,并不意味着购买了版权,文档只能用于自身使用,不得用于其他商业用途(如 [转卖]进行直接盈利或[编辑后售卖]进行间接盈利)。
2、本站所有内容均由合作方或网友上传,本站不对文档的完整性、权威性及其观点立场正确性做任何保证或承诺!文档内容仅供研究参考,付费前请自行鉴别。
3、如文档内容存在违规,或者侵犯商业秘密、侵犯著作权等,请点击“违规举报”。

碎片内容

桥梁监测方案

小辰8+ 关注
实名认证
内容提供者

出售各种资料和文档

确认删除?
VIP
微信客服
  • 扫码咨询
会员Q群
  • 会员专属群点击这里加入QQ群
客服邮箱
回到顶部