电脑桌面
添加小米粒文库到电脑桌面
安装后可以在桌面快捷访问

水工建筑物重力坝设计计算书

水工建筑物重力坝设计计算书_第1页
1/20
水工建筑物重力坝设计计算书_第2页
2/20
水工建筑物重力坝设计计算书_第3页
3/20
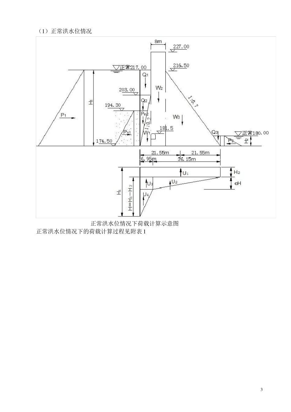
1 一 、 非 溢 流 坝 设 计 ( 一 )、 初 步 拟 定 坝 型 的 轮 廓 尺 寸 (1)坝 顶 高 程 的 确 定 ① 校 核 洪 水 位 情 况 下 : 波 浪 高 度 2hl=0.0166V5/4D1/3=0.0166×185/4×41/3=0.98m 波 浪 长 度 2Ll=10.4×(2hl)0.8=10.4×0.980.8=10.23m 波 浪 中 心 线 到 静 水 面 的 高 度 h0=π(2hl)2/ 2Ll=3.14×0.982/10.23=0.30m 安 全 超 高 按 Ⅲ 级 建 筑 物 取 值 hc=0.3m 坝 顶 高 出 水 库 静 水 位 的 高 度 △ h校=2hl+ h0+ hc=0.98+0.30+0.3=1.58m ② 设 计 洪 水 位 情 况 下 : 波 浪 高 度 2hl=0.0166(1.5V)5/4D1/3=0.0166×(1.5×18)5/4×41/3=1.62m 波 浪 长 度 2Ll=10.4×(2hl)0.8=10.4×1.620.8=15.3m 波 浪 中 心 线 到 静 水 面 的 高 度 h0=π(2hl)2/ 2Ll=3.14×1.622/15.3=0.54m 安 全 超 高 按 Ⅲ 级 建 筑 物 取 值 hc=0.4m 坝 顶 高 出 水 库 静 水 位 的 高 度 △ h设=2hl+ h0+ hc=1.62+0.54+0.4=2.56m ③ 两 种 情 况 下 的 坝 顶 高 程 分 别 如 下 : 校 核 洪 水 位 时 : 225.3+1.58=226.9m 设 计 洪 水 位 时 : 224.0+2.56=226.56m 坝 顶 高 程 选 两 种 情 况 最 大 值 226.9 m, 可 按 227.00m 设 计 , 则 坝 高 227.00-174.5=52.5m。 (2)坝 顶 宽 度 的 确 定 本 工 程 按 人 行 行 道 要 求 并 设 置 有 发 电 进 水 口 , 布 置 闸 门 设 备 , 应 适 当 加 宽 以 满 足 闸 门设 备 的 布 置 , 运 行 和 工 作 交 通 要 求 , 故 取 8 米 。 (3)坝 坡 的 确 定 考 虑 到 利 用 部 分 水 重 增 加 稳 定 , 根 据 工 程 经 验 , 上 游 坡 采 用 1: 0.2, 下 游 坡 按 坝 底 宽度 约 为 坝 高 的0.7~ 0.9 倍 , 挡 水 坝 段和 厂房坝 段均采 用1: 0.7。 (4)上 下 游 折坡 点高 程 的 确 定 理论分 析和 工 程 实验 证明,混凝土重 力坝 上 游 面 可 做成折坡 ,折坡 点一 般位 于1/3~2/3坝 高 处, 以 便利 用 上 游 坝 面 水 重 增 加 坝 体的 稳 定 。 根 据 坝 高 确 定 为 52.5m, 则...

1、当您付费下载文档后,您只拥有了使用权限,并不意味着购买了版权,文档只能用于自身使用,不得用于其他商业用途(如 [转卖]进行直接盈利或[编辑后售卖]进行间接盈利)。
2、本站所有内容均由合作方或网友上传,本站不对文档的完整性、权威性及其观点立场正确性做任何保证或承诺!文档内容仅供研究参考,付费前请自行鉴别。
3、如文档内容存在违规,或者侵犯商业秘密、侵犯著作权等,请点击“违规举报”。

碎片内容

水工建筑物重力坝设计计算书

确认删除?
VIP
微信客服
  • 扫码咨询
会员Q群
  • 会员专属群点击这里加入QQ群
客服邮箱
回到顶部