电脑桌面
添加小米粒文库到电脑桌面
安装后可以在桌面快捷访问

2025年电大建筑制图基础复习资料

2025年电大建筑制图基础复习资料_第1页
1/49
2025年电大建筑制图基础复习资料_第2页
2/49
2025年电大建筑制图基础复习资料_第3页
3/49
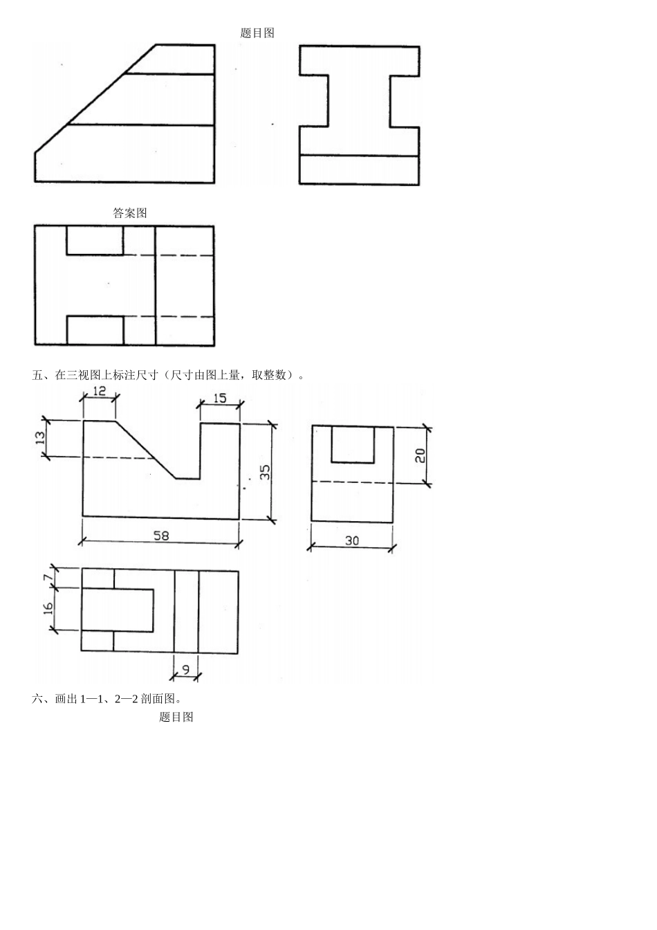
建筑制图基础复习资料复习资料一一、根据点的立体图,画出点的投影图。题目图 答案图 二、在平行直线 AB 与 CD 构成的平面内求画出一水平线的投影,该水平线距 H 面 20 毫米。题目图 答案图 三、根据主视图和左视图,求画出俯视图。题目图答案图四、根据主视图和左视图,求画出俯视图。题目图答案图五、在三视图上标注尺寸(尺寸由图上量,取整数)。六、画出 1—1、2—2 剖面图。题目图 答案图七、根据画出的三视图,画出正等轴测图。题目图 答案图 复习资料二一、根据点的立体图,画出点的投影图。题目图 答案图 二、在三角形 ABC 中,求画出一水平线及一正平线的两面投影。题目图 答案图 三、根据主视图和左视图,求画出俯视图。题目图答案图四、根据主视图和左视图,求画出俯视图。题目图答案图五、在三视图上标注尺寸(尺寸由图上量,取整数)。六、画出 1—1、2—2 剖面图。题目图 答案图 七、根据画出的三视图,画出正等轴测图。题目图 答案图 复习资料三一、已知 A 的三面投影,又知点 B 在点 A 左方 5 毫米,下方 10 毫米,后方 5 毫米,点 C 在点 A 正下方 10 毫米,求作 B、C 两点的三面投影。题目图 答案图 二、求点 A 到直线 BC 的垂直距离。题目图 答案图 三、在三角形 ABC 内作一条距 H 面 20 毫米的水平线,距 V 面 20 毫米的水平线。题目图 答案图 四、求作直线 AB 与平面 CDE 的交点,并鉴别直线 AB 的可见性。题目图 答案图五、求作圆柱被截切切后的水平投影及侧面投影。题目图 答案图 六、根据形体的两面投影,求出第三面投影。题目图 答案图 七、根据给出的三面投影图,画出正等轴测图。题目图 答案图 八、画出 1—1、2—2 的剖面图。题目图 答案图 复习资料四一、已知 A 距 H 面 20 毫米距 V、W 面均为 15 毫米,点 B 在 V 面上距 H 面 20 毫米,距 W 面 10 毫米,求作 A、B 两点的三面投影。题目图 答案图 二、已知点 A 及直线 CD 的投影,求作一直线 AB 与直线 CD 相交,并使交点 K 距 V 面 15 毫米。题目图 答案图 三、在三角形 ABC 内取一点 D,使其距 H 面 20 毫米,距 V 面 20 毫米。题目图 答案图 四、求作直线 AB 与平面 CDE 的交点,并鉴别直线 AB 的可见性。题目图 答案图 五、求作圆锥被截切后后的水平投影及侧面投影。题目图 答案图 六、根据形体的...

1、当您付费下载文档后,您只拥有了使用权限,并不意味着购买了版权,文档只能用于自身使用,不得用于其他商业用途(如 [转卖]进行直接盈利或[编辑后售卖]进行间接盈利)。
2、本站所有内容均由合作方或网友上传,本站不对文档的完整性、权威性及其观点立场正确性做任何保证或承诺!文档内容仅供研究参考,付费前请自行鉴别。
3、如文档内容存在违规,或者侵犯商业秘密、侵犯著作权等,请点击“违规举报”。

碎片内容

2025年电大建筑制图基础复习资料

您可能关注的文档

确认删除?
VIP
微信客服
  • 扫码咨询
会员Q群
  • 会员专属群点击这里加入QQ群
客服邮箱
回到顶部