电脑桌面
添加小米粒文库到电脑桌面
安装后可以在桌面快捷访问

电动伸缩门安装图方案二

电动伸缩门安装图方案二_第1页
1/8
电动伸缩门安装图方案二_第2页
2/8
电动伸缩门安装图方案二_第3页
3/8
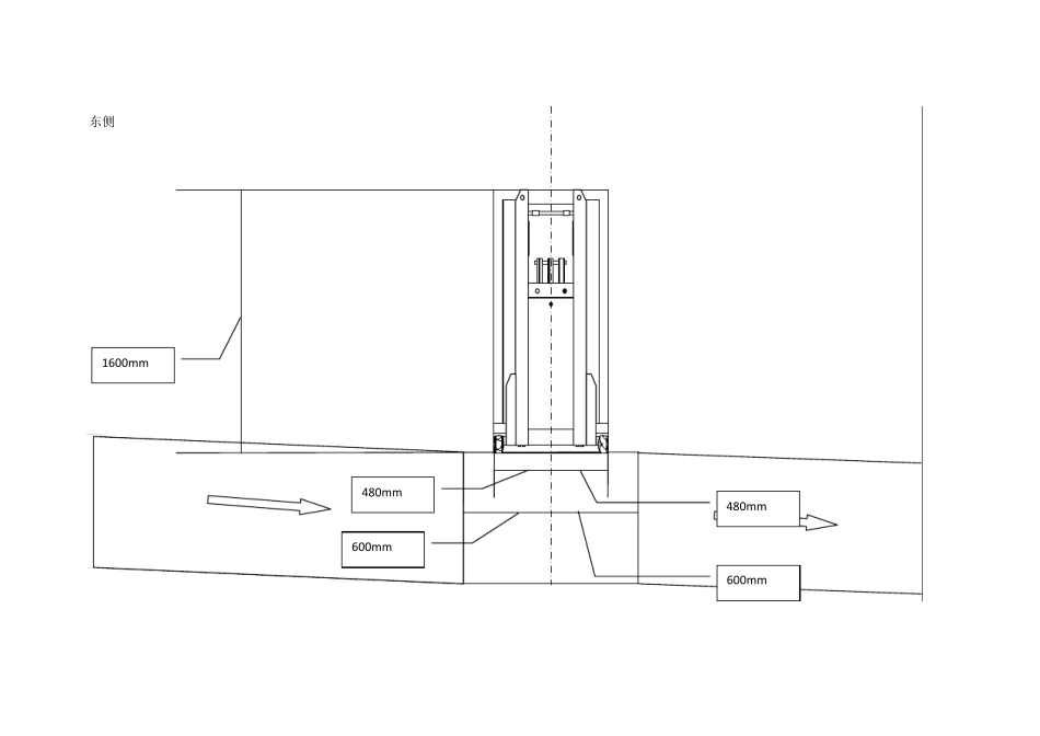
向阳西街小区大门电动伸缩门安装方案二 山西联创电子信息技术有限公司 200m m 6550m m 门: 7500m m 6550m m 门: 7500m m 200m m 3600m m 7200m m 门: 7500m m 200m m 东侧 480m m 600m m 480m m 600m m 1600m m 中部 480m m 600m m 1600m m 480m m 600m m 西侧 600m m 480m m 1600m m 480m m 100m m 600m m 550m m 中心线 伸缩门运行路面 路面宽度≥1200m m , 路面坡度<5‰ 中心线 伸缩门运行路面 路面宽度≥1200m m , 路面坡度<5‰ Φ 25PVC 管预埋 室外深度距地面100-150m m 室外 PVC 管两头露出地面300m m 室内管口露出地面300m m 拐角弯曲半径≥6 倍管径 穿线孔距顶端200m m 穿线孔距顶端200m m 穿线孔距顶端200m m 值班室

1、当您付费下载文档后,您只拥有了使用权限,并不意味着购买了版权,文档只能用于自身使用,不得用于其他商业用途(如 [转卖]进行直接盈利或[编辑后售卖]进行间接盈利)。
2、本站所有内容均由合作方或网友上传,本站不对文档的完整性、权威性及其观点立场正确性做任何保证或承诺!文档内容仅供研究参考,付费前请自行鉴别。
3、如文档内容存在违规,或者侵犯商业秘密、侵犯著作权等,请点击“违规举报”。

碎片内容

电动伸缩门安装图方案二

小辰6+ 关注
实名认证
内容提供者

出售各种资料和文档

确认删除?
VIP
微信客服
  • 扫码咨询
会员Q群
  • 会员专属群点击这里加入QQ群
客服邮箱
回到顶部