电脑桌面
添加小米粒文库到电脑桌面
安装后可以在桌面快捷访问

竣工图绘制规范

竣工图绘制规范_第1页
1/8
竣工图绘制规范_第2页
2/8
竣工图绘制规范_第3页
3/8
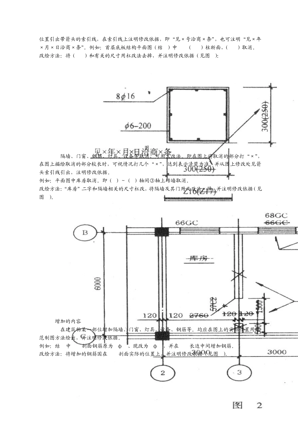
竣工图类型内容与要求 竣工图是建筑工程竣工档案的重要组成部分,是工程建设完成后主要凭证性材料,是建筑物真实的写照,是工程竣工验收的必备条件,是工程维修、管理、改建、扩建的依据。各项新建、改建、扩建项目均必须编制竣工图。 1、编制要求 1.1 凡按施工图施工没有变动的,由竣工图编制单位在施工图图签附近空白 处加盖并签署竣工图章。 1.2 凡一般性图纸变更,编制单位可根据设计变更依据,在施工图上直接改 绘,并加盖及签署竣工图章。 1.3 凡结构形式、工艺、平面布置、项目等重大改变及图面变更超过 40%的,应重新绘制竣工图。 重新绘制的图纸必须有图名和图号,图号可按原图编号。 1.4 编制竣工图必须编制各专业竣工图的图纸目录,绘制的竣工图必须准确、清楚、完整、规范、修改必须到位,真实反映项目竣工验收时的实际情况。 1.5 用于改绘竣工图的图纸必须是新蓝图或绘图仪绘制的白图不得使用复印的图纸。 1.6 竣工图编制单位应按照国家建筑制图规范要求绘制竣工图使用绘图笔或签字笔及不退色的绘图墨水。 2、主要内容 2.1 竣工图应按单位工程,并根据专业、系统进行分类和整理。 2.2 竣工图包括以下内容: 2.2.1 工艺平面布置图等竣工图 建筑竣工图、幕墙竣工图 结构竣工图、钢结构竣工图 建筑给水、排水与采暖竣工图 燃气竣工图 建筑电气竣工图 智能建筑竣工图(综合布线、保安监控、电视天线、火灾报警、气体灭水等) 通风空调竣工图 地上部分的道路、绿化、庭院照明、喷泉、喷灌等竣工图 地下部分的各种市政、电力、电信管线等竣工图 3、竣工图的类型 3.1 利用施工蓝图改绘的竣工图 3.2 在二底图上修改的竣工图 3.3 重新绘制的竣工图 4、竣工图绘制要求 4.1 利用施工蓝图改绘的竣工图 在施工蓝图上一般采用杠(划)改、叉改法,局部修改可以圈出更改部位,在原图空白处绘出更改内容,所有变更处都必须引划索引线,并注明更改依据。在施工图上改绘,不得使用涂改液涂抹、刀刮、补贴等方法修改图纸。具体的改绘方法可视图面、改动范围和位置、繁简程度等实际情况而定,以下是常见改绘方法的举例说明。 4.1.1 取消的内容 4.1.1.1 尺寸、门窗型号、设备型号、灯具型号、钢筋型号和数量、注解说明等数字、文字、符号的取消,可采用杠改法。即将取消的数字、文字、符号等用横杠杠掉(不得涂抹掉),从修改的位置引出带箭头的索引线,在索引线上注明修改依据,即“见×号洽商×条”,...

1、当您付费下载文档后,您只拥有了使用权限,并不意味着购买了版权,文档只能用于自身使用,不得用于其他商业用途(如 [转卖]进行直接盈利或[编辑后售卖]进行间接盈利)。
2、本站所有内容均由合作方或网友上传,本站不对文档的完整性、权威性及其观点立场正确性做任何保证或承诺!文档内容仅供研究参考,付费前请自行鉴别。
3、如文档内容存在违规,或者侵犯商业秘密、侵犯著作权等,请点击“违规举报”。

碎片内容

竣工图绘制规范

您可能关注的文档

确认删除?
VIP
微信客服
  • 扫码咨询
会员Q群
  • 会员专属群点击这里加入QQ群
客服邮箱
回到顶部