电脑桌面
添加小米粒文库到电脑桌面
安装后可以在桌面快捷访问

塔吊基础施工方案5

塔吊基础施工方案5_第1页
1/6
塔吊基础施工方案5_第2页
2/6
塔吊基础施工方案5_第3页
3/6
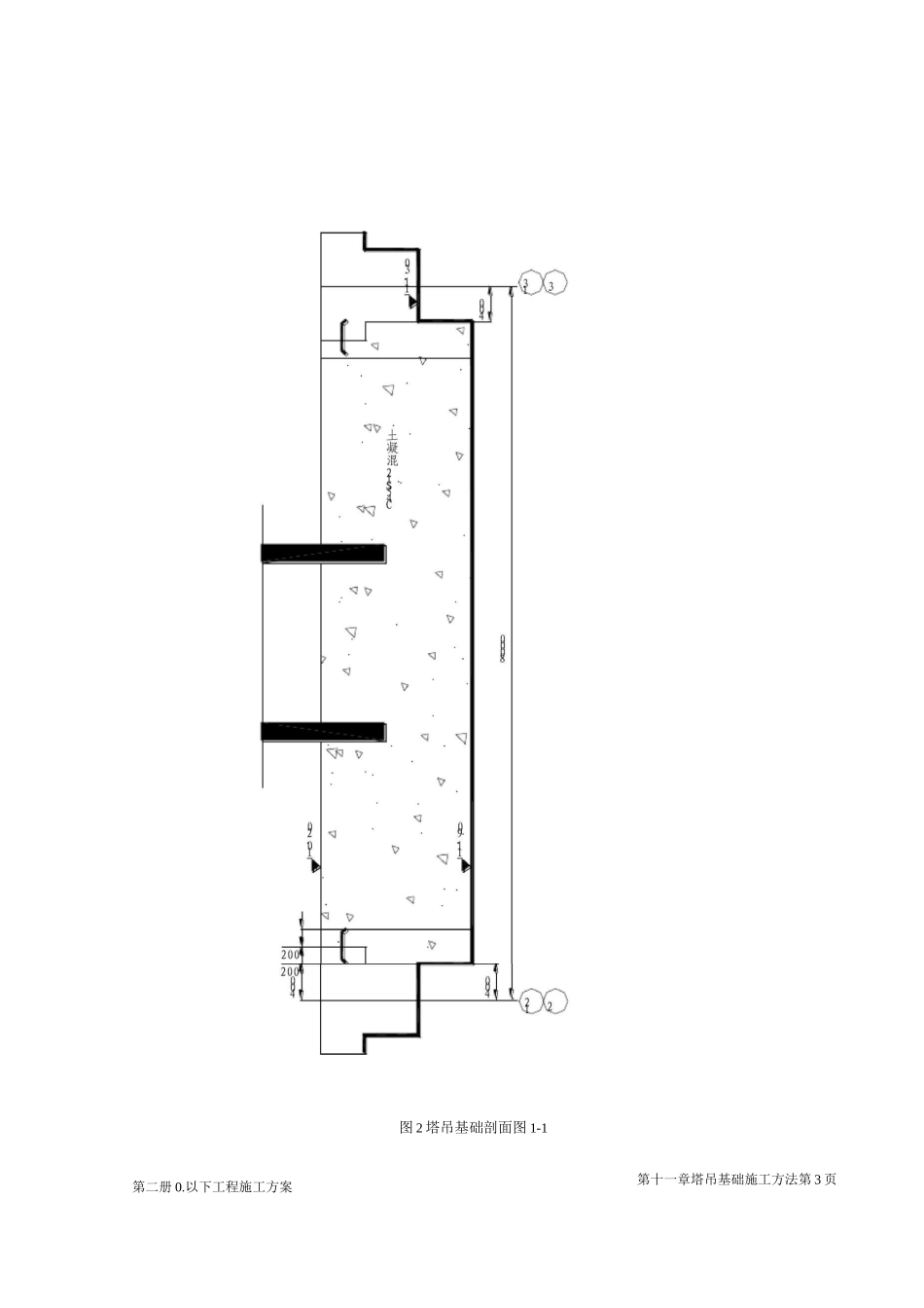
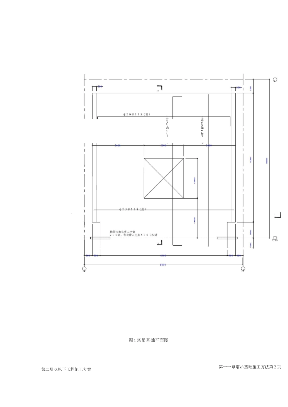
塔吊基础施工方案 1根据工程的实际需要,在 48、50 栋 A-1/0A 轴之间做两座塔吊基础。基础平面位置见图 30,剖面图见图 31、32,配筋图见图 33。塔吊基础顶面标高与底板顶面标高一致为-10.2 米,基础深 1.7 米,塔吊基础底面标高为-11.9 米。塔吊基础混凝土标号同地下室底板及地梁的标号,为 C45S8。由于塔吊基础边长为 7.2 米,且顶面标高为-10.2 米,故该部分底板、1/0A 轴地梁同塔吊基础一起浇筑,靠近 A 轴处基础加宽( 8mm)与 1.2 米厚底板相接,底板、地梁浇筑范围四周边留置施工缝,加设钢板止水带。塔吊基础钢筋和相应部位的底板钢筋同时绑扎。塔吊基础施工完毕后养护 7 天开始安装塔吊,安装未完成时,保留施工临时坡道,48. 49 栋基础垫层施工和防水施工正常进行,50 栋则在塔吊安装完毕后进行施工。塔吊基础钢筋面筋采纳双层双向中 20@118;底筋采纳双层双向中 25@118;中间架立筋采纳中 20@470。1/0A 轴地梁两头施工缝考虑受剪力,各增加一根工字钢(10 长 x 2 高),每边伸入支座 5。塔吊基础四周施工缝今后按后浇带有关处理方法施工。1 塔吊安装前由项目部拟定“塔吊安装方案”交由公司安全部审批,同意后方可进行安装。安装后要求时运转三天可报公司验收,然后才能正常使用。第十一章 塔吊基础施工方法 第 1 页第二册 0.以下工程施工方案第十一章塔吊基础施工方法第 2 页第二册 0.以下工程施工方案1底<811@524面<811@o2e图 1 塔吊基础平面图第十一章塔吊基础施工方法第 3 页第二册 0.以下工程施工方案图 2 塔吊基础剖面图 1-1第十一章塔吊基础施工方法第 4 页第二册 0.以下工程施工方案图 3 塔吊基础剖面图 2-2带水止板钢巾 20@118支撑筋巾 20@470 —巾 25@118图 4 塔吊基础配筋图第二册 0.以下工程施工方案第十一章塔吊基础施工方法第 5 页第二册 0.以下工程施工方案第十一章塔吊基础施工方法第 6 页

1、当您付费下载文档后,您只拥有了使用权限,并不意味着购买了版权,文档只能用于自身使用,不得用于其他商业用途(如 [转卖]进行直接盈利或[编辑后售卖]进行间接盈利)。
2、本站所有内容均由合作方或网友上传,本站不对文档的完整性、权威性及其观点立场正确性做任何保证或承诺!文档内容仅供研究参考,付费前请自行鉴别。
3、如文档内容存在违规,或者侵犯商业秘密、侵犯著作权等,请点击“违规举报”。

碎片内容

塔吊基础施工方案5

您可能关注的文档

确认删除?
VIP
微信客服
  • 扫码咨询
会员Q群
  • 会员专属群点击这里加入QQ群
客服邮箱
回到顶部