电脑桌面
添加小米粒文库到电脑桌面
安装后可以在桌面快捷访问

电梯井塔吊施工方案

电梯井塔吊施工方案_第1页
1/10
电梯井塔吊施工方案_第2页
2/10
电梯井塔吊施工方案_第3页
3/10
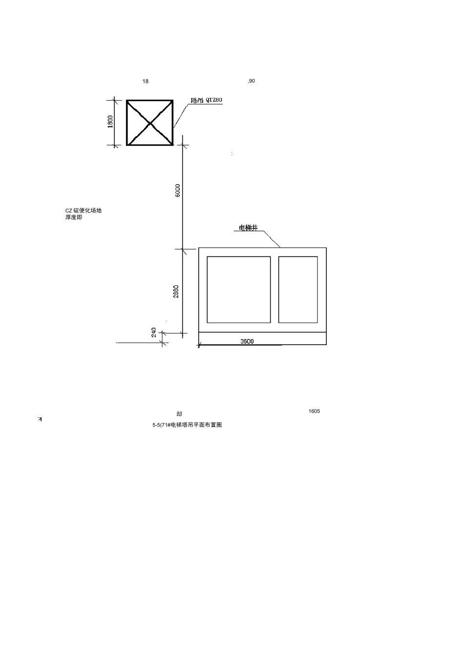
电梯井塔吊施工方案一. 工程概况1. 工程概况上海电气临港重型装备制造基地联合厂房 1-6 区,设有四部电梯,其中两部为观光电梯,另两部为普通客运电梯。观光电梯为砼框架结构,普通客运电梯为砼剪力墙结构。电梯井高度为 42.0-47.26M,层数约 18 层。垂直运输难度较大,因此,每座电梯井设置一部塔吊,利用塔吊解决垂直运输问题,。2. 平面布置图21-4 区辩电梯塔吊平面布置图16501890於玲硬化场地 厚度汕,9018CZ 碇便化场地 厚度即却5-5(71#电梯塔吊平面布置圈160512018匚实碇哽化场地 厚度河;.比明史叩22S-日区溯电格塔吊平面布置囹二.编制依据1. 机械工业第二设计讨论院设计的图纸:M789Z02-1-G226-227;2. 上第机电设计讨论院设计的图纸:M789Z02-2G67-68;3. 《建筑地基基础设计法律规范》(GB207-22 );4. 《混凝土结构设计法律规范》(GB510-22 );5. 《建筑施工手册》。三.塔吊基本参数本工程每座电梯设置一台塔吊,塔吊型号为 QTZ80,最大起重荷载 60.KN,最大起吊高度 120. 米,自重(包括压重)485.50KN,设计倾覆力矩 880.KN。本工程塔吊起吊高度为 60.米,自重为 335.50KN。四. 基础设计塔吊基础为钢筋混凝土基础,平面尺寸为 10x10 米,厚度为 1.4 0 米。砼强度等级为 C35,基础埋 深 0.米。如下图所示:五.地基处理塔吊设计地基承载力为 2.KN。因本工程所处地基为软弱地基,所以必须进行地基处理。将基础底部铺设三皮土,厚度为 10,每边超出基础 10,平面尺寸为 120 x 120。查施工手册,地耐力达到 2-250KN。要求三皮土分层夯实,压实系数为 0.94-0.97。六. 塔吊基础承载力计算根据《建筑地基基础设计法律规范》(GB207-22 )第 5.2 条,塔吊基础承载力计算: 当不考虑附着时的基础设计计算公式:Pma = (F+G)/L2+M/WPmin=(F+G)/L2-M/W当考虑附着时的基础设计计算公式:P=(F+G)/L2当考虑偏心矩较大时的基础设计计算公式:P 疽 2(F+G)/3La式中:F 一塔吊作用于基础的竖向力,它包括塔吊自重、压重和最大起重荷载。F=1.2 x (335.50+60)=395.50 x 1.2=474.60KNG—基础自重和基础上土的自重.G=1.2 x 25.0 x 10 x 10 x 1.40=42KNL—基础底面宽度,本基础为 10 米.M 一倾覆力矩,包括风荷载产生的力矩和最大起重力矩.W—基础底面的抵抗矩.W=LxLxL/6=166.67m3a—合力作用点至基础底面最大压力边缘距离(M),按下式计算:a=L/2-M/(F+G)a=10/2-1232.0/(474.50+42)=4.74m经过计算得到:无附着...

1、当您付费下载文档后,您只拥有了使用权限,并不意味着购买了版权,文档只能用于自身使用,不得用于其他商业用途(如 [转卖]进行直接盈利或[编辑后售卖]进行间接盈利)。
2、本站所有内容均由合作方或网友上传,本站不对文档的完整性、权威性及其观点立场正确性做任何保证或承诺!文档内容仅供研究参考,付费前请自行鉴别。
3、如文档内容存在违规,或者侵犯商业秘密、侵犯著作权等,请点击“违规举报”。

碎片内容

电梯井塔吊施工方案

确认删除?
VIP
微信客服
  • 扫码咨询
会员Q群
  • 会员专属群点击这里加入QQ群
客服邮箱
回到顶部