电脑桌面
添加小米粒文库到电脑桌面
安装后可以在桌面快捷访问

给排水安装工程施工图预算编制-secret

给排水安装工程施工图预算编制-secret_第1页
1/21
给排水安装工程施工图预算编制-secret_第2页
2/21
给排水安装工程施工图预算编制-secret_第3页
3/21
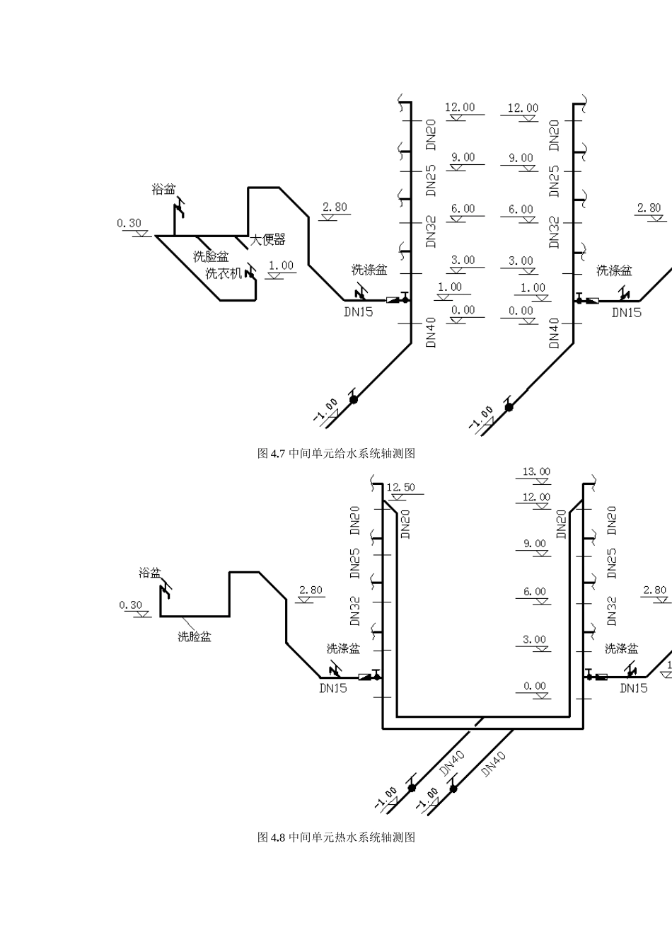
实例:给排水安装工程施工图预算编制一、某给排水工程的工程概况、施工图与施工说明1、工程概况:某五层住宅楼共三个单元,每单元 10 户。由户外阀门井埋地引入自来水供水管道,通过立管经各户横支管上的水表向其厨房和卫生间设备供水。由小区换热站经地沟引入热水管道,并通过立管经各户热水表。由横支管向其厨房和卫生间设备供水。热水回水立管返回地沟,通向小区换热站。卫生间与厨房的排水管道经不同排水立管分别经其排出管引至室外化粪池。本工程预算范围如下:给水工程:自户外阀门井至各户用水器具。热水工程:自管沟入口阀门至各户用水器具。排水工程:自各户排水器具至室外化粪池。2、施工图:由于本住宅三个单元给水、热水、排水工程完全一致,为简单、清楚、便于学习起见,仅给出中间单元的给水、热水、排水工程施工图。(1)中间单元底层给水、热水、排水工程平面图(图 4.4)。(2)厨房给水、热水、排水工程平面图(图 4.5)。(3)卫生间给水、热水、排水工程平面图(图 4.6)。(4)中间单元给水系统轴测图(图 4.7)。(5)中间单元热水系统轴测图(图 4.8)。(6)中间单元排水系统轴测图(仅右边五层用户,图 4.9)。3、施工说明:(1)给水管道采纳镀锌钢管(螺纹连接),进户埋地引入,室内立管明敷设于房间阴角处,各户横支管沿墙、沿吊顶明敷设,安装高度见施工图。(2)热水管道、热水回水管道在地沟内并排敷设于水平支架上。亦为镀锌钢管(螺纹连接),其立管与横管的敷设方式与给水管道相同。热水及热水回水管道穿墙设镀锌铁皮套管,穿楼板时设钢套管。图 4.4 中间单元底层给水、热水、排水工程平面图图 4.5 厨房给水、热水、排水工程平面图图 4.6 卫生间给水、热水、排水工程平面图图 4.7 中间单元给水系统轴测图图 4.8 中间单元热水系统轴测图图 4.9 中间单元排水系统轴测图(仅右边五层用户)(3)冷、热水管道同时安装时应符合下列规定:① 上、下平行安装时热水管道应在冷水管道上方。② 垂直平行安装时热水管道应在冷水管道左侧。(4)给水管道在交付使用前必须冲洗和消毒。(5)热水管道在交付使用前必须冲洗。(6)地沟内的热水管采纳泡沫塑料瓦块(δ=40mm)保温,缠绕玻璃丝布保护层后刷沥青漆两道。(7)排水管道采纳承插铸铁排水管(水泥接口),明敷设时,铸铁管除锈刷红丹防锈漆一道,银粉漆两道。埋地敷设时,铸铁管除锈后刷热沥青两道防腐。(8)排水立管明敷设于厨房、卫生间墙阴角...

1、当您付费下载文档后,您只拥有了使用权限,并不意味着购买了版权,文档只能用于自身使用,不得用于其他商业用途(如 [转卖]进行直接盈利或[编辑后售卖]进行间接盈利)。
2、本站所有内容均由合作方或网友上传,本站不对文档的完整性、权威性及其观点立场正确性做任何保证或承诺!文档内容仅供研究参考,付费前请自行鉴别。
3、如文档内容存在违规,或者侵犯商业秘密、侵犯著作权等,请点击“违规举报”。

碎片内容

给排水安装工程施工图预算编制-secret

您可能关注的文档

确认删除?
VIP
微信客服
  • 扫码咨询
会员Q群
  • 会员专属群点击这里加入QQ群
客服邮箱
回到顶部