电脑桌面
添加小米粒文库到电脑桌面
安装后可以在桌面快捷访问

冰箱制冷系统设计说明书VIP专享VIP免费

冰箱制冷系统设计说明书_第1页
1/23
冰箱制冷系统设计说明书_第2页
2/23
冰箱制冷系统设计说明书_第3页
3/23
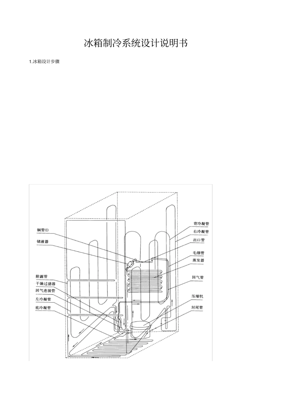
冰箱制冷系统设计说明书1.冰箱设计步骤图1BCD-348W/H电冰箱制冷系统图2.冰箱的总体布置2.1箱体设计要求及形式电冰箱箱体设计的优劣,直接影响使用性能、外观、耐久性制造成本和市场销售。在进行设计时,要求造型别致、美观大方。除色调要与家庭家具协调外,还必须考虑占地面积小内容积大,宽度、深度与高度的比例合理,有稳定感等。冰箱箱体尺寸见表1。表1箱体尺寸2.2箱体外表面温度校核和绝热层厚度设计箱体的绝热层时,可预先参照国内外冰箱的有关资料设定其厚度,并计算出箱体表面温度tw。如果箱体外表面温度tw低于露点温度td,则会在箱体表面发生凝露现象,因此箱体表面温度必须高于露点温度,一般tw>td+0.2toti)(ioooWttaKtt(1)国家标准GB8059.1规定,电冰箱在进行凝露实验时亚温带SN、温带N气候条件下,露点温度为19±0.5℃亚热带ST、热带T气候条件下,露点温度为27±0.5℃在tw>td的前提下,计算箱体的漏热量Q1,并用下面的公式校验绝热层的厚度121)(QttAww(2)1wt----冰箱外壁温度,℃2wt----冰箱内壁温度,℃-----绝热层导热系数,w/(m.k)A-----传热面积,m2校验计算的厚度在设定厚度基础上进行修正,反复计算,直到合理为止。3.冰箱热负荷计算总热负荷Q=Q1+Q2+Q3Q1----箱体的漏热量Q2----门封漏热量Q3----除露管漏热量(1)箱体的漏热量Q1由于箱体外壳钢板很薄,而其导热系数很大,所以钢板热阻很小,可忽略不计。内胆多用塑料ABS成型,热阻较大,可将其厚度一起计入隔热层,箱体的传热可以看做单层平壁的传热。)(1iottKAQ(3)(4)其中:K——传热系数,W/m2·℃;A——传热面积,m2;to——箱体外空气温度,℃;ti——箱体内空气温度,℃αo——箱外空气对箱体外表面的表面换热系数,W/m2·℃;αi——箱体内表面对箱内空气的表面换热系数,W/m2·℃;ioaaK111λ——绝热层的导热系数,W/m2·℃;δ——箱体各绝热层的厚度,m注:1当室内风速为0.1-0.15m/s时,αo可取3.5-11.6W/m2·℃2箱内空气为自然对流(直冷冰箱)时,αi可取0.6-1.2W/m2·℃3间冷冰箱,由于箱内风速大,αi可取17-23W/m2·℃(2)门封漏热量Q2冷冻室和冷藏室的门封漏热系数均取0.0406W/m·℃。Q2=0.0406·L·(to-ti)(6)其中:L——门封有效长度;mto——箱体外空气温度,℃;ti——箱体内空气温度,℃(3)除露管漏热量Q3依据经验公式估算除露管带给箱体的热负荷:Q3=(LD/1.79)×0.2294×(tD-0.84to-0.16tF)×Pr(7)其中:LD——除露管有效长度;mtD——除露管温度;℃to——箱体外空气温度,℃;tF——冷冻室温度;℃Pr——压缩机工作系数;停机开机开机timetimetimePr4.制冷系统热力计算电冰箱制冷系统热力计算的目的是算出循环系统的性能指标,制冷工质的循环量和压缩机实际吸入蒸气量。以此作为设计电冰箱冷凝器、蒸发器及压缩机选型的依据。4.1制冷循环的额定工况制冷循环的额定工况参照国标GB9098-88中规定的工况,见表2。表2.我国国标GB9098-88中规定的工况制冷系统中的需确定的参数为:冷凝温度tk,蒸发温度t0,回气温度th,过冷温度tg(1)冷凝温度tk冷凝温度一般取决于冷却介质的温度以及冷凝器中冷质与制冷剂的传热温差,传热温差与冷凝器的冷却方式和结构形式有关。电冰箱大多采用空气自然对流冷却方式,制冷剂的冷凝温度等于外界空气温度加上冷凝传热温差。冷凝传热温差一般取10℃-20℃,冷凝器的传热性能好,可适当取小的数值,例如采用风速为2-3m/s的风冷却时,传热温差可取8-10℃(2)蒸发温度t0蒸发温度一般取决于被冷却物体的温度以及蒸发器中制冷剂与被冷却物体的传热温差,电冰箱的蒸发温度等于箱内温度减去传热温差,一般传热温差取5-10℃,如采用风冷却式时传热温差可取5℃。箱内温度一般参照星级要求选取。(3)回气温度th回气温度取决于蒸气离开蒸发器时的状态和回气管的长度。电冰箱采用全封闭压缩机,一般进入壳体的状态为吸气状态,可根据压缩机标定的共况选取,该值越低对压缩机运行越有利。一般回气温度要小于或等于环境温度,但经实际测定,由于电机加热吸入气缸前过热蒸气温度达到80℃(4)过冷温度tg过冷温度取决于液体制冷剂在回气管中进行热交换的程度。冷凝后的制冷剂...

1、当您付费下载文档后,您只拥有了使用权限,并不意味着购买了版权,文档只能用于自身使用,不得用于其他商业用途(如 [转卖]进行直接盈利或[编辑后售卖]进行间接盈利)。
2、本站所有内容均由合作方或网友上传,本站不对文档的完整性、权威性及其观点立场正确性做任何保证或承诺!文档内容仅供研究参考,付费前请自行鉴别。
3、如文档内容存在违规,或者侵犯商业秘密、侵犯著作权等,请点击“违规举报”。

碎片内容

冰箱制冷系统设计说明书

确认删除?
VIP
微信客服
  • 扫码咨询
会员Q群
  • 会员专属群点击这里加入QQ群
客服邮箱
回到顶部