电脑桌面
添加小米粒文库到电脑桌面
安装后可以在桌面快捷访问

2024年工程力学实验”实验报告VIP专享VIP免费

2024年工程力学实验”实验报告_第1页
1/5
2024年工程力学实验”实验报告_第2页
2/5
2024年工程力学实验”实验报告_第3页
3/5
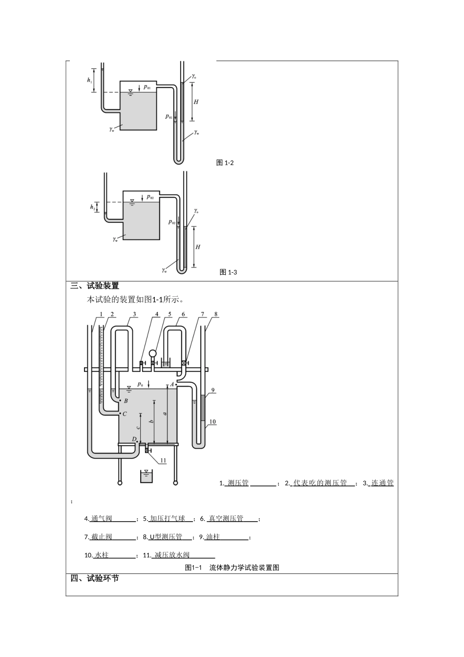
中国石油大学(华东)现代远程教育工程流体静力学试验汇报学生姓名:学号:年级专业层次:学习中心:提交时间:1月10日试验名称流体静力学试验试验形式在线模拟+现场实践提交形式提交电子版试验汇报一、试验目的1.掌握用液式测压及测量流体静压强的技能。2.验证不可压缩流体静力学基本方程,加深对位置水头,压力水头和测压管水头的理解。3.观测真空度(负压)的生产过程,深入加深对真空度的理解。4.测量油的相对密度。5.通过对诸多流体静力学现象的试验分析,深入提高处理静力学实际问题的能力。二、试验原理1.在重力作用下不可压缩流体静力学基本方程。形式一:z+p/r=const(1-1-1a)形式二:P=po+rh(1-1-1b)式中z-测点在基准面上的位置高度;P-测点的静水压强(用相对压强表达,如下同);Po-水箱中液面的表面压强;r-液体的重度;h-测点的液体深度;2.有密度测量原理。当U型管中水面与油水界面齐平(见图1-1-2),取油水界面为等压面时,有:Po1=rwh1=roH另当U型管中水面与油面齐平(见图1-1-3),取油水界面为等压面时,有:Po2+rwH=roH(1-1-2)即Po2=-rwh2=roH-rwH(1-1-3)由式(1-1-2),式(1-1-3)两式联立可解得:H=h1+h2代入式(1-1-2)可得油的相对密度do为:do=ro/rw=h1/(h1+h2)(1-1-4)根据式(1-1-4),可以用仪器直接测得do。图1-2图1-3三、试验装置本试验的装置如图1-1所示。1.测压管;2.代表吃的测压管;3.连通管;4.通气阀;5.加压打气球;6.真空测压管;7.截止阀;8.U型测压管;9.油柱;10.水柱;11.减压放水阀图1-1流体静力学试验装置图四、试验环节1.了理解一起的构成及其使用方法,包括:(1)各阀门的开关。(2)加压的措施:关闭所有阀门,然后用打气球充气。(3)减压措施:启动筒底减压放水阀们11放水(4)检查仪器与否密封:加压后检查测压管1,2,8的夜面高程与否恒定。若下降,则查明原因并加以处理。2.记录仪器编号及各常数。3.进行试验操作,记录并处理数据。4.量测点静压强。(1)打开通气阀4(此时po=0),记录水箱液面高标▽0和测压管的液面标高▽H(此时▽o=▽H)(2)打开通气阀4及截止阀7,用打气球加压使po>0,测记▽o及▽H。(3)打开减压放水阀11,使po<0(规定其中一次pB<0,即▽H<▽B),测记▽0及▽H。5.测出测压管6插入水杯中水的深度。6.测定油的相对密度do。(1)启动通气阀4,测记▽0.(2)关闭通气阀4,用打气球加压(po>0),|微调放气螺母使U型管中水面与液面齐平,测记▽0及▽H(此过程反复进行3次)。(3)打开通气阀4,待液面稳定后,关闭所有阀门,然后启动减压放水阀11降压(po<0),使U型管中水面与油面相齐平,测记▽0及▽H(此过程反复进行3次)。五、试验汇报处理1.同一静止液体内的测压管水头线是根什么线?测压管水头指z+p/γ,即静水力学试验仪显示的测压管液面至基准面的垂直高度.测压管水头线是指测压管液面的连线.从试验直接观测可知,同一静止液面的测压管水头线是一根水平线.2.当时,试根据记录数据确定水箱内的真空区域。以p0<0时,第二次B点测量数据(表1-1)为例,此时pB/γ=-0.6cm<0,对应容器的真空区域包括如下三部分:(1)过测压管液面(Δh=1.2cm)做一水平面,由等压原理知,相对测压管及水箱内的水体而言,该水平面为等压面,均为大气压强,故该平面以上由密封的水/气所占的空间区域,均为真空区域.(2)同理,过箱顶小水杯的液面作一水平面,真空测压管中,该平面以上的区域也是真空区域.(3)在U形测压管5中,自水面向下深度为12.8cm的一段水柱也是真空区.这段高度与测压管液面低于水箱液面的高度相等,亦与真空测压管液面高于水杯液面高度相等,均为12.8cm.3.若再备一根直尺,试采用此外最简便的措施测定。最简朴的措施,是用直尺分别测量水箱内通大气的状况下,U形测压管油水界面至水面和油水界面至油面的垂直高度hw和ho,由式γwhw=γoho,从而求得do.4.如测压管太细,对测压管液面的读数将有何影响?一般说来,当玻璃测压管内径不小于10mm时,毛细管影响可以忽视不计,此外,当水质不好时,σ减小,毛细高度较纯净水也减小,当采用有机玻璃管作为测压管时,浸润角θ较大,其h较一般玻璃小.假如用同一根测压管测量液体相对压差值,则毛细现象...

1、当您付费下载文档后,您只拥有了使用权限,并不意味着购买了版权,文档只能用于自身使用,不得用于其他商业用途(如 [转卖]进行直接盈利或[编辑后售卖]进行间接盈利)。
2、本站所有内容均由合作方或网友上传,本站不对文档的完整性、权威性及其观点立场正确性做任何保证或承诺!文档内容仅供研究参考,付费前请自行鉴别。
3、如文档内容存在违规,或者侵犯商业秘密、侵犯著作权等,请点击“违规举报”。

碎片内容

2024年工程力学实验”实验报告

您可能关注的文档

确认删除?
VIP
微信客服
  • 扫码咨询
会员Q群
  • 会员专属群点击这里加入QQ群
客服邮箱
回到顶部