电脑桌面
添加小米粒文库到电脑桌面
安装后可以在桌面快捷访问

场地设计练习题1VIP免费

场地设计练习题1_第1页
1/7
场地设计练习题1_第2页
2/7
场地设计练习题1_第3页
3/7
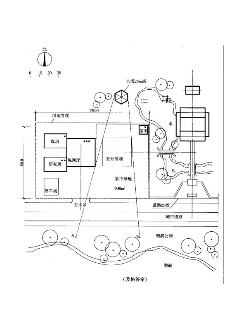
场地布置条件一、设计条件:1.某城市拟在某名人故居西侧修建艺术馆一座,用地北侧有一古塔,南侧为湖滨公园,如下图所示2.规划及设计要求:沿用地界线5m以内不得布置建筑物和展场;沿湖岸A、B两点间观看古塔无遮拦;应满足艺术馆和名人故居两个景点连续参观的要求;结合环境流出不小于900平方米供观众休息的集中绿地。3.艺术馆拟建项目的名称、层数、平面形状及尺寸(可旋转)详见附图二、任务要求画出场地布置图,表明项目名称、场地出入口和集中绿地,不必画道路、广场。答案评析:不及格答案主要有两点十五:1.新建的艺术馆未能与东侧已有的自然环境及名人故居融为一体,以便形成连续的空间组合即参观流线,2.艺术馆自身的建筑组合,也因库房、研究所和停车场居中,而将陈列厅与室外展场割裂,导致功能分区混杂,参观路线不流畅。一、设计条件1.某医院用地现状及拟建筑的单体平面见下图。2.用地中古树应保留,建筑单体平面和朝向不得改动,但连廊的长短和方向可根据需要设置。二、任务要求1.布置拟建的建筑物(如下图),不需画道路、广场和绿地,仅标示停车场的位置。2.在拟建的建筑物旁,标注门诊、急诊、出入院和探视人流,以及供应、污物(含尸体)流线3.标示医院主要人流和车流出入口。优秀方案1.东入口方案。该布局的最大优点是:就诊人流和车流出入在东侧,而供应、污物(含尸体)物流均在西侧,二者绝对隔绝。太平间与营养厨房均居下风向,太平间位置隐蔽,距病房手术、门诊及污物出口均短捷。辅助医疗位于门诊与病房手术之间,服务方便。仅急诊人流宜移至门诊楼东端,以避免与大量门诊人流的交叉。几个方案2.西入口方案。与东入口答案相比,本方案的建筑组合显得不够舒展。太平间位置较暴露,距门诊较远且迂回,难免交叉。如将其与营养厨房换位,虽然就均位于下风向,但太平间将与就诊人流同侧,更不理想,尤其是就诊人流及车流与供应物流同侧,故仅能视为及格答案。

1、当您付费下载文档后,您只拥有了使用权限,并不意味着购买了版权,文档只能用于自身使用,不得用于其他商业用途(如 [转卖]进行直接盈利或[编辑后售卖]进行间接盈利)。
2、本站所有内容均由合作方或网友上传,本站不对文档的完整性、权威性及其观点立场正确性做任何保证或承诺!文档内容仅供研究参考,付费前请自行鉴别。
3、如文档内容存在违规,或者侵犯商业秘密、侵犯著作权等,请点击“违规举报”。

碎片内容

场地设计练习题1

您可能关注的文档

确认删除?
VIP
微信客服
  • 扫码咨询
会员Q群
  • 会员专属群点击这里加入QQ群
客服邮箱
回到顶部