电脑桌面
添加小米粒文库到电脑桌面
安装后可以在桌面快捷访问

快速卷帘门简介VIP免费

快速卷帘门简介_第1页
1/8
快速卷帘门简介_第2页
2/8
快速卷帘门简介_第3页
3/8
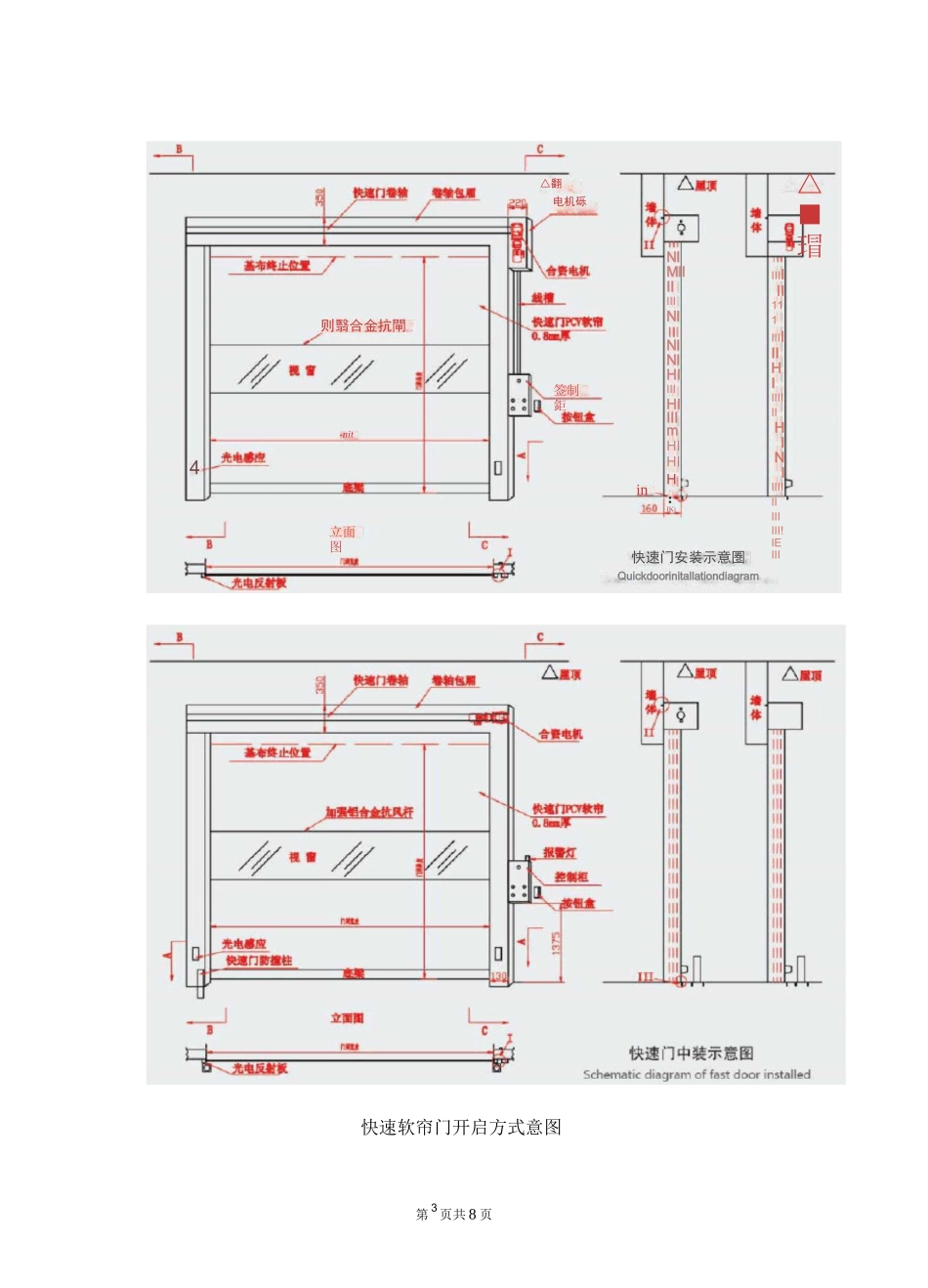
第1页共8页快速软帘门产品说明快速软帘门概述快速卷帘门具有保温、保冷、防虫、防尘、隔音、防火、防异味采光等多项功能,并广泛用于食品、化学、纺织、冷冻电子、印刷、超市冷冻装配、精密机械、物流仓储等多种场所,可提高的满足高性能物流及洁净场所,并且节省能源,提高空调效果,高速自动关闭,提高作用效率等优点。快速软帘门适用于风压或负压<35kg/m2的门洞条件安装。快速软帘门特点•门帘分段式门帘为高密充聚酯纤维(厚度0.8mm),透明视窗为全透明PVC软片(厚度为1.5mm)•门架结构2.0mm镀锌钢板挤压成型,表面经静电喷涂处理•驱动系统驱动专用电机功率:0.75-1.5kw;电压220V/380V•控制系统IP55盒与各种常用型保护装置兼容,可用挖掘控制;整体采用PCL数字编程、实现人员车辆及物品的安全通过停车手动遥杆,可轻松开启或关闭•运行速度上行0.8〜1.5米/秒,下行0.6〜1.0米/秒,另可通过变频器根据实际需要调节所需上、下行速度快速软帘门特点适用范围:室内用门框架:镀锌钢第2页共8页最大尺寸(宽X高):6000mmX6000mm运行速度:开启:最高1.2m/s关闭:0.5m/s颜色:多种颜色可选,黄色,蓝色,橘黄色,灰色,桔红等安全性:门轨上的光电保护无线安全软底边保护功能脱轨及自动修复保护功能可选项:-、八不同样式的透视选择【窗或可视条窗】可选择顶部盖板、边柱盖板、电机盖板快速软帘门基本参数运行速度:开启:1.2m/s关闭:0.5m/s抗风载荷:450N/®防水性能:2级(50N/m2)气密性:1级(24ms/m2hat50Pa)防热损性能:6.02W/(m2k)使用寿命:1,000,000个循环周期快速软帘门安装示意图第3页共8页签制鉅-nit4△翻电机砾IIIIII111IIIIIIHIIIIIIIHINlIIIIIIIIIIII!IEIIINlMlIIIIIINlNlNlHIIIIHIIIImHIHIH:IKj则翳合金抗閘△■瑁立面图in快速门安装示意圏Quickdoorinitallationdiagram快速软帘门开启方式意图第4页共8页手动按钮开启方式地磁/雷达开启方式手动拉绳开启方式第5页共8页快速软帘门配置参数产品名称单位配置说明备注快速门电机台功率视门体大小SEJ0.75kw软帘门体套高强度PVC刀刮涂层基布,门帘厚度0.8MM。体底座和中间部位均内置防风加强杆。抗风强度达到5000N。黄色,蓝色,橘黄色,灰色,桔红,白色等抗风杆套采用2.0mm铝合金抗风杆,表面经氧化处理。门体框架、门槽付喷塑的优质防腐金属制成的门框、门罩与门槽厚度2.0MM。颜色可选五金配件包联接件与紧固螺丝等程序控制套PLC程序控制门体运行科威行程控制套360脉冲旋转编码器控制(能精确控制行程)变频器套控制门体运行速度士林光电套光电保护地磁保护装置套检测移动物体,门体自动开启地磁(双面)(可选))开启方式套手动开关雷达(可选)开启速度0.5T.2m/S可调第6页共8页快速卷帘门报价及付款快速卷帘门的日常保养方法日常保养方法介绍:A.清除快速卷帘门电机及传动链条表面灰尘,并加润滑油;B.检查控制箱内器件,紧固接线端子,清洁箱内及表面灰尘;C.检查手动开关控制盒,清洁按钮上的污物;D.检查上下行程开关,开关滑轨加润滑油;E.检查电动刹车手动开关和手动起闸装置;F.手动控制,检查运行情况,并调整上下行程开关位置,令其开启或关闭处于适当的位置,测试过程严防快速卷帘门冲顶或冲底;J伸缩门附近的烟、温感检查电动伸缩门功能,消防中心监控员在联动台上测试伸缩门功能最新产品性能特点:第7页共8页1、电动装置配置:电机设计针对其运行特点由专业工程师设计,对开启频繁的电机无需风冷,散热快,耐高温。2、无轨运行技术特点:无轨门的走轮采用高级耐磨橡胶,30万次运行检测无明显磨损,无轨门运行有中间导向条导向并有多个双尼龙轮对抱导向条,使门在运行使用时不受强风吹袭破坏(最新专利技术设计)。3、控制系统:控制系统采用国际先进的弱电控制方式,强电转换为弱电磁性感应控制,开关门灵敏度高,无漏电伤人现象发生。4、开启缓冲装置:起动装置采用电子控制电流与机械缓冲装置相结合,消除了快速卷帘门在开启时带来的瞬间冲击力,使其开启平稳。快速卷帘门工程案例第8页共8页

1、当您付费下载文档后,您只拥有了使用权限,并不意味着购买了版权,文档只能用于自身使用,不得用于其他商业用途(如 [转卖]进行直接盈利或[编辑后售卖]进行间接盈利)。
2、本站所有内容均由合作方或网友上传,本站不对文档的完整性、权威性及其观点立场正确性做任何保证或承诺!文档内容仅供研究参考,付费前请自行鉴别。
3、如文档内容存在违规,或者侵犯商业秘密、侵犯著作权等,请点击“违规举报”。

碎片内容

快速卷帘门简介

wxg+ 关注
实名认证
内容提供者

该用户很懒,什么也没介绍

确认删除?
VIP
微信客服
  • 扫码咨询
会员Q群
  • 会员专属群点击这里加入QQ群
客服邮箱
回到顶部