电脑桌面
添加小米粒文库到电脑桌面
安装后可以在桌面快捷访问

外墙装修吊篮施工组织设计方案VIP免费

外墙装修吊篮施工组织设计方案_第1页
1/8
外墙装修吊篮施工组织设计方案_第2页
2/8
外墙装修吊篮施工组织设计方案_第3页
3/8
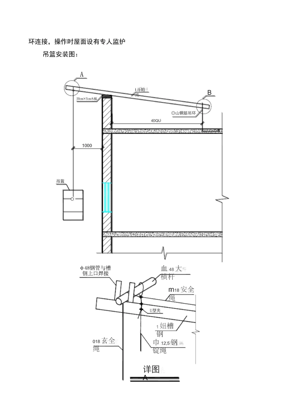
外墙装饰吊篮施工方案一、工程概况:本工程为某小区住宅楼工程,建筑面积为8632m2,长107米宽11.5米高18.45米。外墙外保温、涂料装修均采用吊篮进行施工。二、吊篮施工方案的选择吊篮脚手架由租赁站提供,吊篮均采用组合式定型吊篮,单组吊篮长度为3米及2米两种,宽度0.8米,两侧分别配备两组护墙轮,起吊设备为天津产津久牌手扳葫芦,并配备防坠装置(保安器)。吊蓝脚手架安装完毕后,由项目自检合格后,报安全检查科验收合格后方可使用。屋面四周均有女儿墙,故挑杆下墙体垫长800mm~1000mm,宽200™,厚50mm木板。三、吊篮脚手架的搭设(必须由专业架子工搭设)1、屋面挑杆的做法,挑杆为140血x6血槽钢,距槽钢前端20cm处分别用2根长30cm的钢管(^48壁厚3.5mm)焊做20cm宽槽口,距槽钢后端20cm处,焊1根长30cm的钢管(^48壁厚3.5mm)与大横杆连接。挑杆伸出女儿墙1米,挑杆设置为外高里低,尾部用一根横杆穿入预埋环内,槽钢尾部将其尾部背住(也就是背杆),然后用钢管将每个吊架上的挑杆连成一个整体,挑杆端头均用木板铺垫。2、屋面吊环采用^16钢筋制作,其基本形状为倒U型,吊环出屋面板长度为650mm~700mm,上口宽度为150mm,吊环锚入现浇砼屋面板内50cm。3、连接:用钢丝绳穿入手扳葫芦,挑梁自钢丝绳多绕不少于3圈,并用3个绳卡扣牢,绳卡方向正确,手扳葫芦挂钩挂在吊环(吊篮)上。4、调整要求挑梁伸出长度与吊篮上吊环距离相等,钢丝绳竖直向下,手扳葫芦吊钩位于吊篮中间位置,以确保吊篮升降后平稳不向内和墙外倾斜。外墙装饰用的5、钢丝绳卡规定要求布置卡牢,为防止断绳,每个手扳葫芦采用一根^12.5的钢丝绳做保险安全绳,安全绳一头与吊篮的吊环连接,另一头与屋面上的预埋环连接,操作时屋面设有专人监护吊篮安装图:BOm18安全绳详图A◎山钢筋吊环血48大横杆1妞槽钢巾12,5钢锭绳1000018玄全绳I斗帕朮40QUoo4>12.5钢丝绳4>18安全4>便钢管长与槽钢上】】双面焊接现浇板\*16钢筋,锚入板内1血槽详图B6、吊架在使用前必须通过项目经理、专职安全员及专职施工人员的检查并履行签字手续,均合格后方可投入使用。吊篮在正常使用过程中,专职安全员与专职质检员必须做到经常性的跟踪检查,予以及时发现和处理不安全隐患和不安全行为,要把安全隐患时时有效地控制住,确保操作人员的作业安全。7、吊架在使用过程中用HSS-3.0型手扳葫芦吊起施工(钢丝绳直径不小于12.5mm),其主要技术参数如下:额定荷载:300Kg额定荷载时手扳力:441N(1Kg=1.0N)机体重:12Kg钢丝绳规格:®12.5mm钢丝绳长度:25m(必须满足25m)8、吊架在施工中上、下运行是靠手扳葫芦的操作来进行的,葫芦上的钢丝绳一端固定在吊架架体上的钢筋吊环上,另一端固定在屋面挑杆的端部,钢丝绳端头安全弯作法按照吊装工程安装操作的具体方法和要求进行作业,端头安全弯必须用钢制钢丝绳“U”型卡子夹头固定,且每处不得少于3个,其规格应与钢丝绳配套。9、手扳葫芦的使用数量:吊架长度在3m以内者,均设两套手扳葫芦。10、手扳葫芦及钢丝绳等配套用具在使用前由专职安全员严格检查,检查合格后方可使用,在使用过程中,现场专职安全员必须及时跟踪检查,严格控制不安全现象和不安全因素,确保操作人员的施工安全。四、吊篮、脚手架结构计算吊篮脚手架结构设计按《建筑结构设计统一标准》概率极限状态设计法,计算依据《建筑结构荷载规范》、《钢结构设计规范》、《高处作业吊篮安全规则》和参考《建筑施工安全技术手册》、《建筑施工脚手架实用手册》。本例采用经鉴定合格的建筑安全监督机械推荐的吊篮脚手架。吊篮外形尺寸为3.0x0.8x1.2m,施工高度50m以下,不做吊篮设计计算,只验算钢丝绳安全系数和挑梁结构强度和刚度。(一)槽钢验算:根据GB5009-2001基本计算模式:Y°SSRS—荷载效应组合设计值;Y0—结构重要性系数采用:0.9;荷载分项系数:恒载取1.2,施工荷载取1.4;荷载效应组合系数,仅考虑施工荷载1.0,不考虑风载时,实用设计表达式:Sd=0.9(1.2SGk+1.4SQK)

1、当您付费下载文档后,您只拥有了使用权限,并不意味着购买了版权,文档只能用于自身使用,不得用于其他商业用途(如 [转卖]进行直接盈利或[编辑后售卖]进行间接盈利)。
2、本站所有内容均由合作方或网友上传,本站不对文档的完整性、权威性及其观点立场正确性做任何保证或承诺!文档内容仅供研究参考,付费前请自行鉴别。
3、如文档内容存在违规,或者侵犯商业秘密、侵犯著作权等,请点击“违规举报”。

碎片内容

外墙装修吊篮施工组织设计方案

您可能关注的文档

确认删除?
微信客服
  • 扫码咨询
会员Q群
  • 会员专属群点击这里加入QQ群