电脑桌面
添加小米粒文库到电脑桌面
安装后可以在桌面快捷访问

临时用房施工方案VIP免费

临时用房施工方案_第1页
1/5
临时用房施工方案_第2页
2/5
临时用房施工方案_第3页
3/5
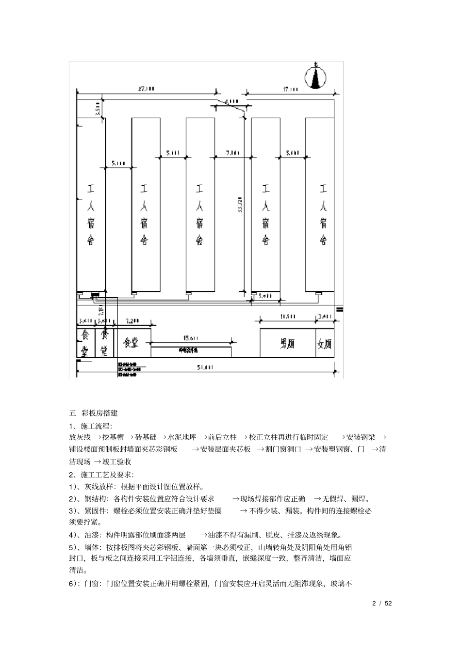
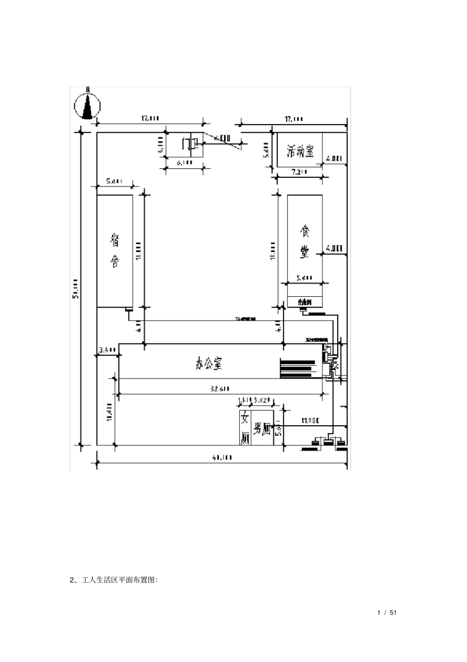
目录一、工程概况1二、编制依据1三、现场总平面布置原则1四、办公生活设施布置2五、彩板房搭建4六、质量管理措施及要求5七、验收标准5八、安全技术措施6一工程概况本工程为盛融万恒、府城铭邸住宅工程,总建筑面积为122664.16平方米,地上5栋32层住宅,一栋物业用房,一栋社区用房,地下一层为地下车库面积约2万平方米。二编制依据1、《辽宁省建筑施工现场管理标准》2、《建筑施工现场标准管理图集》三现场总平面布置原则有效利用场地是本工程的重点和关键。在现场平面布置时我们将遵循以下几个原则:1、临时设施布置除满足有关文明施工现场的要求,满足业主要求,同时避免频繁搬迁外,还应充分考虑现场场地分布的实际情况,对场地进行合理、高效的运用。2、场地配备的二级配电箱可以满足相应的功率要求。3、消防设施的布置满足防火要求。4、具体施工平面布置详见平面布置图。四办公生活设施布置1、项目部管理人员办公区及生活区平面布置图:1/512、工人生活区平面布置图:2/52五彩板房搭建1、施工流程:放灰线→挖基槽→砖基础→水泥地坪→前后立柱→校正立柱再进行临时固定→安装钢梁→铺设楼面预制板封墙面夹芯彩钢板→安装层面夹芯板→割门窗洞口→安装塑钢窗、门→清洁现场→竣工验收2、施工工艺及要求:1)、灰线放样:根据平面设计图位置放样。2)、钢结构:各构件安装位置应符合设计要求→现场焊接部件应正确→无假焊、漏焊。3)、紧固件:螺栓必须位置安装正确并垫好垫圈→不得少装、漏装。构件间的连接螺栓必须要拧紧。4)、油漆:构件明露部位刷面漆两层→油漆不得有漏刷、脱皮、挂漆及返绣现象。5)、墙体:按排板图将夹芯彩钢板、墙面第一块必须校正,山墙转角处及阴阳角处用角铝封口,板与板之间连接采用工字铝连接,各墙须垂直,嵌缝深度一致,整齐清洁,墙面应清洁。6):门窗:门窗位置安装正确并用螺栓紧固,门窗安装应开启灵活而无阻滞现象,玻璃不3/53应有麻面和裂缝,玻璃洁净,附件安装牢固。六质量管理措施及要求1、全体操作人员应严格按照图纸及施工组织设计要求施工。2、施工现场要有施工员专职监督施工质量,安全员监督安全。3、施工中应接受业主及监理的监督检查。七验收标准1、临时性建筑物构件的检查与验收1)、彩钢夹芯板的检查、验收应符合下列规定,并且钢板及夹芯板应有产品质量合格证书。外观质量应符合下表的规定:序号项目质量要求1板面板面平整,色泽均匀,无明显凹凸、翘曲、变形、伤痕2表面表面清洁,板面无胶痕与油垢3切口切口平直,板面向内弯包4芯板切面整齐,无大块剥落,接触处无明显间隙项目长度(mm)宽度厚度对角线差(mm)<3000>3000<6000>6000允许偏差±3±5±2±2<4>62)、彩钢、铝合金、膨胀螺栓、铆钉等连接材料均应有产品质量合格证明书,表面不得有锈迹、污斑、麻点、划痕。3)、轻钢结构的原材料应有质量保证书,轻钢结构件应有出厂合格证明。4)、钢管扣件质量应符合《建筑施工扣件式钢管脚手架安全技术规范》的规定。2、临时性建筑物的检查与验收:1)、临时性建筑物在搭设前应对基础、轴线等进行验收。2)、螺丝安装连接质量进行隐蔽工程验收。3)、临时性建筑物搭设过程中,应对墙板垂直、平整度及节点连接焊缝、螺栓紧固进行质量检查。4)、必须进行临时性建筑物每根立柱与桁梁(或立柱与屋架)、转角处的焊接质量和每1榀焊缝质量的检查并做好记录。5)、临时性建筑物搭设完成后,应先由搭设单位自行检查,经总包单位(使用单位)验收,确认符合使用条件,方可投入使用。八安全技术措施五级以上大风、大雾和雨雪等恶劣天气,不得进行临时性建筑物的安装作业。安装人员进入施工区必须戴好安全帽,屋架安装等高空作业时必须系好安全带。特种作业人员(如焊工)必须持证上岗,同时作业人员要正确佩戴劳防用品。活动房安装时严禁在同一区域上下同时垂直施工。活动房搭设完成后,及时搭设防护棚,防护棚上面一层铺设双层竹笆。生活区及施工区的临时用电线路必须由专业人员敷设,并有专人负责监管。4/54

1、当您付费下载文档后,您只拥有了使用权限,并不意味着购买了版权,文档只能用于自身使用,不得用于其他商业用途(如 [转卖]进行直接盈利或[编辑后售卖]进行间接盈利)。
2、本站所有内容均由合作方或网友上传,本站不对文档的完整性、权威性及其观点立场正确性做任何保证或承诺!文档内容仅供研究参考,付费前请自行鉴别。
3、如文档内容存在违规,或者侵犯商业秘密、侵犯著作权等,请点击“违规举报”。

碎片内容

临时用房施工方案

确认删除?
VIP
微信客服
  • 扫码咨询
会员Q群
  • 会员专属群点击这里加入QQ群
客服邮箱
回到顶部