电脑桌面
添加小米粒文库到电脑桌面
安装后可以在桌面快捷访问

施工电梯防护门及临时防护棚施工方案VIP专享VIP免费

施工电梯防护门及临时防护棚施工方案_第1页
1/7
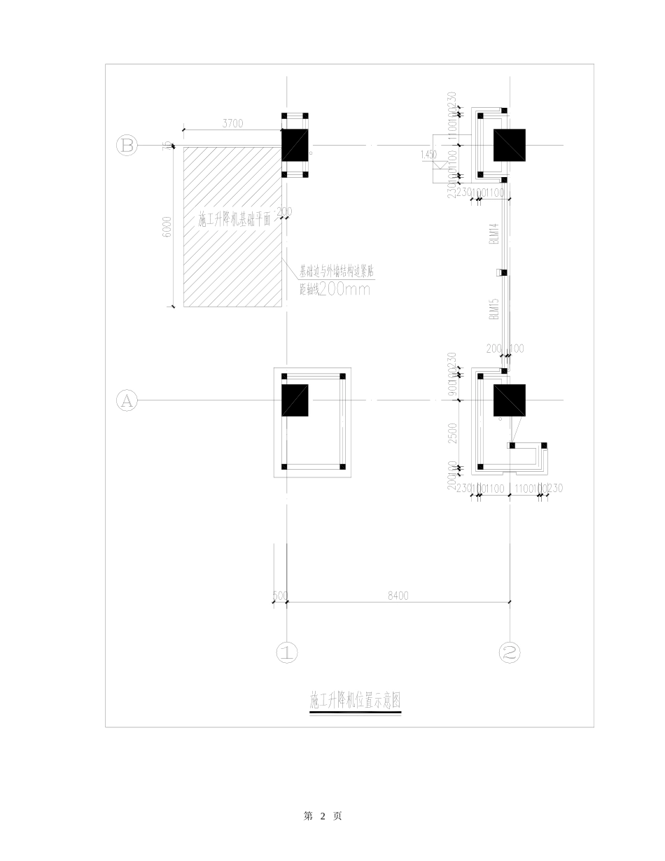
施工电梯防护门及临时防护棚施工方案_第2页
2/7
施工电梯防护门及临时防护棚施工方案_第3页
3/7
河北中国大酒店改造工程施工升降机防护门及临时防护棚施工方案目录一、编制依据....................................................................................................................1二、工程概况....................................................................................................................1三、搭设要求....................................................................................................................1四、材料要求....................................................................................................................4五、施工注意事项.............................................................................................................5六、防护门的使用.............................................................................................................6七、安全注意事项.............................................................................................................6第1页河北中国大酒店改造工程施工升降机防护门及临时防护棚施工方案施工升降机防护门及临时防护棚搭设施工方案一、编制依据《建筑施工扣件式钢管脚手架安全技术规范》(JGJ130-2011);《建筑施工安全检查标准》(JGJ59-2011);《工程建设标准强制性条文》(安全部分)《建设施工高处作业安全技术规范》(JGJ80-91)《施工升降机安装施工方案》国家、地方现行使用的其他有关规范或规程;二、工程概况1、工程名称:河北中国大酒店改造工程2、建设地点:河北省石家庄市自强路127号。3、结构形式:框架-核心筒结构。4、建设规模:本工程建筑面积为56991.33㎡,基底面积为4499.32㎡。地上16层,地下2层,建筑高度为72.15m。三、搭设要求施工升降机安装在本工程A-B轴/1轴处,基础位置见下页图所示。1、防护门钢管架搭设根据物料升降机与结构之间的空隙约200mm,施工升降机防护门安装采用单排钢管架进行安装,在楼板内设置一排钢管架作为与单排钢管架拉结,拉结杆设置为900mm高可同时作为护栏使用。立杆间距根据门洞口设置,外侧钢管共计4根立杆,间距分别为1500mm、900mm、1500mm。楼板内立杆设置在梁内侧,故立杆横距为1000mm。立杆步距在门洞口处躲开门洞口位置立杆步距为2100mm,除门洞口以外的立杆步距按照1500mm设置。第1页第2页施工升降机防护门搭设效果图第3页2、施工升降机下方防护棚搭设施工升降机防护棚采用双钢管架进行搭设,具体搭设方案详见下图所示。防护棚南侧距升降机基础南侧为3000mm,距结构边约7000mm。立杆步距为1200mm,立杆横距为600mm。防护门中间设置单排立杆。顶面防护棚设置双层防护棚,间距为1200mm。四、材料要求1、钢管架、拉结杆均应采用φ48×3.5mm的钢管。并应符合现行国家标准《直缝电焊钢管》(GB/T13793)或《低压流体输送用焊接钢管》(GB/T3092)中规定的3号普通钢管,其质量应符合国家标准《碳结构钢》(GB/T700)中Q235—A级钢的规定。2、扣件应采用可锻铸铁制作的扣件,其材质应符合国家标准《钢管脚手架扣件》(GB15831)的规定。3、防护棚木脚手板应符合JGJ130中的材质要求。第4页五、施工注意事项1、搭设要求(1)相邻立杆的对接扣件不得在同一高度内,其在高度方向上错开的距离不得小于500mm,对接扣件开口应朝内。当平台架搭至连墙件的构造点时,应及时作连墙拉结。除立杆外,其余杆件应采用整根钢管搭设,严禁对接使用。(2)纵向水平杆应设置在立杆内侧,横向水平杆内端头距离墙面为50mm。(3)纵向扫地杆应固定在距底座上方200mm的立杆上,横向扫地杆应固定在紧靠纵向地杆下方的立杆上。(4)连墙杆应设置于平台架沿建筑物侧立杆竖直距离主节点不大于200mm处,连墙杆应水平设置,或稍向下斜,要求倾斜角度不得大于10度。(5)卸荷拉杆应与平台架外侧立杆连接。卸荷拉杆上端应与参埋杆连接牢固。卸荷拉杆与立杆连接处应靠近主节点,平台架卸荷层应加设水平斜杆,形成几何不变体系。(6)之字型横向斜撑的旋...

1、当您付费下载文档后,您只拥有了使用权限,并不意味着购买了版权,文档只能用于自身使用,不得用于其他商业用途(如 [转卖]进行直接盈利或[编辑后售卖]进行间接盈利)。
2、本站所有内容均由合作方或网友上传,本站不对文档的完整性、权威性及其观点立场正确性做任何保证或承诺!文档内容仅供研究参考,付费前请自行鉴别。
3、如文档内容存在违规,或者侵犯商业秘密、侵犯著作权等,请点击“违规举报”。

碎片内容

施工电梯防护门及临时防护棚施工方案

确认删除?
VIP
微信客服
  • 扫码咨询
会员Q群
  • 会员专属群点击这里加入QQ群
客服邮箱
回到顶部