电脑桌面
添加小米粒文库到电脑桌面
安装后可以在桌面快捷访问

汽车库建筑设计规范 坡道式汽车库 一般规定VIP免费

汽车库建筑设计规范 坡道式汽车库 一般规定_第1页
1/10
汽车库建筑设计规范 坡道式汽车库 一般规定_第2页
2/10
汽车库建筑设计规范 坡道式汽车库 一般规定_第3页
3/10
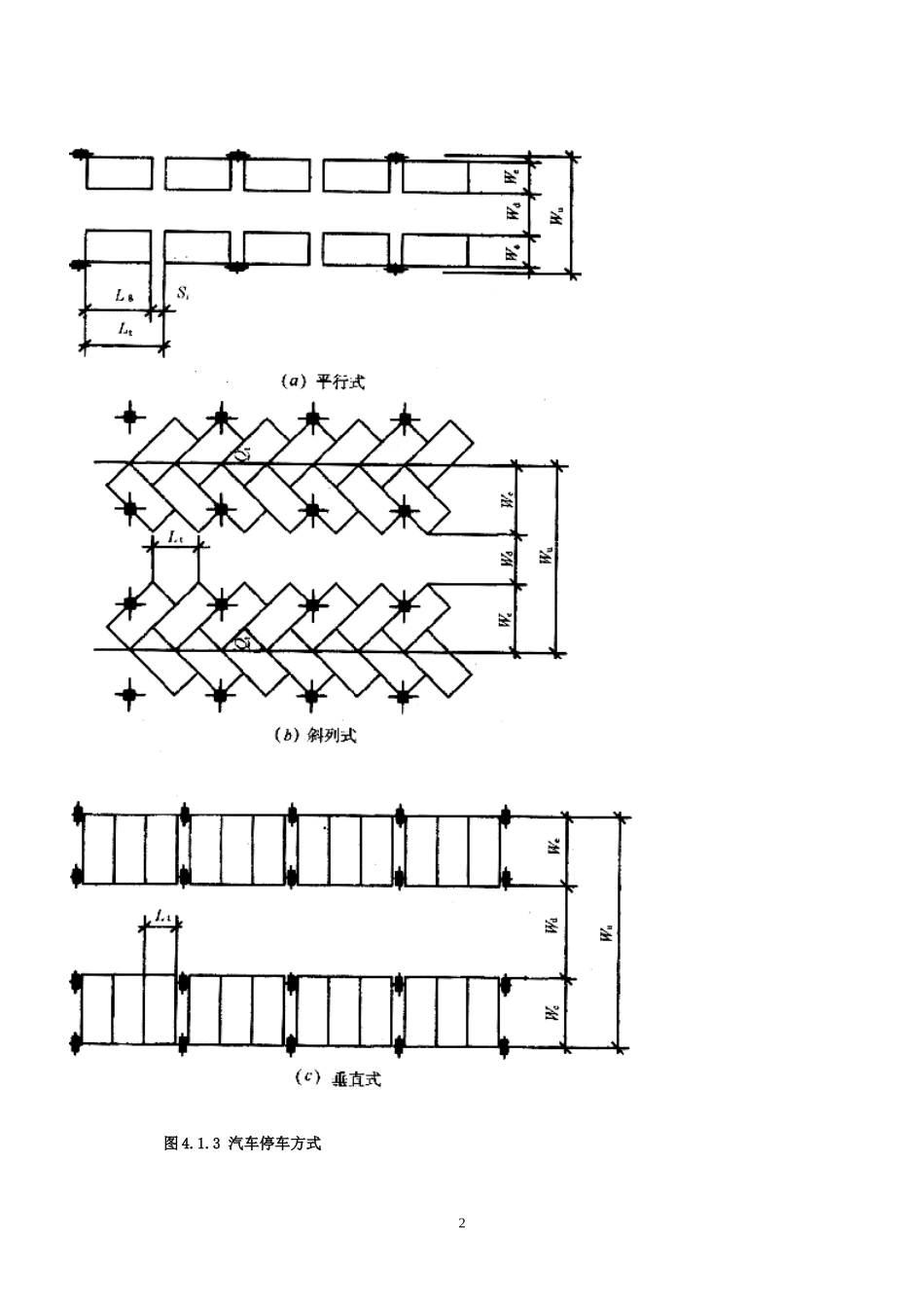
汽车库建筑设计规范坡道式汽车库一般规定4.1.1公用汽车库中汽车设计车型的外廓尺寸可按表4.1.1的规定采用。汽车设计车型外廓尺寸表4.1.1注:专用汽车库可按所停放的汽车外廓尺寸进行设计。括号内尺寸用于中型货车。4.1.2汽车库内停车方式应排列紧凑、通道短捷、出入迅速、保证安全和与柱网相协调,并应满足一次进出停车位要求。4.1.3汽车库内停车方式可采用平行式、斜列式(有倾角30°、45°、60°)和垂直式(图4.1.3),或混合采用此三种停车方式。4.1.4汽车库内汽车与汽车、墙、柱、护栏之间的最小净距应符合表4.1.4的规定。1图4.1.3汽车停车方式2注:图中Wu——停车带宽度Lg——汽车长度We——垂直于通车道的停车位尺寸Si——汽车间净距Wd——通车道宽度Qt——汽车倾斜角度Lt——平行于通车道的停车位尺寸汽车与汽车、墙、柱、护栏之间最小净距表4.1.4注:纵向指汽车长度方向、横向指汽车宽度方向,净距是指最近距离,当墙、柱外有突出物时,应从其凸出部分外缘算起。4.1.5汽车库内的通车道宽度可按下列公式计算,但应等于或大于3.0m。4.1.5.1前进停车、后退开出停车方式(图4.1.5-1)。式中Wd——通车道宽度S——出入口处与邻车的安全距离可取300mmZ——行驶车与车或墙的安全距离可取500~1000mmRe——汽车回转中心至汽车后外角的水平距离C——车与车的间距r——汽车环行内半径a——汽车长度3b——汽车宽度e——汽车后悬尺寸R——汽车环行外半径a——汽车停车角图4.1.5-1前进停车平面注:本公式适用于停车倾角60°~90°,45°及45°以下可用作图法4.1.5.2后退停车、前进开出停车方式(图4.1.5-2)4图4.1.5-2后退停车平面4.1.5.3各车型的建筑设计中最小停车带、停车位、通车道宽度宜按表4.1.5采用。各车型建筑设计最小停车带、停车位、通车道宽度表4.1.554.1.6汽车库内坡道可采用直线型、曲线型。可以采用单车道或双车道,其最小净宽应符合表4.1.6的规定。严禁将宽的单车道兼作双车道。坡道最小宽度表4.1.6坡道型式计算宽度(m)最小宽度(m)微型、小型车中型、大型、绞接车直线单行单车宽+0.83.03.5直线双行双车宽+2.05.57.0曲线单行单车宽+1.03.85.0曲线双行双车宽+2.27.010.0注:此宽度不包括道牙及其他分隔带宽度。4.1.7汽车库内通车道的最大纵向坡度应符合表4.1.7的规定。汽车库内通车道的最大坡度表4.1.76注:曲线坡道坡度以车道中心线计。4.1.8汽车库内当通车道纵向坡度大于10%时,坡道上、下端均应设缓坡。其直线缓坡段的水平长度不应小于3.6m,缓坡坡度应为坡道坡度的1/2。曲线缓坡段的水平长度不应小于2.4m,曲线的半径不应小于20m,缓坡段的中点为坡道原起点或止点(图4.1.8)。图4.1.8缓坡4.1.9汽车的最小转弯半径可采用表4.1.9的规定。汽车库内汽车的最小转弯半径表4.1.9车型最小转弯半径(m)微型车4.50小型车6.007续表车型最小转弯半径(m)轻型车6.50~8.00中型车8.00~10.00大型车10.50~12.00铰接车10.50~12.504.1.10汽车库内汽车环形道的最小内半径和外半径按下列公式进行计算(见图4.1.10)。图4.1.10汽车环道平面8r1——汽车最小转弯半径;R0——环道外半径;R——汽车环行外半径;r2——环道内半径;r——汽车环行内半径;X——汽车环行时最外点至环道外边距离,宜等于或大于250mm;Y——汽车环行时最内点至环道内边距离,宜等于或大于250mm。4.1.11汽车环形坡道除纵向坡度应符合表4.1.7规定外,还应于坡道横向设置超高,超高可按下列公式计算。(4.1.11)式中V——设计车速,Km/h;R——环道平曲线半径(取到坡道中心线半径);μ——横向力系数,宜为0.1~0.15;ic——超高即横向坡度,宜为2%~6%。4.1.12当坡道横向内、外两侧如无墙时,应设护栏和道牙,单行道的道牙宽度不应小于0.3m。双行道中宜设宽度不应小于0.6m的道牙,道牙的高度不应小于0.15m。4.1.13汽车库室内最小净高应符合表4.1.13的规定。汽车库室内最小净高表4.1.13车型最小净高(m)9微型车、小型车2.20轻型车2.80中、大型、绞接客车3.40中、大型、绞接货车4.20注:净高指楼地面表面至顶棚或其他构件底面的距离,未计入设备及管道所需空间...

1、当您付费下载文档后,您只拥有了使用权限,并不意味着购买了版权,文档只能用于自身使用,不得用于其他商业用途(如 [转卖]进行直接盈利或[编辑后售卖]进行间接盈利)。
2、本站所有内容均由合作方或网友上传,本站不对文档的完整性、权威性及其观点立场正确性做任何保证或承诺!文档内容仅供研究参考,付费前请自行鉴别。
3、如文档内容存在违规,或者侵犯商业秘密、侵犯著作权等,请点击“违规举报”。

碎片内容

汽车库建筑设计规范 坡道式汽车库 一般规定

书海行舟+ 关注
实名认证
内容提供者

热爱教学事业,对互联网知识分享很感兴趣

确认删除?
VIP
微信客服
  • 扫码咨询
会员Q群
  • 会员专属群点击这里加入QQ群
客服邮箱
回到顶部