电脑桌面
添加小米粒文库到电脑桌面
安装后可以在桌面快捷访问

环保自行监测方案VIP免费

环保自行监测方案_第1页
1/6
环保自行监测方案_第2页
2/6
环保自行监测方案_第3页
3/6
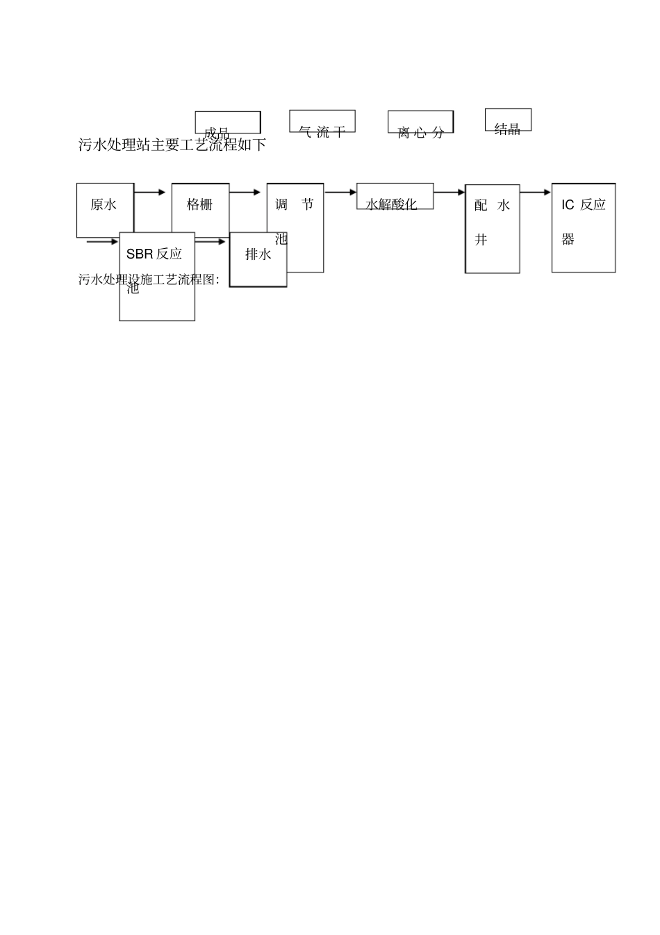
山东省重点监控企业自行监测方案企业名称:监测单位:备案日期:××××公司自行监测方案根据《山东省重点监控企业自行监测及信息公开办法(试行)》的规定,制定本企业自行监测方案。一、基本情况厂区平面布置图见下图(二)企业污染治理情况公司污水处理项目以集中处理为目标,包括调剂系统、厌氧系统、好氧系统。日处理能力360吨,采用厌氧(UASB)+好氧对污水进行综合处理,安装污水流量连续计量装置、自动监测装置、及相关辅助工程,购置国内先进的污水处理设备,形成年处理污水10万立方米的污水集中深度处理工程,建筑面积2000平方米。现阶段进水指标为:原水COD:1800mg/l,SS约200mg/l,氨氮:50mg/l;废水经处理后出水指标达到《CJ343-2010污水排入城镇下水道水质标准》和××市污水处理厂《污水处理合同》的标准:COD≤500mg/L,氨氮≤25mg/L,PH:6-9,并且处理后的水经城市管网排入××市污水处理厂进一步处理,确保了污水经处理后达标排放,该项目对海河流域的污染综合治理起到积极的作用。麦芽糖醇生产工艺流程如下:糖PH调节液调浆配玉米淀氢一次离蒸发浓一次脱除渣过蒸发浓色谱分二次蒸二次离二次脱污水处理站主要工艺流程如下污水处理设施工艺流程图:成品气流干离心分结晶IC反应器配水井水解酸化调节池格栅原水排水SBR反应池格栅沉淀池初沉池调节池厌氧污泥池活性污泥池水封器沼气初沉池污泥浓缩池脱水机房污泥污泥调温污泥污泥外卖泥饼外运图例:污水流向污泥流向沼气流向碱液浮渣排放曝气泵泵回流上二沉池离交酸碱设备冲洗生活污水地面冲洗水化粪池城市污水管网阻火器沼气炉CO2低浓度废隔油池混合排放口二、自行监测内容自行监测内容表三、监测点位示意图企业可根据具体情况自行确定比例,标明工厂方位,四邻,标明办公区域、主要生产车间(场所)及主要设备的位置,标明各种污染治理设施的位置,标明污水排放口及其监测点位的编号及其名称。监测项目监测点位监测频次执行排放标准标准限值监测方法分析仪器备注监测指标pH值污水总排污口1次/月《污水排入城镇下水道水质标准》6.5-9.5便携式pH计法《水和废水监pH计化学需氧量污水总排污口1次/天协议标准300mg/l自动监测氨氮污水总1次/月协议标准25mg/l自动监测SS污水总排污口1次/月《污水排入城镇下水道水质标准》(CJ343-2010)400mg/l重量法(GB/T11901-1989)烘箱、电子天平BOD污水总排污口1次/月《污水排入城镇下水道水质标准》350mg/l微生物传感器快速测定法BOD快速测定仪动植物油污水总1次《污水排入城镇下水道水质20mg/l红外分光光度法红外分光臭气厂界1次《恶臭污染物排放标准》20三点比较式臭袋法臭袋噪声厂界1次/季《工业企业厂界环境噪声排放标准》(GB12348-20065(昼)/55(夜《工业企业厂界环境噪声排放标准》积分平均声级计污染物排放方式排放方式为连续排放,排放去向为禹城市污水处理厂监测质量控制措施监测结果公开时限针对监测项目,依据《国家重点监控企业自行监测及信息公开办法》的要求,填报公开时限。四、附件1、企业排污许可证复印件;2、环境影响评价报告书(表)及其批复中有关环境监测内容复印件。

1、当您付费下载文档后,您只拥有了使用权限,并不意味着购买了版权,文档只能用于自身使用,不得用于其他商业用途(如 [转卖]进行直接盈利或[编辑后售卖]进行间接盈利)。
2、本站所有内容均由合作方或网友上传,本站不对文档的完整性、权威性及其观点立场正确性做任何保证或承诺!文档内容仅供研究参考,付费前请自行鉴别。
3、如文档内容存在违规,或者侵犯商业秘密、侵犯著作权等,请点击“违规举报”。

碎片内容

环保自行监测方案

您可能关注的文档

确认删除?
VIP
微信客服
  • 扫码咨询
会员Q群
  • 会员专属群点击这里加入QQ群
客服邮箱
回到顶部