电脑桌面
添加小米粒文库到电脑桌面
安装后可以在桌面快捷访问

安全通道的设计与施工标准VIP免费

安全通道的设计与施工标准_第1页
1/25
安全通道的设计与施工标准_第2页
2/25
安全通道的设计与施工标准_第3页
3/25
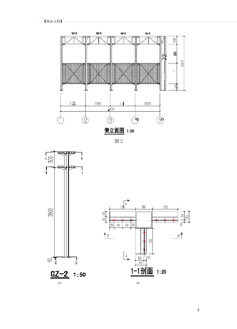
1附件:成中投资集团股份有限公司安全通道的设计与施工标准一、适用范围本标准适用于公司在建工程项目施工现场安全通道的定型化制作、施工搭设及相关管理要求。二、规范性引用文件下列文件中的条款通过本制度引用而成为本制度的条款,凡是未注明日期的引用文件,其最新版本适用于本制度。GB50009-2001建筑结构荷载规范GB50017-2003钢结构设计规范GB50205-2001钢结构工程施工及验收规范JGJ82-91收规程钢结构高强度螺栓连接的设计、施工及验JBJ81-2002建筑钢结构焊接技术规程JGJ80-91三、标准内容建筑施工高处作业安全技术规范(一)施工现场安全通道采取定型化搭设,其主要为钢结构双层防护,以白色为主色调,蓝色为辅,图文信息符合集团公司VI管理要求。(二)施工顺序地面硬化f测量放线f安装调平主骨架f安装调平次骨架f铺设防护木板f安装图文设施f安装完成【精品文档】2(三)安全通道搭设要求采用lOOmmXIOOmm,100mmX50mm的空心钢作为主骨架,50mmX50mm、30mmX30mm的空心钢作为次骨架搭设,长度为6000m,宽度为3000mm,总髙度为3800mm,顶部设置木质双层防护,两层之间距离为500mm,防护层用4000mm(6000)X250mmX40mm的木板密实牢固搭设。立柱底端焊接有为200mmX200mmX巾10的正方形钢板,与地面用螺栓牢固连接;立柱、桁架等各连接点采用螺栓连接;正前方檐口设置有“安全通道”文字和相关安全标语、警示标志;具体样式、尺寸如下图:图1【精品文档】3金二cmgh54T~IJo匚or■■'■.:■■•-'SET224图3图【精品文档】图74【精品文档】5【精品文档】图76【精品文档】7【精品文档】图78【精品文档】9【精品文档】图1310【精品文档】图1311【精品文档】图1312【精品文档】13【精品文档】14【精品文档】15【精品文档】16【精品文档】17【精品文档】18【精品文档】19【精品文档】图2120【精品文档】21【精品文档】图2122【精品文档】23【精品文档】图2124【精品文档】25

1、当您付费下载文档后,您只拥有了使用权限,并不意味着购买了版权,文档只能用于自身使用,不得用于其他商业用途(如 [转卖]进行直接盈利或[编辑后售卖]进行间接盈利)。
2、本站所有内容均由合作方或网友上传,本站不对文档的完整性、权威性及其观点立场正确性做任何保证或承诺!文档内容仅供研究参考,付费前请自行鉴别。
3、如文档内容存在违规,或者侵犯商业秘密、侵犯著作权等,请点击“违规举报”。

碎片内容

安全通道的设计与施工标准

wxg+ 关注
实名认证
内容提供者

该用户很懒,什么也没介绍

确认删除?
VIP
微信客服
  • 扫码咨询
会员Q群
  • 会员专属群点击这里加入QQ群
客服邮箱
回到顶部