电脑桌面
添加小米粒文库到电脑桌面
安装后可以在桌面快捷访问

卸料平台搭设规范方案VIP免费

卸料平台搭设规范方案_第1页
1/8
卸料平台搭设规范方案_第2页
2/8
卸料平台搭设规范方案_第3页
3/8
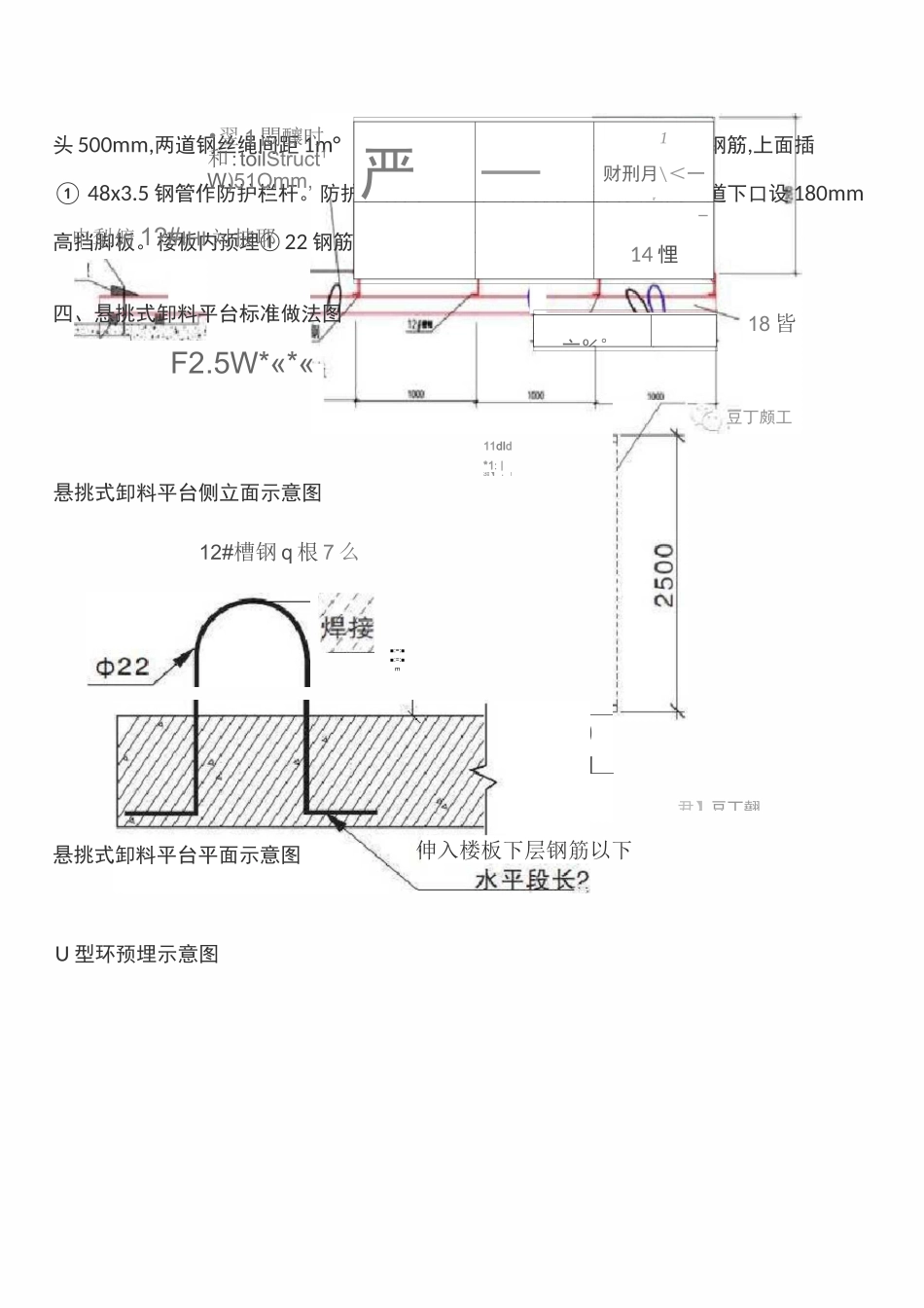
一、卸料平台概况悬挑式卸料平台,以槽钢作主次梁,焊接成平面受力框架,—端搁置在楼板上,—端用钢丝绳吊挂。悬挑式卸料平台分别在两个大区域阶段使用,裙房施工阶段和主楼施工阶段,裙楼与主楼施工阶段均从三层开始每层均设置悬挑式卸料平台。二、卸料平台设计思路为方便主体结构施工时周转材料的转运,主楼2层以上(含2层)需在结构周边拟定部位布置工具式卸料平台,卸料平台尺寸为2.5米宽,5米长,采用18#、14#、12#槽钢焊接而成。本工程卸料平台应采用型钢焊接成主框架,主挑梁型号采用18号槽钢,两侧应分别设置前后两道斜拉钢丝绳。锚固端预埋Q22U型环,每层预埋的钢筋锚环既是主挑梁锚固环,也作为斜拉钢丝绳吊。卸料平台底部应用花纹钢板焊接固定与外架之间的间隙封闭连接。卸料平台两侧面设置固定的防护栏杆,其立杆与主挑梁焊接固定。防护栏杆内侧采用钢板网封闭,并挂设限载标志牌。夕卜架平台处的横杆应采用搭接方式,以便拆改后,卸料平台能顺利安装和使用。卸料平台在使用过程中,将两侧及前方用模板竖向封闭,防止杂物坠落。三、悬挑式卸料平台标准化构造平台宽3m,长5.2m,锚入建筑物1m,最大容许荷载1t。采用[18a槽钢作主梁,[14、[12槽钢作次梁,间距1000mm,6x19+1钢丝绳(021.5mm),夕卜侧钢丝绳距主梁端.档脚14#槽钢12#槽钢q根7么jOOO“12001000;000)0叫Z/200z3000r/尹】豆丁翹头500mm,两道钢丝绳间距1m°[14、[12槽钢次梁两端头焊接025短钢筋,上面插①48x3.5钢管作防护栏杆。防护栏杆高1.2m栏杆内侧挂密目安全网一道下口设180mm高挡脚板。楼板内预埋①22钢筋锚环,固定[18a槽钢主梁。四、悬挑式卸料平台标准做法图悬挑式卸料平台平面示意图11dId*1:丨3i】;J•翌1悶釀时和:toilStruct1W)51Omm,豆丁颇工F2.5W*«*«申犁俯1?#IHI対披耶严—1财刑月\<一r-14悝亠%°18皆悬挑式卸料平台侧立面示意图■:=:■■:=:■mU型环预埋示意图伸入楼板下层钢筋以下-豆丁施工效果图此处为脚手架空档,使用时应张挂安全平网.并于平网上部铺设专用防滑拠手扳勺随楼层周转便用口五、悬挑式卸料平台安装、移位、拆除本工程所采用悬挑式卸料平台为工具式的,安装移位拆除方便,周转率高。卸料平台的安装、移位、拆除均采用塔吊并辅以人工配合。为方便吊装并保证高空作业的安全,事先在工具式悬挑卸料平台两侧20#槽钢主梁边焊接平台吊装环。安装前必须准确预埋U型压环钢筋,安装时确保主梁准确插入预埋压环钢筋,并及时采用木楔楔紧卸料平台,以确保卸料平台定位,紧接着安装好斜拉绳,斜拉绳安装必须保证其处于绷紧状态,待斜拉绳安装完毕后,方可接解除塔吊吊装钢丝绳。卸料平台移位操作时,首先要清除干净卸料平台上所有可能坠落的杂物,然后在平台吊装环上系紧塔吊吊装绳,在确保塔吊吊装绳处于绷紧状态后,拆除斜拉绳并松开木楔,塔吊吊装过程中采用施工绳控制卸料平台,防止其旋转与外架碰撞。卸料平台安装、移位、拆除施工时最好选择白天工人下班期间操作,确保安全。六、悬挑式卸料平台限载本工程卸料平台设计承重为1T,为给施工工人直观的了解,在卸料平台上悬挂卸料平台限载标示牌,如下图:卸料平台限载标识牌(XX吨)6册钢管XX楓8H6木林xxm14帕钢管xx根吊斗XXkg钢管KX根扣件XXX*1.5m钢管4m钢管6m钢管模板木枋扣件吊斗159根59根39根1.7立方830套80KG七、悬挑式卸料平台安全管理措施1、制作对于现场制作或者从别处转运进场的卸料平台,必须进行进场检查验收,凡是成型后的卸料平台质量达不到要求的,一律不予使用。卸料平台检查要点如下:1)主次梁材料规格、型号,主梁为20#槽钢,次梁为12#、14#槽钢。2)主次梁间的焊接质量、挡板与主梁间焊接质量及吊装环斜拉环与主梁焊接质量检查,要求满焊,无焊接缺陷,焊缝高度为10mm.3)卸料钢丝绳规格,花篮螺丝规格检查。4)卸料平台尺寸及各部分构造尺寸检查。2、安装悬挑式卸料平台在就位安装完成后,在投入使用前,项目质检部门必须对悬挑式卸料平台安装情况进行检查,凡是未按技术要求进行安装的,—律重新安装,直至满足技术要求为止。对卸料平台的安装检查主要从以下几方面进行:1)卸料平台后锚检查,锚固每侧主梁的压环钢筋必须为2...

1、当您付费下载文档后,您只拥有了使用权限,并不意味着购买了版权,文档只能用于自身使用,不得用于其他商业用途(如 [转卖]进行直接盈利或[编辑后售卖]进行间接盈利)。
2、本站所有内容均由合作方或网友上传,本站不对文档的完整性、权威性及其观点立场正确性做任何保证或承诺!文档内容仅供研究参考,付费前请自行鉴别。
3、如文档内容存在违规,或者侵犯商业秘密、侵犯著作权等,请点击“违规举报”。

碎片内容

卸料平台搭设规范方案

确认删除?
VIP
微信客服
  • 扫码咨询
会员Q群
  • 会员专属群点击这里加入QQ群
客服邮箱
回到顶部