电脑桌面
添加小米粒文库到电脑桌面
安装后可以在桌面快捷访问

防护棚施工方案VIP免费

防护棚施工方案_第1页
1/5
防护棚施工方案_第2页
2/5
防护棚施工方案_第3页
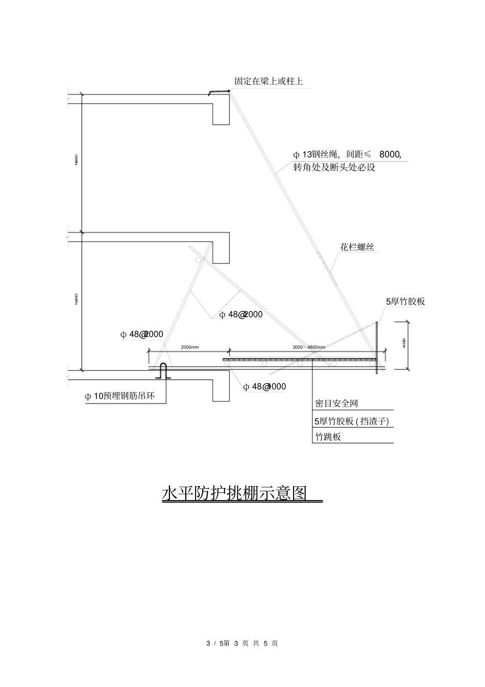
3/5
1/5第1页共5页一、工程概况及施工环境:渝能华城一期工程R1栋为一类高层建筑,总楼层为23/-3F,总建筑面积约17000.00㎡,其中塔楼±0.000m以上高度为66.70米。该工程B1户型外临皮鞋厂,C户型右临皮鞋厂、前临南郊路、左临钢筋加工房,B2户型前钢筋加工房、左临电力公司家属院,B1、B2后面及A户型临电力公司家属院房屋,施工场地狭窄,周边环境较为复杂,人员活动比较频繁。二、搭设水平防护棚位置:根据JGJ59-99安全文明施工标准及有关安全文明施工要求,结合本工程场地特别狭窄、场内外人员活动频繁的特点,在本工程主体结构第13层楼地面处搭设一道距外墙3000~4800mm的水平外挑防护棚,防止高空坠落物伤及过往行人,防护棚位置详《防护棚平面位置分布图》。2/5第2页共5页防护棚平面位置分布图三、防护棚的具体搭设方法:1.搭设工艺:预埋钢筋纵向钢管搭设反撑斜杆横向水平钢管搭设上口反拉斜杆铺竹跳板搭设栏杆设置反拉钢丝绳铺竹胶板及栏板铺安全网验收合格使用。2.防护棚的搭设防护棚搭设详《水平防护棚搭设示意图》。3/5第3页共5页290029002000mm5厚竹胶板(挡渣子)竹跳板φ10预埋钢筋吊环φ48@2000密目安全网1200φ48@1000φ48@20005厚竹胶板固定在梁上或柱上3000~4800mmφ13钢丝绳,间距≤8000,转角处及断头处必设花栏螺丝水平防护挑棚示意图4/5第4页共5页四、安全技术措施:1.在浇筑第13层梁板时,在楼层梁板上事先预留φ10@2000钢筋环。2.搭设纵向钢管尽可能全部选用6米长钢管其间距≤2000,在边梁处垫50mm厚木枋,防止钢管下翘。3.室内反撑钢管应斜撑在梁板阳角,防止斜撑杆滑移。4.室内横杆锁定在薄壁柱上,防止整体内外移到。5.室外横杆间距≤1000,与竹跳板搁置符合模数,横杆接长时应互相错位连接,原则上不得用直接扣直接接长,采用方向扣绑接形式。6.反拉钢管只能用整杆斜拉、并尽量靠于上层梁底与室内斜撑杆连接,5/5第5页共5页并保证架体不下翘。7.钢丝绳的设置距离≤8米,且大角、转点、断点处必须设置、保证防护棚不下翘,钢丝绳上设置2T的花栏螺丝进行调整。8.本防护棚外墙施工到防护棚处时方能拆除,拆除时按先搭后拆的原则进行拆除。9.搭拆必须派专人负责管理,并作好施工及安全技术交底,所有操作人员必须由专业外架班组操作,并持证上岗。10.搭拆时应在楼下作好安全防护、警界,地面人员不得进入此区域。11.防护棚搭设完毕后,必须待验收合格后方能使用。

1、当您付费下载文档后,您只拥有了使用权限,并不意味着购买了版权,文档只能用于自身使用,不得用于其他商业用途(如 [转卖]进行直接盈利或[编辑后售卖]进行间接盈利)。
2、本站所有内容均由合作方或网友上传,本站不对文档的完整性、权威性及其观点立场正确性做任何保证或承诺!文档内容仅供研究参考,付费前请自行鉴别。
3、如文档内容存在违规,或者侵犯商业秘密、侵犯著作权等,请点击“违规举报”。

碎片内容

防护棚施工方案

您可能关注的文档

确认删除?
VIP
微信客服
  • 扫码咨询
会员Q群
  • 会员专属群点击这里加入QQ群
客服邮箱
回到顶部