电脑桌面
添加小米粒文库到电脑桌面
安装后可以在桌面快捷访问

高压电杆加固方案VIP免费

高压电杆加固方案_第1页
1/12
高压电杆加固方案_第2页
2/12
高压电杆加固方案_第3页
3/12
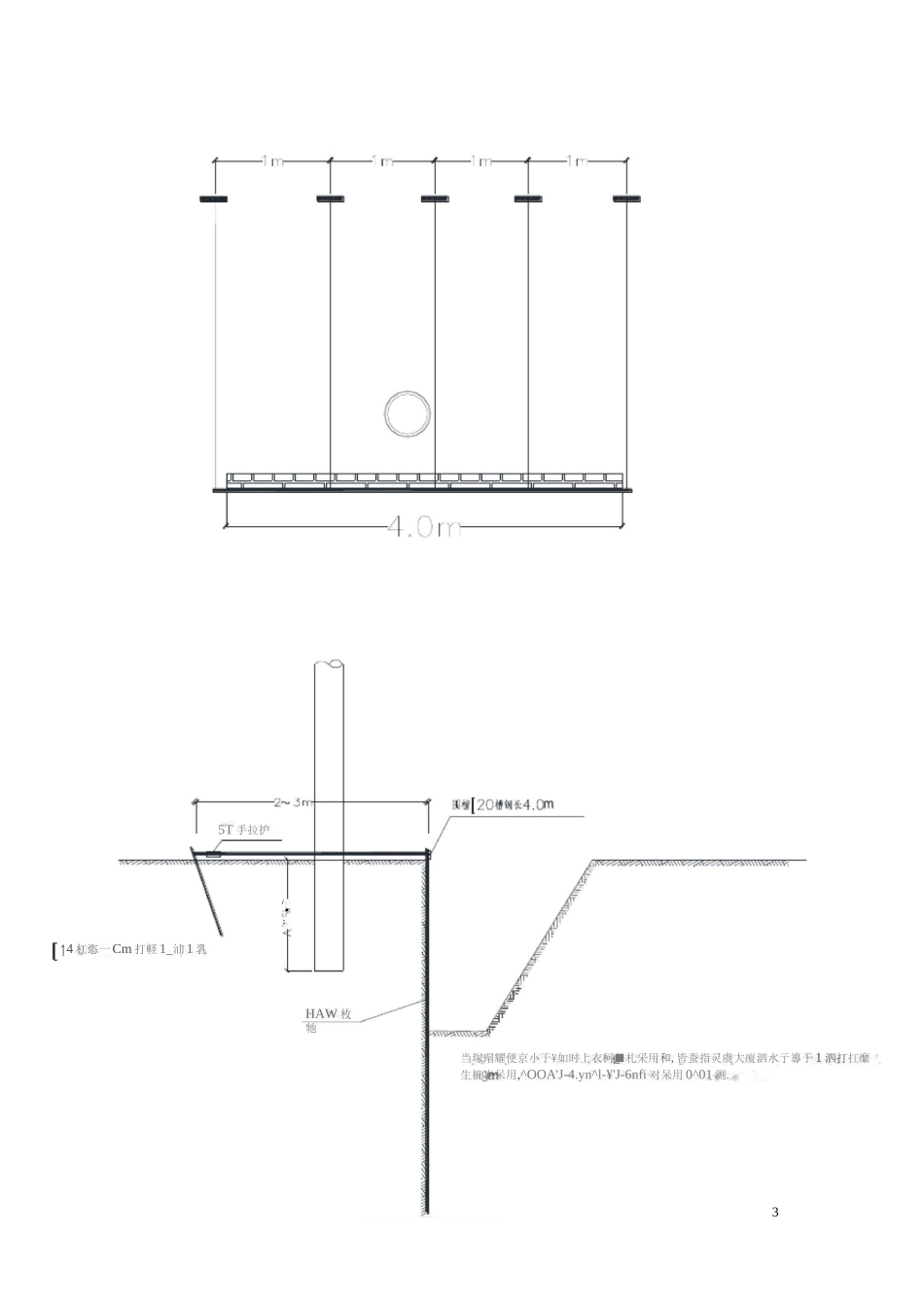
1高压电杆加固施工方案一、工程概况海安县江海路改造工程,位于海安县,城市次干路。西起现状永安路,东至现状通榆路;设计桩号围为K0+085〜K2+761.094,全长2676.094m;I标段:K0+085~K0+409.237永安路~草坝路段规划红线宽36m。沿线现状路侧以商业街、店铺、民房、小区为主。高压电杆线位于排水管线北侧1.2~1.7m,为避让杆线将污水管道调距电杆3m左右、管道最深处自然地面向下5.14m深、雨水管道距离杆线1.2~1.7m左右,管道最深处自然地面向下6.03m深、管道开挖深度在平均4.29m左右。根据招标文件要求先拆除路面、路基结构及砼障碍物,详清单序号22。由于高压线电杆现无法拆除,现采用拉森钢板桩支撑施工。二、编制依据《钢筋焊接及验收规程》JGJ18-2012《建筑基坑支护技术规程》(JGJ120-2012)《五金手册》《建筑施工手册》(第四版)江海路排水图纸三、施工技术方案为确保杆线的安全,我项目部采用手葫芦、槽钢、拉森钢板桩组合对高压电杆进行加固开挖。工艺流程场地平整—加固构件制作—测量放线—拉森钢板桩—支撑构件安装采用挖掘机将施工区域进行整平、压路机进行碾压。施工员根据施工方案进行定位放线、并控制水平标高线。定位放线后采用振拨锤将拉森钢板桩(6m、9m、12m根据基槽深度确定、必须保证入土与悬臂比三1:1,开挖深度大于3m的采用9m拉森钢板桩,开挖深度大于4.5m的采用12m拉森钢板桩)打入土,以电杆为中心做围护结构长4m,在2钢板桩顶部外侧焊好围檀([20槽钢),在距离钢板桩2~3m围外打入[14a槽钢2m长入地±1.5m做地锚桩,地锚桩与围檀采用5T手拉葫芦锚接。一根电杆支护主要工程量表序号名称规格数量1U型拉森钢板桩400*1254m2槽钢(围檀)204m3槽钢(地锚桩)14a2m*44手拉葫芦5T4个开挖深度序号类型桩号原地面标高m基槽标咼m开挖深度m1雨K0+1404.942.352.592雨K0+1604.942.332.613雨K0+2005.252.292.964雨K0+2506.521.974.555雨K0+2907.031.945.096雨K0+34071.036.037雨K0+3806.461.055.418污K0+4105.770.635.1434杠恣一Cm打軽1_汕1乳I..■::<5T手拉护当塚瑁耀便京小于¥如时上衣柯■札采用和,皆蚕指灵虞大廈泗水亍導于1泗打扛縻生机也呆用,^OOA'J-4.yn^l-¥'J-6nfi对呆用0^01测.HAW枚牠4电杆沉降及倾斜观测1、在电杆上设置沉降观点,根据水准点读取沉降点的高程,在施工过程中每日早、中、晚各测量一次,以便随时了解电杆沉降量,当沉降量过大时增加锚接并及时夯实回填土等相应措施。2、在电杆竖向轴线位置设置倾斜观测点,在施工过程中,每日早、中、晚各测量一次,以便随时了解电杆沉降量,当沉降量过大时增加锚接并及时夯实回填土等相应措施。四、安全措施工程安全管理上以“安全第一”做为指导思想,严格执行“安全第一、预防为主”的方针,贯彻在本工程施工的始终,认真贯彻有关安全生产的规章制度,加强对安全生产的检查,使管理工作标准化。1、确立安全检查制度安全员及作业队班组管理人员队在施工现场每班进行一次巡回检查,并填写《安全检查日志》。技术负责人及安全技术人员对设备工艺,进行不定期的专项检查。施工员在下达生产任务的同时,必须向施工作业对进行书面安全交底。2、加强安全教育、纪律教育a.加强安全教育,提高工人的安全意识,自我防意识实力安全第一的思想,培养安全生产所必须具备的操作技能。b.做好职能的定期教育及新工人、变换工种工人、特种作业人员的安全教育,新进场工人未经三级安全教育,不得上岗,新方法、新工艺,新设备、新材料及技术难度复杂的作业和危险较大的作业,要进行专门的安全教育,采取可靠的保证措施。c.所有技术工种人员必须持证上岗。3、完善安全保护措施a.所有施工人员必须戴安全帽,穿反光背心。其他特殊工种按规定佩戴好防护用品,(安全带、安全绳、绝缘鞋、绝缘手套、防护手套、防护手套)。b.做好施工现场的生活生产设施布置,合理安排场地临时设施,设置缓冲区,建立防汛组织,配齐消防设施,制定三防措施和管理制度,使防汛、防火防盗落实到实处。位确保工程安全施工需监理足够的标志宣传画、指示灯、警告牌。5C.靠近施工现场的道路,应设置明显的警告标志,加强车辆养护与维修,搞好各种机动车...

1、当您付费下载文档后,您只拥有了使用权限,并不意味着购买了版权,文档只能用于自身使用,不得用于其他商业用途(如 [转卖]进行直接盈利或[编辑后售卖]进行间接盈利)。
2、本站所有内容均由合作方或网友上传,本站不对文档的完整性、权威性及其观点立场正确性做任何保证或承诺!文档内容仅供研究参考,付费前请自行鉴别。
3、如文档内容存在违规,或者侵犯商业秘密、侵犯著作权等,请点击“违规举报”。

碎片内容

高压电杆加固方案

您可能关注的文档

确认删除?
VIP
微信客服
  • 扫码咨询
会员Q群
  • 会员专属群点击这里加入QQ群
客服邮箱
回到顶部