电脑桌面
添加小米粒文库到电脑桌面
安装后可以在桌面快捷访问

工程力学-范钦珊-课后习题答案-合订-VIP专享VIP免费

工程力学-范钦珊-课后习题答案-合订-_第1页
1/164
工程力学-范钦珊-课后习题答案-合订-_第2页
2/164
工程力学-范钦珊-课后习题答案-合订-_第3页
3/164
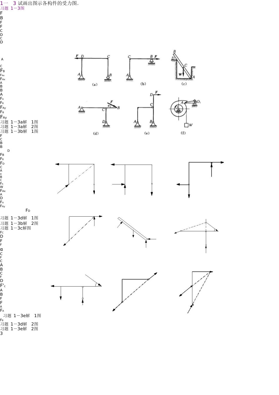
工程力学(静力学与材料力学)(第1章)范钦珊唐静静2006-12-181(教师用书)习题详细解答第1章静力学基础1一1图a和b所示分别为正交坐标系Ox1y1与斜交坐标系Ox2y2。试将同一个力F分别在两中坐标系中分解和投影,比较两种情形下所得的分力与投影。(a)(b)习题1-1图解:图(a):F=Fcosαi1+Fsinαj1分力:Fx1=Fcosαi1,Fy1=Fsinαj1投影:Fx1=Fcosα,Fy1=Fsinα讨论:ϕ=90°时,投影与分力的模相等;分力是矢量,投影是代数量。图(b):分力:Fx2=(Fcosα−Fsinαtanϕ)i2,Fy2=Fsinαj2sinϕ投影:Fx2=Fcosα,Fy2=Fcos(ϕ−α)讨论:ϕ≠90°时,投影与分量的模不等。1一2试画出图a和b两种情形下各构件的受力图,并加以比较。(a)(b)习题1-2图FFAyFAyCFCFFAxFAxABCACBD'CFFRD习题1-2a解2图FRDD习题1-2a解1图习题1-2b解图比较:解a图与解b图,两种情形下受力不同,二者的FRD值大小也不同。21一3试画出图示各构件的受力图。习题1-3图FBFFCDCDACFBFAxFAxABBAFAFBFAyFBFAy习题1-3a解1图习题1-3a解2图习题1-3b解1图FCBBDFBFBFDCAαBCFAWFAxADFAFAyFD习题1-3d解1图习题1-3b解2图习题1-3c解图FCDFFαCFCABCFDF'cABFFAFA习题1-3e解1图FB习题1-3d解2图习题1-3e解2图3DFFO1CAFOxOFOyABFAFB习题1-3e解3图W习题1-3f解1图FO1F'AAO1FOxOFOyFAAW习题1-3f解3图习题1-3f解2图1-4图a所示为三角架结构。荷载F1作用在B铰上。AB杆不计自重,BD杆自重为W,作用在杆的中点。试画出图b、c、d所示的隔离体的受力图,并加以讨论。习题1-4图FFAFAAABB1F'B2xBB习题1-4b解1图F'BF'B2xCF'B2yFFDxB2xF1F'DBB1WF'B2xCFDyB2yFB2yFDy习题1-4c解2图习题1-4c解1图F'B2yFDxDWF1F'习题1-4b解2图B2B习题1-4b解3图F1FAFBFDxDAB1习题1-4d解1图FDy习题1-4d解2图41一5试画出图示结构中各杆的受力图。-FEFTEFCFBBEFCxCCCFCyBF'EF'C(a-2)FEFB习题1-5b解2图WEF'D习题1-5b解1图DFAxF'BADFAxF'CxACFAyFDB(a-3)(a-1)F'CyFAy习题1-5a解图习题1-5b解3图FCF'CF'BCCFDFEF'EF'DDFAxEDEABFAyFB习题1-5c解图1—6图示刚性构件ABC由销钉A和拉杆D所悬挂,在构件的C点作用有一水力F。如果将力F沿其作用线移至D点或E点处(如图示),请问是否会改变销钉A和D杆的受力?5习题1-6图解:由受力图1-6a,1-6b和1-6c分析可知,F从C移至E,A端受力不变,这是因为力F在自身刚体ABC上滑移;而F从C移至D,则A端受力改变,因为HG与ABC为不同的刚体。FAFAFAAFGAGGADDFFDECCFCFH′HFHFHHHH习题1-6解2图FH习题1-6解3图习题1-6解1图1—7试画出图示连续梁中的AC和CD梁的受力图。-F1FF'CxFAxACFCxDFDxBCFBFCyFAyF'CyFDy习题1-7解图1—8图示为一液压冷铆机,活塞同铆枪为一整体。工作时油缸内油压力推动活塞下降,铆枪冲压铆钉将钢板铆接。活塞与油缸间为光滑接触。试分别画出:(1)油缸的受力图;(2)活塞铆枪的受力图;(3)铆钳的受力图。6习题1-8图ppq'qFQFQ'(b)(c)习题1-8解图1—9安置塔器的竖起过程如图所示,下端搁在基础上,C处系以钢绳,并用绞盘拉住;上端在B处系以钢缆,通过定滑轮D连接到卷扬机E上。设塔器的重量为FW,试画出塔器的受力图。FT1FwFT2FwFN习题1—9图习题1—9解图71一10图示压路机的碾子可以在推力或拉力作用下滚过100mm高的台阶。假定力F都是沿着杆AB的方向,杆与水平面的夹角为30°,碾子重量为250N。试比较这两种情形下,碾子越过台阶所需力F的大小。习题1-10图解:图(a):θ=arcsin4,∑Fx=0,Fsin(60°−θ)−Wsinθ=0,F=1672N5图(b):θ=53.13°,∑Fx=0,Fcos(θ−30°)−Wsinθ=0,F=217NyFyxBF30D30DWθWθFNFN习题1-10a解图习题1-10b解图1一11图示两种正方形结构所受载荷F均为已知。试求两种结构中1、2、3杆的受力。习题1-11图FF3D345DF3A1F2F1习题1-11a解1图F3′习题1-11a解2图8解:图(a):2F3cos45°−F=0,F3=2F(拉),F1=F3(拉),2F2−2F3cos45°=0,图(b):F3=F3′=0,F2=F(受压)F1=0,F2=F(受拉)FF3F3DAF2F1F3′习题1-11b解2图习题1-11b解1图1一12图示为一绳索拔桩装置。绳索的E、C两点拴在架子上,B点与拴在桩A上的绳索AB相连接,在D点处加一铅垂向下的力F,AB可视...

1、当您付费下载文档后,您只拥有了使用权限,并不意味着购买了版权,文档只能用于自身使用,不得用于其他商业用途(如 [转卖]进行直接盈利或[编辑后售卖]进行间接盈利)。
2、本站所有内容均由合作方或网友上传,本站不对文档的完整性、权威性及其观点立场正确性做任何保证或承诺!文档内容仅供研究参考,付费前请自行鉴别。
3、如文档内容存在违规,或者侵犯商业秘密、侵犯著作权等,请点击“违规举报”。

碎片内容

工程力学-范钦珊-课后习题答案-合订-

确认删除?
VIP
微信客服
  • 扫码咨询
会员Q群
  • 会员专属群点击这里加入QQ群
客服邮箱
回到顶部