电脑桌面
添加小米粒文库到电脑桌面
安装后可以在桌面快捷访问

防护棚详细搭设施工方案VIP免费

防护棚详细搭设施工方案_第1页
1/21
防护棚详细搭设施工方案_第2页
2/21
防护棚详细搭设施工方案_第3页
3/21
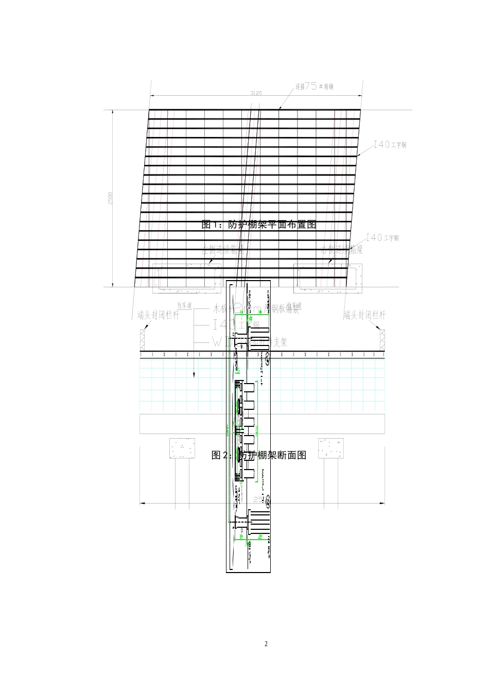
新建成都至都江堰铁路工程郫县高架特大桥跨绕城连续梁安全防护棚专项施工方案编制:审核:审批:中铁八局一公司成灌铁路工程一项目部2009年3月22日目录一、工程概况..................................................2二、防护棚总体布置............................................2(一)、总体方案..........................................2(二)、防护棚结构........................................51、立柱支架...............................................52、承重工字钢.............................................53、顶面封闭层.............................................6(三)、工程数量..........................................6三、防护棚施工过程交通管理....................................61、总体原则...............................................62、具体方法...............................................7(1)、施工阶段划分.......................................7(2)、立柱支架搭设.......................................8(3)、工字钢吊装施工....................................10(4)、支架成型后的安全防护..............................12四、施工技术安全措施.........................................13(1)、防护棚施工安全....................................13(2)、日常维护..........................................14(3)、规范塔吊使用......................................14附图一:......................................................15防护棚搭设专项施工方案一、工程概况新建成都至都江堰铁路客运专线(双线)正线长57.203公里(成都至郫县段120公里/小时,郫县至青城山段200公里/小时)。郫县高架特大桥多次跨越既有道路,犀浦世界乐园段铁路桥(D1K8+719.22)跨越既有绕城高速公路(K69+700)高架桥。绕城高速桥面实测标高为536.50m,铁路梁体底面高程为546.509m,净空高约10m,设置防护棚净空高5.5m。绕城高速公路为成都环状加放射形高速公路网的重要组成部分,此处为高架桥,设计标准为双向6车道,路幅宽度为34.5m,设计时速100公里,交通量大,不能停运。成灌铁路郫县高架桥与绕城高速高架桥呈81°角斜交,铁路桥与公路桥之间净空10m。二、防护棚总体布置(一)、总体方案成灌铁路跨绕城连续梁采用挂篮悬臂施工,安全重点主要为防护高空坠落物、施工用水等影响高速路行车。防护措施采用“门“式防护棚架遮盖为主,在高速路两侧和中间隔离带位置架设WDJ碗扣钢管立柱,形成个门式三立柱;在三立柱顶面设置横桥向通长I40工字钢支撑梁,用角钢焊接连接所有工字钢,按1.2m间距布置,形成主承重骨架;在承重骨架上铺装5cm厚木板+2mm厚薄钢板,形成封闭层和隔水层。防护棚长25m(以征地线为界,若图纸有变动,则要求防护棚宽度大于梁体投影面5m),宽31.2m(绕城路宽全部封闭),高5.75m。门洞净空为:宽11.4m(三车道)×高5.5m,见总体布置图。1图1:防护棚架平面布置图图2:防护棚架断面图2防护支架平面图断面图图3:防护棚架侧立面布置图(二)、防护棚结构3钢管支架I40工字钢厚2mm薄钢板厚5cm木板图4:防护棚架细部构造图1、立柱支架立柱支架采用碗扣杆件搭设,设置三个支墩。两侧支墩架立在绕城路最外侧行车道上,搭设宽度2.4m,长度25m;中间支墩架立在绕城高速路中间隔离带上。4行车道行车道支架跨越隔离带WDJ碗扣支架防护棚图5:防护棚架立柱支架布置图支架搭设规格按0.6m×1.2m水平断面、1.2m层高架设,中间立柱整体截面面积较小,为增加其承载能力,特进行加固处理,在隔离带两侧的0.6m×25m单体支架之间设置普通钢管横联杆,增强起稳定性。支架与桥面附属结构之间设置钢丝拉线,作为立柱支架的抗风稳定措施。2、承重工字钢主承重工字钢采用I40型,横公路向布置,间距1.2m。工字钢放置在碗扣支架托座槽里面,并与托座槽焊接处理,形成整体支架;在工字钢顶面设置顺公路向连接角钢,与工字钢顶面焊接连接,连接角钢串联每根工字钢,使所有工字钢连接成整体,角钢按4m间距...

1、当您付费下载文档后,您只拥有了使用权限,并不意味着购买了版权,文档只能用于自身使用,不得用于其他商业用途(如 [转卖]进行直接盈利或[编辑后售卖]进行间接盈利)。
2、本站所有内容均由合作方或网友上传,本站不对文档的完整性、权威性及其观点立场正确性做任何保证或承诺!文档内容仅供研究参考,付费前请自行鉴别。
3、如文档内容存在违规,或者侵犯商业秘密、侵犯著作权等,请点击“违规举报”。

碎片内容

防护棚详细搭设施工方案

您可能关注的文档

确认删除?
VIP
微信客服
  • 扫码咨询
会员Q群
  • 会员专属群点击这里加入QQ群
客服邮箱
回到顶部