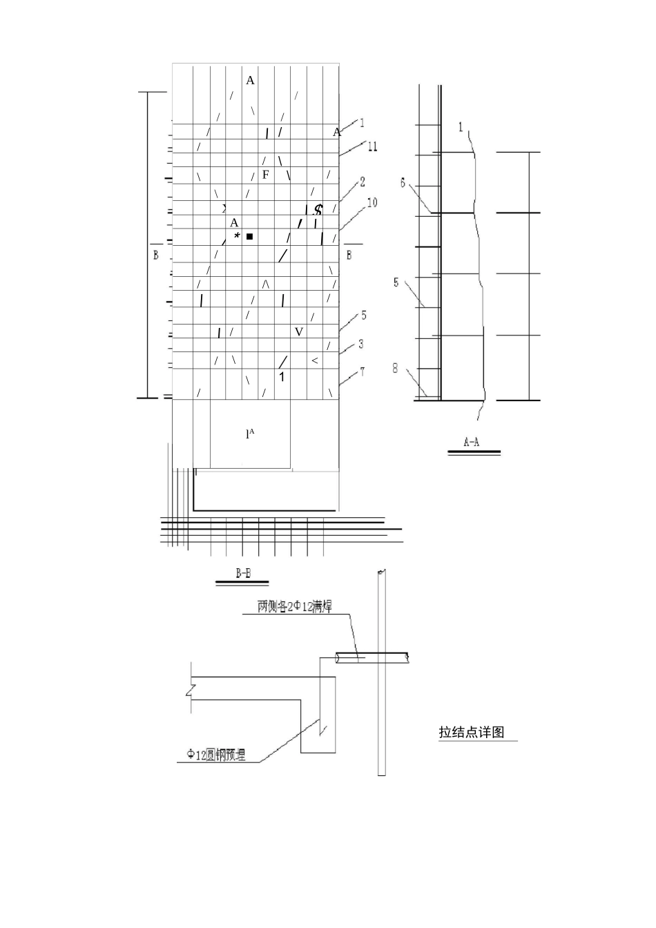
外架搭设施工方案1、工程概况清怡花苑 1#-8#楼工程位于杭州市上城区复兴街 7#地块内,北临复兴老街,南邻滨江路,地下一层,地上分别 6—12 层,总建筑面积 45771m2.本工程由杭州商宇房地产开发开发,杭州市城建设计院设计,浙江泛华监理全过程监理。1#楼檐高 32.9M,长 63M,宽 15.7M;2#、3#、檐高 20.6M,长 42.6M,宽 11.7M;4#楼檐高 20.6M、长 48M,宽 11.7M;5#楼檐高 19M,长 24.6M,宽 13.8M;6#、7#楼檐高 19M,长 23.1M,宽 14.5M;8#楼檐高 37.2M,长 45.2M,宽 14.8M。依照单位工程的不同情形确定外地外架;1#楼采纳双立杆,高度 10m;8#楼双立杆 10 上部均为单立杆;2#—7#楼均采纳单立杆。2、扣件式钢管外架组成1—立杆2—纵向水平杆3—横向水平杆4—脚手架5—剪刀撑6—连墙杆7—纵向扫地杆8—横向扫地杆9—底座10—挡脚杆11—扶手栏杆L1—连墙杆水平间H—脚手架高度H1—连墙杆件垂直间h—步距I—柱I—排距B//A\///\/A//\\/ F\/\//X、\ $/A! \/ * ■-/\////\//\/\/\///\/V//\/\/1\lA拉结点详图要紧构件及作用项次名称作用1立杆平行于建筑物并垂直于地面的杆件,是传递脚手架结构自重、施工荷载与风载的要紧受力杆件2纵向水平杆平行于建筑物,在纵向连接各立杆的通常水平杆件,是传递施工荷载给立杆的要紧受力杆件。3横向水平杆垂直于建筑,在横向连接脚手架内外立杆的水平杆件,是承担并传递施工荷载给立杆的要紧受力杆件。4扣件是组成脚手架结构的连接件直角扣件连接两根直交钢管的扣件,是依靠扣件与钢管表面间的摩擦力传递施工荷载、风荷载的受力配件。对接扣件钢管对接接长用的扣件,也是传递荷载的受力配件。旋转扣件连接两根任意角度相交的钢管的扣件,用于连接支撑斜杆与立杆或横向水平杆的连接。5脚手板提供施工条件,承担传递施工荷载给纵、横水平杆的板件,当设于非操作层时起安全防护作用。6剪刀撑设在脚手架的外侧面与墙面平行的十字交叉斜杆,可增强脚手架的纵向刚度,以保证脚手架具有必需承载能力。7横向支撑设在脚手架内外排立杆平面的、呈之字形的斜杆,可增强脚手架的横向刚度,提高脚手架的承载能力。8连墙体连接脚手架与建筑物的部件,是脚手架中既要承担、传递风荷载,又要防止脚手架在横向失稳或倾覆的重要受力部件。9纵向扫地杆连接立杆下端、距离座下皮 20cm 处的纵向水平杆,可约束立杆底端在纵向发生位移。10横向扫地杆连接立杆下端、位于纵向扫地杆上方的横向水平杆,可...