电脑桌面
添加小米粒文库到电脑桌面
安装后可以在桌面快捷访问

农村住宅户型设计大全图VIP免费

农村住宅户型设计大全图_第1页
1/16
农村住宅户型设计大全图_第2页
2/16
农村住宅户型设计大全图_第3页
3/16
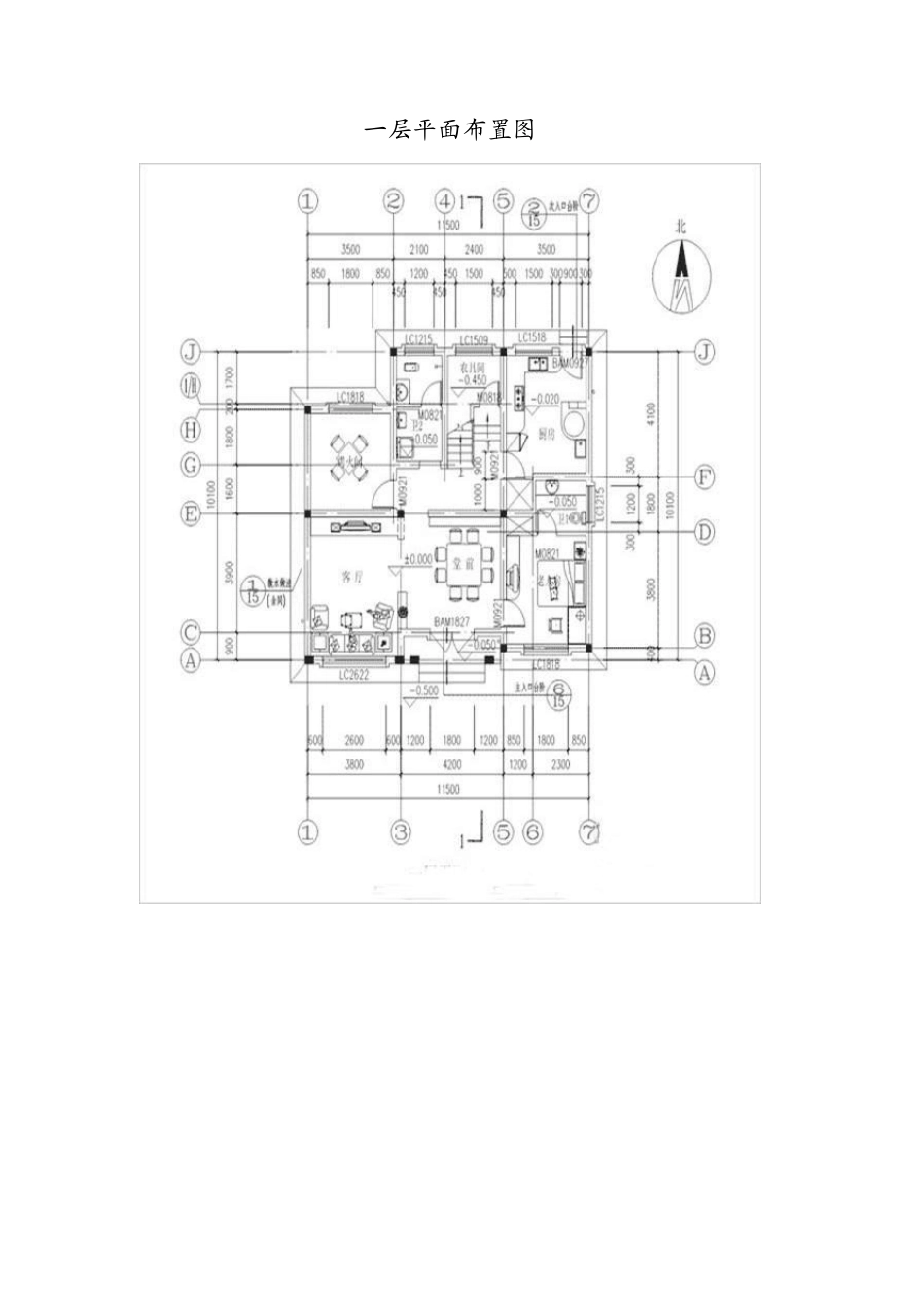
设计方案:3层单家独院式别墅,占地面积109.68平米,建筑面积287.82平米,建筑高度10.20米。一楼设有客厅、餐厅、卧室、厨房、卫生间等;二楼设有客厅、卧室 3间、卫生间、储藏室、阳台;三层设有客厅,卧室 3间、卫生间、储藏室、大露台。 本户型采用坡屋顶,外观造型古朴大方,色彩清新淡雅,富有古色古香的韵味;房间利用率高,明厨明卫,各使用空间都有较好的采光通风。 住宅效果图 一层平面布置图 设计方案:2层单家独院式别墅,占地面积89.96平米,总建筑面积185.92平米,建筑高度7.00米。一层设有客厅、卧室、厨房、餐厅、卫生间等;二楼设有客厅、卧室、书房、卫生间等。 本户型采用天蓝色瓦屋面、桔黄色面砖、米黄色乳胶漆,外观造型简洁大方,色彩清新淡雅房间尺寸设计适宜,空间利用率高,明厨明卫,各使用空间都有较好的采光通风。 住宅效果图 一层平面布置图 设计方案:2层双拼户型,占地面积178.46平米,总建筑面积284.2平米,建筑高度7.00米。一楼设有客厅、餐厅、厨房、卧室、卫生间等;二层设有客厅、卧室、书房、卫生间、大露台。 本户型采用蓝色坡屋顶,平面功能分区明确,布置合理,立面造型朴素大方而又活泼别致,色彩清新淡雅,具有浓郁的田园气息。 住宅效果图 一层平面布置图 设计方案:3层单家独院式别墅,占地面积170.38平米,建筑面积412.72平米,建筑高度10.2米。一层设有客厅、餐厅、卧室、厨房、卫生间、娱乐室、储藏室、车库;二层设有客厅、卧室、卫生间、书房、阳台;三层设有客厅、卧室、卫生间、储藏室、大露台。 本户型采用坡屋顶,灰色波形瓦,典型欧式别墅风格,外观、造型简洁大方,色彩明快,整体平面布局紧凑,功能分区合理,房间尺寸设计适宜,空间利用率高,明厨明卫,各使用空间都有较好的采光通风。 住宅效果图 一层平面布置图 设计方案:2层单家独院式别墅,占地面积76.60平米,建筑面积185.11平米, 建筑高度7.0米;一楼设有客厅、卧室、厨房、餐厅、卫生间等;二楼设有客厅、卧室、餐厅、书房、卫生间等。 本户型采用灰色屋面,桔黄色面砖,外观造型简洁大方,色彩清新淡雅,房间尺度设计适宜,空间利用率高,明厨明卫,各使用空间都有较好的采光通风。 住宅效果图 一层平面布置图 设计方案:3 层单家独院式别墅,占地面积8 9 .6 0 平米,总建筑面积1 9 4 .9 4平米,建筑高度 1 0 .2 米;一层设有客厅、卧室、厨房、餐厅、卫生间;二楼设有客厅、卧室、卫生间...

1、当您付费下载文档后,您只拥有了使用权限,并不意味着购买了版权,文档只能用于自身使用,不得用于其他商业用途(如 [转卖]进行直接盈利或[编辑后售卖]进行间接盈利)。
2、本站所有内容均由合作方或网友上传,本站不对文档的完整性、权威性及其观点立场正确性做任何保证或承诺!文档内容仅供研究参考,付费前请自行鉴别。
3、如文档内容存在违规,或者侵犯商业秘密、侵犯著作权等,请点击“违规举报”。

碎片内容

农村住宅户型设计大全图

您可能关注的文档

确认删除?
VIP
微信客服
  • 扫码咨询
会员Q群
  • 会员专属群点击这里加入QQ群
客服邮箱
回到顶部