电脑桌面
添加小米粒文库到电脑桌面
安装后可以在桌面快捷访问

工程量清单计价实例VIP免费

工程量清单计价实例_第1页
1/47
工程量清单计价实例_第2页
2/47
工程量清单计价实例_第3页
3/47
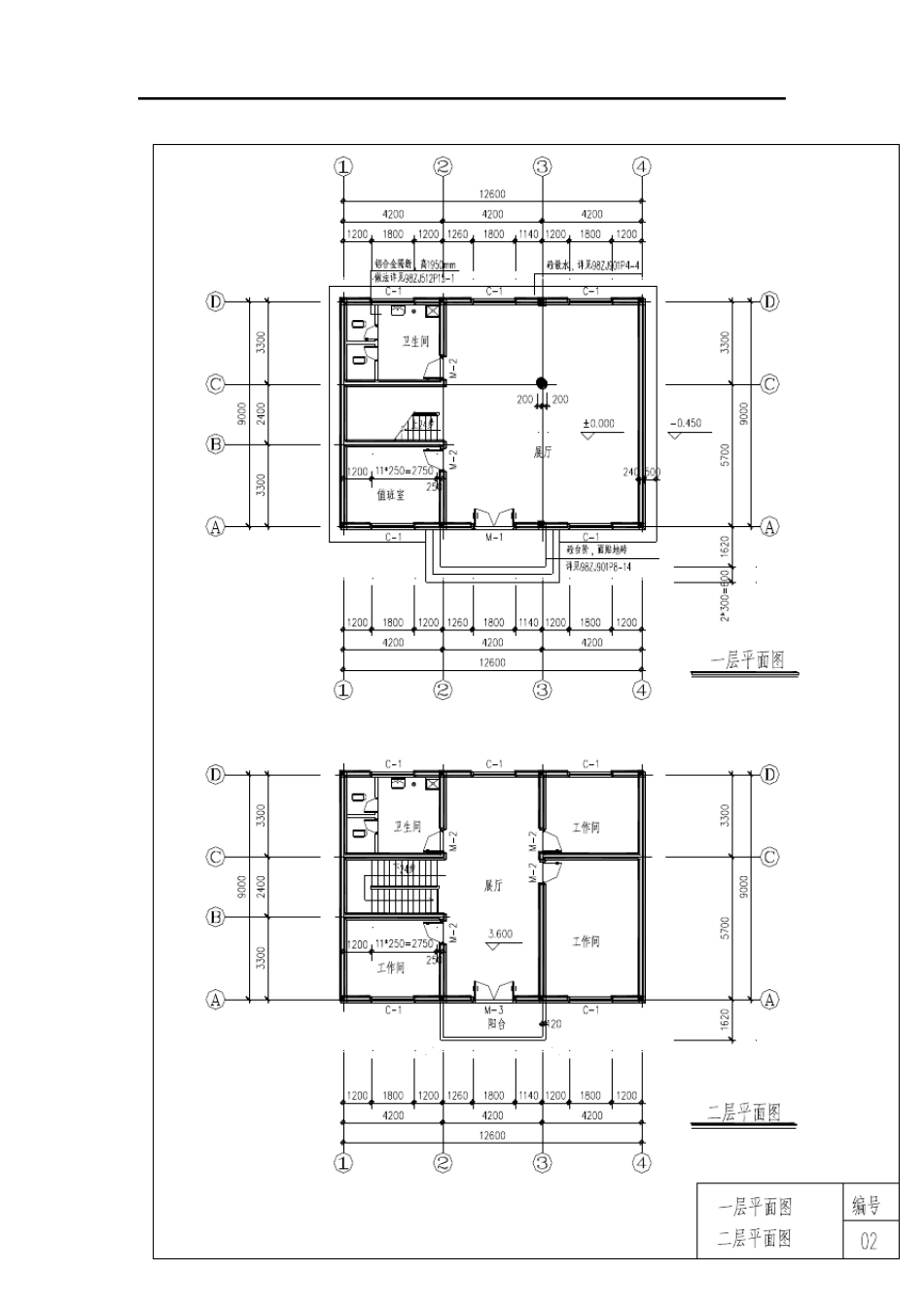
工艺制作展示楼 图纸目录 序号 图纸编号 图纸内容 1 01 图纸目录,设计说明 2 02 一层平面图,二层平面图 3 03 屋顶平面图,正立面图,门窗统计表 4 04 基础平面图,条基大样,ZJ-1,Z-1 5 05 二层楼面结构布置图,屋顶结构布置图,TG 6 06 L-1、L-2、L-3、L-4、QL、GZ-1、TB、TL-1 设计说明 1. 本工程为一栋二层工艺制作展示楼,层高均为3.60m,建筑面积237.28 ㎡。 2. 本工程设计除标高以m 为单位外,其余尺寸均为mm 单位。 3. 本工程墙体除二层天台拦板为120mm 外,其余均为240mm 标准砖实砌。 4. 本工程建筑设计采用中南标作设计标准图。具体做法如下。 地面:卫生间、混凝土台阶面层均为300×300 防滑地砖,其余均为600×600 抛光彩釉砖,20 厚 1:3 水泥砂浆找平,60 厚 C10 混凝土。做法详见 98ZJ001 地16。 楼面为600×600 抛光彩釉砖,楼梯、卫生间、天台为300×300 防滑地砖,20 厚 1:4 干硬性水泥砂浆粘贴。做法详见 98ZJ001 楼9。 展厅、工作间、值班室均做150mm 高彩釉砖踢脚线,水泥砂浆粘贴。 内墙面:卫生间做2.1m 高200×300 瓷板墙裙水泥砂浆粘贴,做法详见 98ZJ001 内墙8。其余全部为混合砂浆抹灰,做法详见98ZJ001 内墙4。抹灰面刷乳胶漆二遍。 外墙面: 60×240 面砖水泥砂浆贴面,做法详见 98ZJ001 外墙12。女儿墙内侧、天台内侧为水泥砂浆抹灰。 顶棚:全部为混合砂浆抹灰,做法详见98ZJ001 顶棚3。并刷乳胶漆二遍。 油漆:木门等木制构件刷清漆三遍。 屋面:三毡四油有隔热层现浇保温层。其中:隔热层为495×495×30mm 预制板,C20 混凝土,内配Ф4 钢筋双向中距 220; 防水层为三毡四油; 15 厚 1:3 水泥砂浆找平层; 保温层120 厚( 最薄 处 ) 1:8 水泥膨 胀 珍 珠 岩 找坡3% ; 热沥 青 马 蹄 脂 二道 隔气 层; 1:3 水泥砂浆找平厚 20。做法详见 98ZJ001 屋1。 5.本工程女儿墙压 顶、天台拦板墙压 顶均做C20 砼 60 厚,宽 为相 应 墙宽 + 30mm,内配2φ 6 纵向钢筋,φ 6@300 分 布筋。 6.一层室内圆 柱 为1 厚不 锈 钢饰 面,三夹 板基层,木龙 骨 。楼梯栏 杆 为不 锈 钢栏 杆 扶 手 。木门做100mm 宽 门套 ,外包 榉 木板。 7.结构部分 : 砌体材 料 :基础用M5.0 水泥砂浆砌筑,墙体用M5.0 混合砂浆,Mu10 砖砌筑。 混凝土材 料 :除结构...

1、当您付费下载文档后,您只拥有了使用权限,并不意味着购买了版权,文档只能用于自身使用,不得用于其他商业用途(如 [转卖]进行直接盈利或[编辑后售卖]进行间接盈利)。
2、本站所有内容均由合作方或网友上传,本站不对文档的完整性、权威性及其观点立场正确性做任何保证或承诺!文档内容仅供研究参考,付费前请自行鉴别。
3、如文档内容存在违规,或者侵犯商业秘密、侵犯著作权等,请点击“违规举报”。

碎片内容

工程量清单计价实例

您可能关注的文档

确认删除?
VIP
微信客服
  • 扫码咨询
会员Q群
  • 会员专属群点击这里加入QQ群
客服邮箱
回到顶部