开工仪式甲方发言稿 篇一:工程部开工仪式发言稿 工程经理开工典礼致辞 各位领导、各位来宾、同志们、伴侣们: 今日,我们在这里共同为...
建设单位甲方安全岗位职责 第 1 篇:建设单位甲方岗位职责分工岗位职责管理分工 第一部分 一、基本原则 坚持质量至上、安全第一的管...
甲方工程部规章制度篇一:甲方工程部管理制度】甲方工程部管理制度商丘凤祥置业有限公司部门职责1、根据公司开发项目的要求,负责项目的设...
安全施工管理制度第一条为加强建设工程安全生产管理,明确安全生产责任,有效预防安全事故,保障建设过程中人民群众生命和财产安全、工程安全,...
工程例会甲方发言 篇一:甲方第一次工程例会发言稿 第一次施工场地例会 1、业主、承包单位和监理单位分别介绍各自驻现场的主要 组织机...
施工场地例会甲方发言 篇一:工程例会甲方发言稿 二、监理公司对各项工作状况提出的看法和建议: 1、质量问题: 〔1〕、有部分套间消逝...
生产安全事故综合应急预XX 项目管理部生产安全事故综合应急预案1总则1.1 编制目的为保证碧桂园保利海悦天境花园项目顺利进行,给施工场区...
4 叮叮叮叮叮叮叮叮叮叮叮叮叮叮叮叮叮口工程部职责DDDDDDDDDDDDDDDDDDDDDDDDDDDDDDDDDDDDDDDDDDDDDDDDDDDDDDDDDDDDDDDDDDDDDDDDDDDDDDDD...
甲方工程部管理制度XXXXXXXX 开发建设有限公司部门职责1、根据市场营销部提供的公司开发项目的要求,负责项目的设计委托及审查,下达设计...
1精选公文范文甲方工程师工作心篇一:甲方工程师年度总结报告甲方工程师年度总结报告年度总结参与 XXX 工程建设以来,本人严格遵守公司制...
生产安全事故综合应急预XX 项目管理部生产安全事故综合应急预案1 总则1.1 编制目的为保证碧桂园保利海悦天境花园项目顺利进行,给施工场...
1/22工程管理制度(甲方制度)第一部分建设单位工程经理:一、工程经理的职能:1、工程经理为公司派驻工程项目施工现场的负责人,负责工程现...
工程部各岗位职责 工程部部长岗位职责 1、在董事长及总经理的领导下,认真贯彻落实工程部的工程计划目标和部门职责范围内的各项管理工作....
甲方项目部岗位职责 【篇一:房地产开发甲方工程部各岗位职责】 1 、认真贯彻执行公司的各项管理规章制度,逐级建立健全工程部各项管理...
甲方项目经理工作内容 默认分类 2009-05-25 17:49:16 阅读317 评论0 字号:大中小 甲方在开发前期的工作 一、 确定投资建设工程项...
浅谈房地产公司甲方项目经理如何做好工程管理 以 下 儿 点 针 对 工 程 管 理 这 个 很 庞 大 的 系 统 来 说 很 粗...
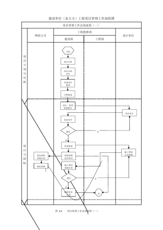
建设单位(业主方)工程项目管理工作流程图 项目管理工作总体流程(一) 项目立项与可研 设计与招标 物资公司 工程指挥部 设计单位 ...
投资开发公司甲方工程师的全部工作内容 第一篇: 甲方在开发前期的工作 一、 确定投资建设工程项目 对项目从前期开发角度入手,进行合...
甲方资料员工作内容 甲方代表的工作内容,各单位的要求不完全相同,工程项目有监理单位的,甲方代表的工件就轻松一些,否则工作就很庞杂,...
资料员工作流程 第一部分 开工前资料- 1、 中标通知书及施工许可证- 2、 施工合同- 3、 委托监理工程的监理合同- 4、 施工图审查...

