电脑桌面
添加小米粒文库到电脑桌面
安装后可以在桌面快捷访问

建筑平面图的绘制VIP免费

建筑平面图的绘制_第1页
1/27
建筑平面图的绘制_第2页
2/27
建筑平面图的绘制_第3页
3/27
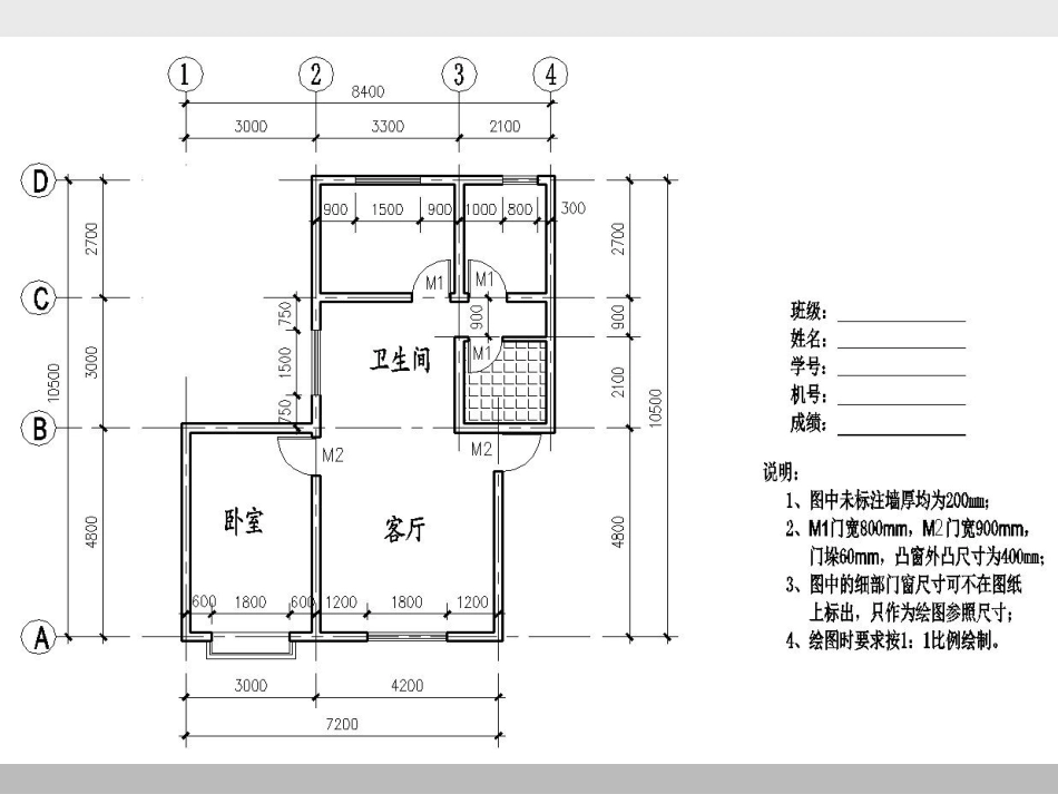
建筑平面图的绘制一、绘图准备1、设置绘图界限(LIMITS)图限大小:左下角点(0,0),右上角点(42000,29700)使用缩放命令(ZOOM)使设定的图形界限包含在绘图区中绘图准备——设置标注样式2、设置尺寸标注样式(DIMSTYLE)新建尺寸标注样式,根据《房屋建筑制图统一标准》(GB/T50001-2010)的要求进行设置。绘图准备——设置标注样式绘图准备——设置标注样式绘图准备——设置标注样式绘图准备——设置标注样式绘图准备——设置标注样式绘图准备——设置文字样式3、设置文字样式(STYLE)二、创建图层根据平面图中的各类不同对象创建图层并设置相应图线的线型、线宽和颜色(LAYER)创建图层——线型设置注意:定位轴线的线型应为单点长画线,在线型管理器(LINETYPE)中加载“CENTER”并将其当前对象缩放比例设置为30。三、绘制平面图1、绘制定位轴线在“轴线”图层下,使用构造线(XLINE)并利用偏移命令(OFFSET)绘制纵横向定位轴线,然后利用修剪命令(TRIM)对定位轴线进行相应的修剪。绘制平面图——定位轴线绘制平面图——墙线2、绘制墙线在“墙线”图层下,设置多线样式(MLSTYLE),并置为当前。绘制平面图——墙线在“墙线”图层下,使用多线(MLINE)根据定位轴线绘制墙线,多线比例设置为“1”,对正方式选择“无”。绘制平面图——墙线使用多线编辑(MLEDIT)对L形墙线(角点结合)和T型墙线(T形合并)进行编辑。绘制平面图——门窗3、绘制门窗分解(X)所有多线,然后对墙线进行修剪(TRIM),执行直线(L)命令,创建门窗洞口。绘制平面图——门窗在“窗”图层下,设置多线样式(MLSTYLE),并置为当前。绘制平面图——门窗使用多线绘制窗,然后使用多段线(PLINE)和偏移命令绘制飘窗。绘制平面图——门窗在“门”图层下,利用正交模式绘制门线。执行圆命令(CIRCLE),捕捉墙线门剖切线中心为圆心,捕捉另一个中心确定半径绘制圆,执行修剪命令绘制出门开启方向线。四、标注尺寸使用线性标注(DIMLINEAR)、连续标注(DIMCONTINUE)或快速标注(QDIM)对平面图外部和内部尺寸进行标注。四、标注文字使用单行文字(TEXT)对平面图进行标注,文字高度500。使用画圆和单行文字绘制定位轴线圆圈及其轴号,并书写图名(高度1000)和比例(高度700)。标注文字五、填充图案使用图案填充命令(HATCH),选择相应图例,确定相应比例。填充图案在边界选项中选择“添加:拾取点”然后再绘图区中选择卫生间区域。绘图完成后,检查全图并进行适当编辑修改,将图纸命名为“姓名+学号”后,保存到电脑。

1、当您付费下载文档后,您只拥有了使用权限,并不意味着购买了版权,文档只能用于自身使用,不得用于其他商业用途(如 [转卖]进行直接盈利或[编辑后售卖]进行间接盈利)。
2、本站所有内容均由合作方或网友上传,本站不对文档的完整性、权威性及其观点立场正确性做任何保证或承诺!文档内容仅供研究参考,付费前请自行鉴别。
3、如文档内容存在违规,或者侵犯商业秘密、侵犯著作权等,请点击“违规举报”。

碎片内容

建筑平面图的绘制

确认删除?
VIP
微信客服
  • 扫码咨询
会员Q群
  • 会员专属群点击这里加入QQ群
客服邮箱
回到顶部