电脑桌面
添加小米粒文库到电脑桌面
安装后可以在桌面快捷访问

施工竖井临时步梯方案VIP免费

施工竖井临时步梯方案_第1页
1/13
施工竖井临时步梯方案_第2页
2/13
施工竖井临时步梯方案_第3页
3/13
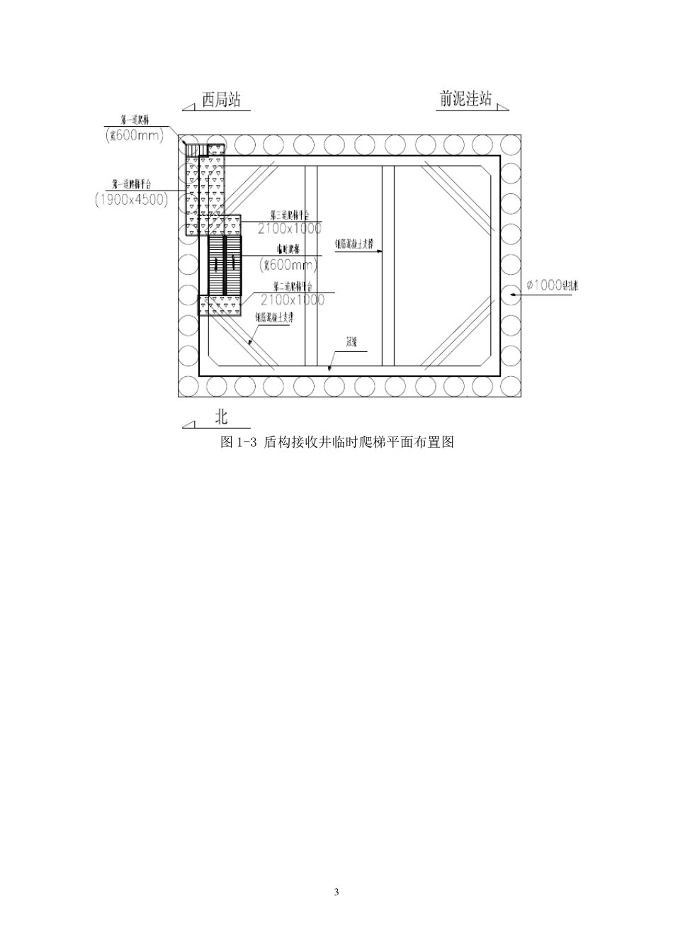
1 前泥洼站-西局站区间 盾构接收井、施工竖井兼盾构接收井临时布梯方案 1、 工程概况 1.1、围护结构基本情况 表1-1 前-西区间施工竖井和盾构接收井概况 工程项目 中心里程桩号 工法 基坑规模 (长x宽x深)(m) 围护形式 结构形式 施工竖井兼盾构接收井 右K43+375.945 明挖 28.58x15.7x26.7 Φ1000@1400 钻孔灌注桩+钢(砼)支撑 钢筋混凝土 盾构接收井 左 K43+302.473 明挖 10.9x14.9x24.7 Φ1000@1400(1500)钻孔灌注桩+钢(砼)支撑 钢筋混凝土 1.2、临时爬梯概况 施工竖井兼盾构接收井 施工竖井临时爬梯设在竖井东侧的中间位置,临时楼梯为折返梯,除三角架用膨胀螺栓固定于围护桩上外,其余部分均为焊接加固。施工竖井第一道支撑位钢筋混凝土支撑,第二、三道支撑为直径 600 的钢支撑,第四、五道支撑位直径600 钢支撑双拼的形式。第一道支撑至第三道支撑之间的爬梯随支撑进行折返,由于第四、五道支撑较密集,为保证临时爬梯的净空,在三至五道支撑每两道支撑之间设置两个折返平台,穿越支撑的梯道在远离基坑边沿的一侧,具体布置如图 1-1、图 1-2。 图 1-1 施工竖井兼盾构接收井临时爬梯平面布置图 2 图1-2 施工竖井兼盾构接收井临时爬梯断面图 盾构接收井 盾构接收井临时爬梯设置在盾构接收井北侧中间位置,同样采用折返梯, 除三角架用膨胀螺栓固定于围护桩上外,其余部分均为焊接加固。盾构接收井的支撑形式为第一道钢筋混凝土支撑,第二至第四道为直径600 的钢支撑,爬梯随钢支撑布设,具体布置如图1-3、图1-4。 3 图1-3 盾构接收井临时爬梯平面布置图 4 图1-4 盾构接收井临时爬梯断面图 2、 编制依据 (1) 施工竖井和盾构接收井结构施工图 (2) 工程所在地的现场调查资料 (3) 主要施工及验收规范、规程及标准 (4) 《施工现场临时用电安全技术规范》(JGJ46-2005) (5) 《建筑施工安全检查标准》(JGJ59-99) (6) 《建筑钢结构焊接技术规程》(JGJ81-2002\J218-2002) (7) 与工程相关的其它规范、规程及标准。 3、 施工计划 3.1、施工进度计划 (1)前期准备:10 天,主要进行斜梯、平台、三角架及安全网的预制。 5 ( 2) 临 时 爬 梯 施 工 : 临 时 爬 梯 具 备 搭 设 条 件 后 24 小 时 完 成 架 设 工 作 。 3.2、 材 料 计 划 序 号 钢 材 规 格 单 位 数 量 使 用 部 位 1 槽 钢 16a M...

1、当您付费下载文档后,您只拥有了使用权限,并不意味着购买了版权,文档只能用于自身使用,不得用于其他商业用途(如 [转卖]进行直接盈利或[编辑后售卖]进行间接盈利)。
2、本站所有内容均由合作方或网友上传,本站不对文档的完整性、权威性及其观点立场正确性做任何保证或承诺!文档内容仅供研究参考,付费前请自行鉴别。
3、如文档内容存在违规,或者侵犯商业秘密、侵犯著作权等,请点击“违规举报”。

碎片内容

施工竖井临时步梯方案

小辰3+ 关注
实名认证
内容提供者

出售各种资料和文档

确认删除?
VIP
微信客服
  • 扫码咨询
会员Q群
  • 会员专属群点击这里加入QQ群
客服邮箱
回到顶部