电脑桌面
添加小米粒文库到电脑桌面
安装后可以在桌面快捷访问

主厂房内墙涂料施工方案VIP免费

主厂房内墙涂料施工方案_第1页
1/12
主厂房内墙涂料施工方案_第2页
2/12
主厂房内墙涂料施工方案_第3页
3/12
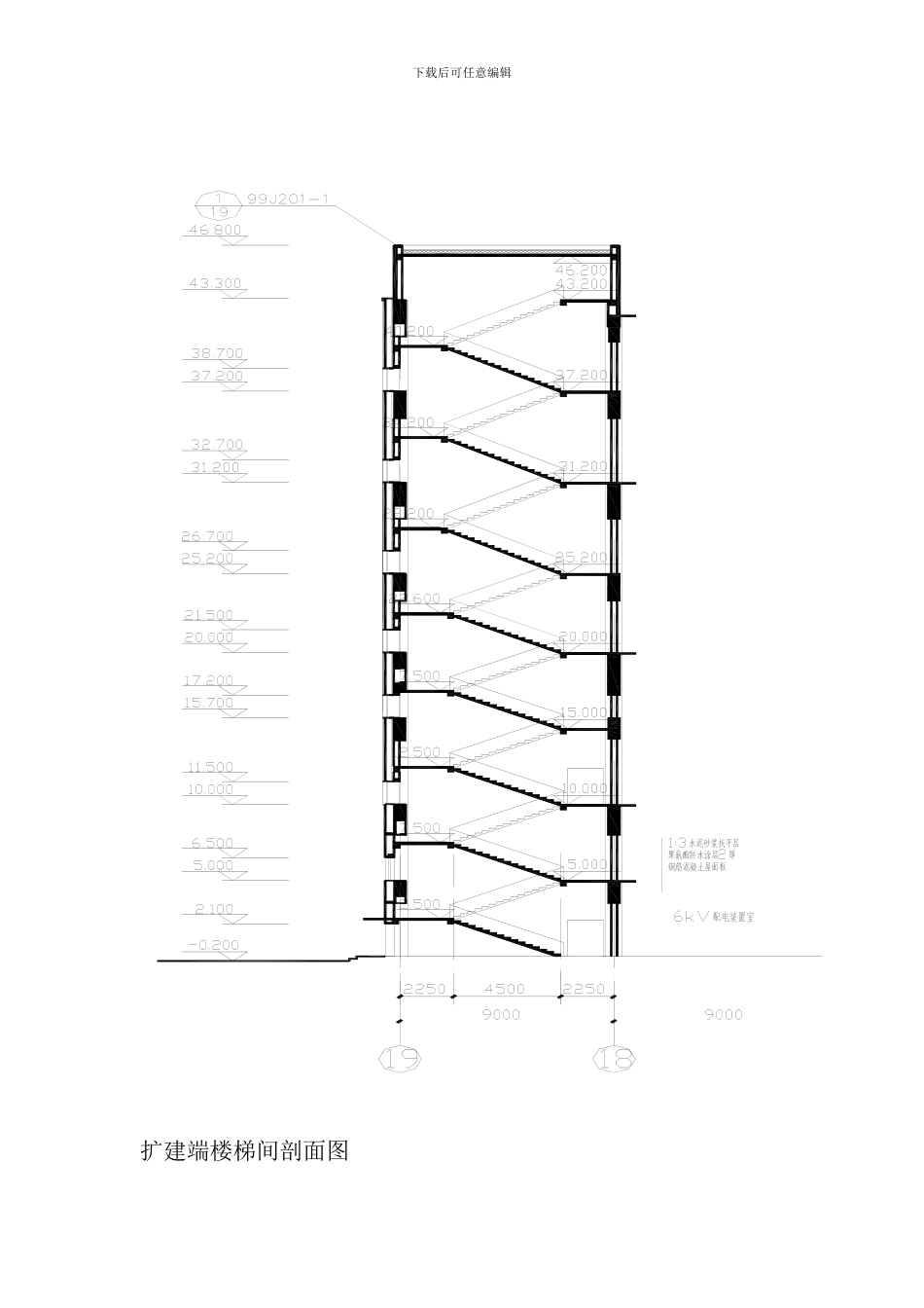
下载后可任意编辑主厂房内墙涂料施工方案一、工程概况:二道江发电厂三期工程主厂房内墙面装饰目前出现墙面涂料流坠、二次污染、涂料起皮,就其影响现场周围的环境。现对其不合格的砂浆基层及涂料面层铲除对墙体表面装饰重新进行处理。需要处理的工程量及部位、面积如下;汽机房 B 排零米至 10 米运转层;长度 171.02m、高度 10m,面积 1710.2m2。汽机房 B 排 10 米运转层以上;长度 165m、高度 15m,面积2475m2。固定端楼梯间四周墙面及顶棚面积;长度 9.11m、宽度 3.13m、高度 46.8m,面积 1480m2。扩建端楼梯间四周墙面及顶棚面积;长度 9.11m、宽度 3.13m、高度 46.8m,面积 1480m2。汽机梁柱及 A 排墙面积;4185汽机固定端山墙面积;1824 m2。汽机扩建端山墙面积;1824 m2。汽机间总面积;14978.2 m2。锅炉除氧煤仓间墙面;28517.6 m2。本次施工项目处理内墙面面积共计 43495.8m2。工程要求内墙(水泥砂浆墙面)涂料采纳中档乳胶漆, 此种涂料具有表面感观好;低温状态下不凝聚、不结块、不分离;耐碱、耐水性好等特点。工程施工各层高度情况见以下示意图;下载后可任意编辑扩建端楼梯间剖面图下载后可任意编辑扩建端楼梯间剖面图主厂房剖面图下载后可任意编辑下载后可任意编辑二、 施工准备下载后可任意编辑1、 材料准备:内墙刮墙腻子、封底漆、高档乳胶漆。这几种材料必须具备出厂合格证、准用证等必备证件。2、 施工工具:用于高层施工的施工设施,需要 3 台载重800kg、长度 7 米的电动吊栏、固定端、扩建端施工的绑扎的双排脚手架,处理基层的工具刮刀、清扫器具;涂刷用工具毛刷、涂料滚子、托盘、手提电动搅拌器;劳保用品用具口罩、手套、工作服;保护工具长布等。3、 施工防护:1)、由于是在机组运行的厂房内施工,故此对涂料有影响的其它设备、墙壁上的消防箱、配电箱、操作箱及水电等预先加以覆盖;室内水、暖、电、卫设施及门窗等需进行必要的遮挡。2)、混凝土及抹灰墙面不得有起皮、起砂、松散等缺陷。3)、厂房内施工环境不的有明火施工。三、 施工工艺1、 施工顺序基层处理 、第一遍满刮腻子、磨光、第二遍满刮腻子、磨光、封底漆、第一遍乳胶漆、磨光、第二遍乳胶漆、清扫。2、 施工要点1)、基层处理: a、 对基层的要求: (1)、 基层的碱度 PH 值应在 10 以下,含水率应在 8%和10%以下。(2)、基层表面应平整,阴、阳角及角线应密实,轮廓分明。(3)、原有的涂料层...

1、当您付费下载文档后,您只拥有了使用权限,并不意味着购买了版权,文档只能用于自身使用,不得用于其他商业用途(如 [转卖]进行直接盈利或[编辑后售卖]进行间接盈利)。
2、本站所有内容均由合作方或网友上传,本站不对文档的完整性、权威性及其观点立场正确性做任何保证或承诺!文档内容仅供研究参考,付费前请自行鉴别。
3、如文档内容存在违规,或者侵犯商业秘密、侵犯著作权等,请点击“违规举报”。

碎片内容

主厂房内墙涂料施工方案

您可能关注的文档

确认删除?
VIP
微信客服
  • 扫码咨询
会员Q群
  • 会员专属群点击这里加入QQ群
客服邮箱
回到顶部