电脑桌面
添加小米粒文库到电脑桌面
安装后可以在桌面快捷访问

ZSW支柱绝缘子金具VIP免费

ZSW支柱绝缘子金具_第1页
1/7
ZSW支柱绝缘子金具_第2页
2/7
ZSW支柱绝缘子金具_第3页
3/7
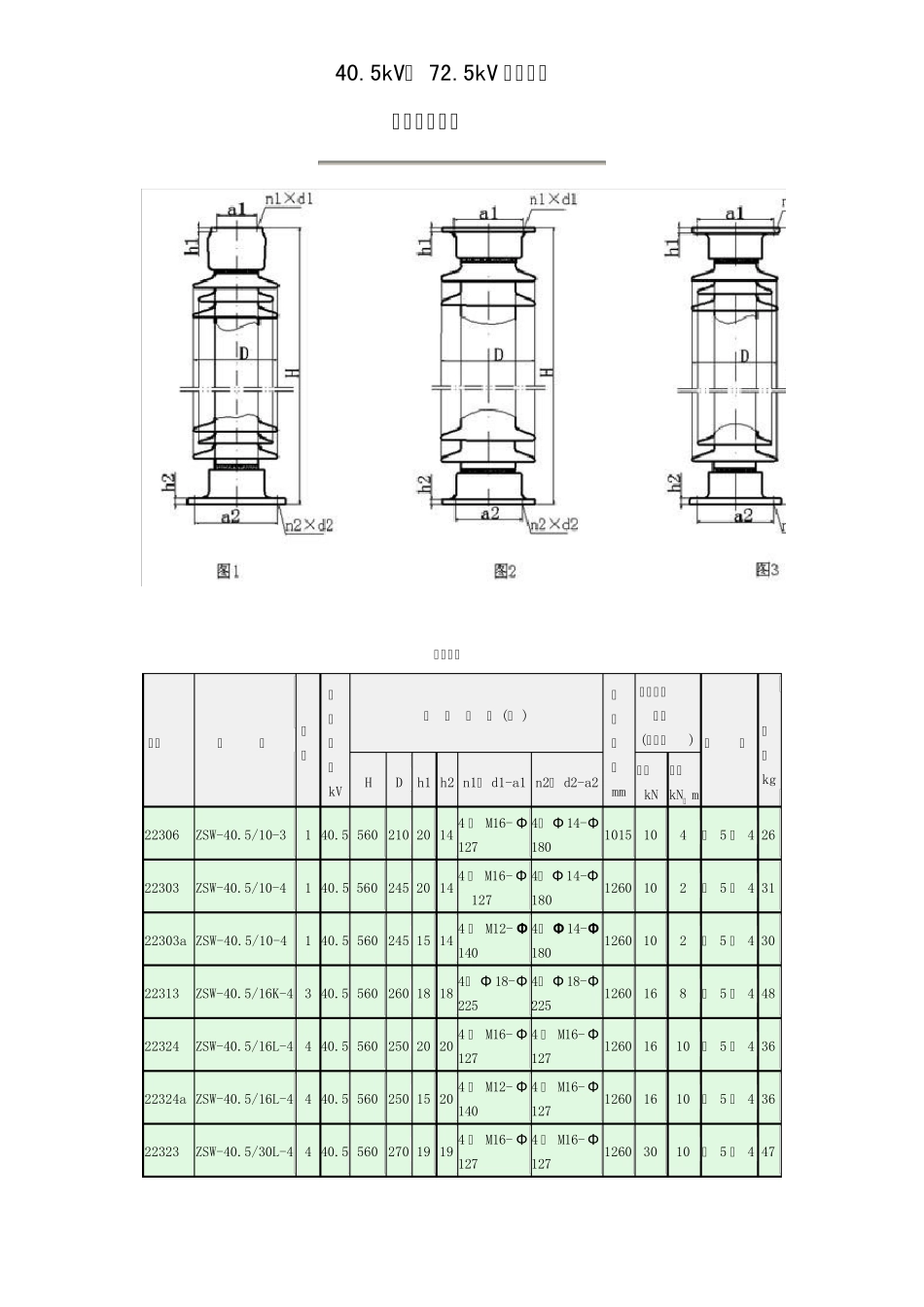
40.5kV~ 72.5kV 户外棒形支柱瓷绝缘子 主要参数 代号 型 号 图 号 电压 等级kV 主 要 尺 寸 (㎜ ) 公 称 爬 距 mm 机械破坏 负荷 (不小于) 伞 数 重量 kg H D h1 h2 n1× d1-a1 n2× d2-a2 弯曲 kN 扭转 kN· m 22306 ZSW-40.5/10-3 1 40.5 560 210 20 14 4 × M16- Φ127 4× Φ 14-Φ180 1015 10 4 大 5 小 4 26 22303 ZSW-40.5/10-4 1 40.5 560 245 20 14 4 × M16- Φ127 4× Φ 14-Φ180 1260 10 2 大 5 小 4 31 22303a ZSW-40.5/10-4 1 40.5 560 245 15 14 4 × M12- Φ140 4× Φ 14-Φ180 1260 10 2 大 5 小 4 30 22313 ZSW-40.5/16K-4 3 40.5 560 260 18 18 4× Φ 18-Φ225 4× Φ 18-Φ225 1260 16 8 大 5 小 4 48 22324 ZSW-40.5/16L-4 4 40.5 560 250 20 20 4 × M16- Φ127 4 × M16- Φ127 1260 16 10 大 5 小 4 36 22324a ZSW-40.5/16L-4 4 40.5 560 250 15 20 4 × M12- Φ140 4 × M16- Φ127 1260 16 10 大 5 小 4 36 22323 ZSW-40.5/30L-4 4 40.5 560 270 19 19 4 × M16- Φ127 4 × M16- Φ127 1260 30 10 大 5 小 4 47 22310 ZSW-72.5/8L-3 4 72.5 760 230 16 16 4 × M12- Φ140 4 × M12- Φ140 1815 8 4 大 8 小 7 42 22310b ZSW-72.5/8L-3 4 72.5 770 230 19 19 4 × M16- Φ127 4 × M16- Φ127 1815 8 4 大 8 小 7 43 22314 ZSW-72.5/8-3 1 72.5 740 230 16 14 4 × M12- Φ140 4× Φ 14-Φ180 1815 8 4 大 8 小 8 42 22315 ZSW-72.5/10-3 1 72.5 750 230 15 18 4 × M12- Φ140 4× Φ 18-Φ225 1815 10 4 大 8 小 8 45 22319 ZSW-72.5/10-4 1 72.5 850 255 15 16 4 × M12- Φ140 4× Φ 18-Φ225 2248 10 8 大 8 小 8 56 户内一片矩形母线固定金具(平放式) 型号Catalog No. 母线宽度 Bus w idth(mm) 主要尺寸Dimensions(mm) 重量Weight(kg) M H L1 L2 MNP-101 63 10 38 113 83 0.4 MNP-102 80 10 42 130 100 0.5 MNP-103 100 10 46 150 120 0.6 MNP-104 125 10 48 175 145 0.6 MNP-105 63 16 38 113 83 0.4 MNP-...

1、当您付费下载文档后,您只拥有了使用权限,并不意味着购买了版权,文档只能用于自身使用,不得用于其他商业用途(如 [转卖]进行直接盈利或[编辑后售卖]进行间接盈利)。
2、本站所有内容均由合作方或网友上传,本站不对文档的完整性、权威性及其观点立场正确性做任何保证或承诺!文档内容仅供研究参考,付费前请自行鉴别。
3、如文档内容存在违规,或者侵犯商业秘密、侵犯著作权等,请点击“违规举报”。

碎片内容

ZSW支柱绝缘子金具

您可能关注的文档

确认删除?
VIP
微信客服
  • 扫码咨询
会员Q群
  • 会员专属群点击这里加入QQ群
客服邮箱
回到顶部