电脑桌面
添加小米粒文库到电脑桌面
安装后可以在桌面快捷访问

民用建筑基本知识模板

民用建筑基本知识模板_第1页
1/29
民用建筑基本知识模板_第2页
2/29
民用建筑基本知识模板_第3页
3/29
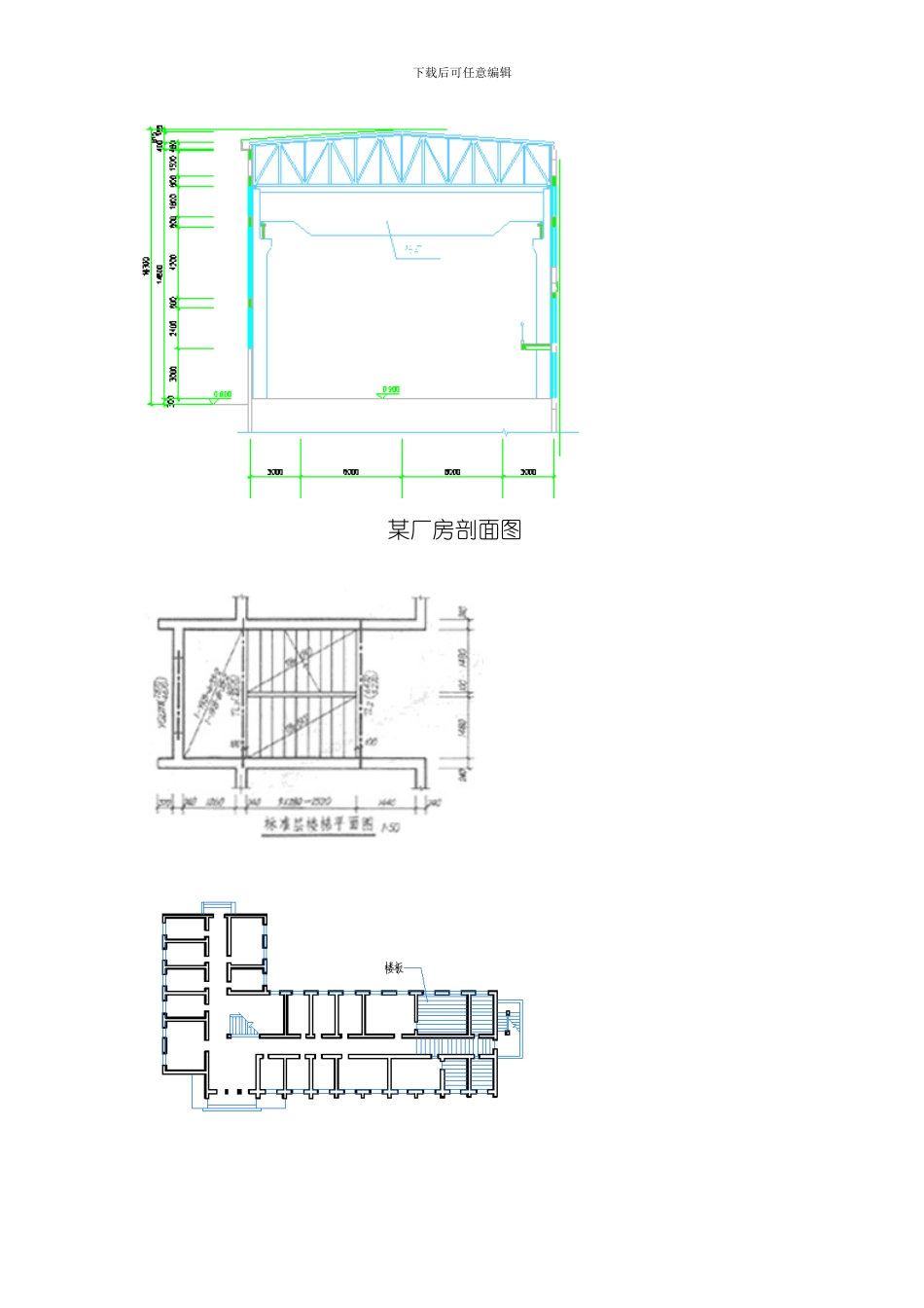
下载后可任意编辑民用建筑基本知识任务一 确定建筑物的级别一、 知识复习1、 建筑是人类为满足日常生活和社会活动而建造的。包括________和________。2、 建筑按其使用性质可分为__________、 __________和__________。3、 民用建筑一般是由__________、 __________、 __________、 __________、 __________、 __________等几大主要部分组成。4、 民用建筑是根据哪些因素分等级的? 5、 建筑构造设计的原则有哪些? 6、 耐火等级标准确定的依据? 二、 解决问题1、 根据耐久年限, 聊城职业技术学院的教学楼和宿舍楼分别属于哪一级? 2、 结合所学知识, 根据建筑的防火性能, 聊城昌润大酒店属于哪一级? 三、 预习提示1、 建筑标准化包括哪些方面? 2、 建筑模数的含义及作用? 3、 建筑模数的分类? 4、 在建筑模数协调中把尺寸分为哪几类? 说明它们之间的相互关系? 任务二 认识标准化尺寸一、 知识复习1、 为了保证建筑制品、 构配件等有关尺寸间的统一协调, 在建筑模数协调中尺寸分为 、 、 。2 、 建 筑 按 规 模 和 数 量 可 分 为 和 。下载后可任意编辑3、 火灾发生的条件有 _____ 、 _____ 、 ___ 三个, 缺一不可。4 、 构 成 建 筑 的 基 本 要 素 是 、 、 和 其中 起主导作用。5、 根据国家制订的《建筑统一模数制》, 中国采纳的基本模数M=_______。 6、 试说明建筑标准化的意义及建筑模数的分类? 二、 解决问题绘制图形说明标志尺寸、 构造尺寸和实际尺寸之间的关系? ( 注: 图形的相关尺寸要符合建筑模数) 三、 预习提示1、 定位轴线的含义? 定位轴线如何进行编号? 2、 砖墙、 变形缝处的砖墙的平面定位轴线、 高低层分界处的墙体定位轴线如何确定? 任务三 标注定位轴线一、 知识复习1、 定位轴线的定义? 确定定位轴线的意义? 2、 常见砖混结构定位轴线的划分原则有哪些? 3、 定位轴线在编号和画法上有何要求? 4、 开间和进深、 层高和净高的含义? 它们有何区别? 二、 解决问题试标注出图示建筑施工图的定位轴线? 某住宅楼平面图下载后可任意编辑某厂房剖面图下载后可任意编辑三、 预习提示1、 观察学院的建筑物, 找出基础的位置? 2、 基础在建筑物中的作用? 基础类型有哪些? 3、 基础埋深的定义及影响因素, 基础在构造上有哪些要求? 4、 地基和基础之间的区别和联系? 模块二 基础作业任务一 选择基础的埋...

1、当您付费下载文档后,您只拥有了使用权限,并不意味着购买了版权,文档只能用于自身使用,不得用于其他商业用途(如 [转卖]进行直接盈利或[编辑后售卖]进行间接盈利)。
2、本站所有内容均由合作方或网友上传,本站不对文档的完整性、权威性及其观点立场正确性做任何保证或承诺!文档内容仅供研究参考,付费前请自行鉴别。
3、如文档内容存在违规,或者侵犯商业秘密、侵犯著作权等,请点击“违规举报”。

碎片内容

民用建筑基本知识模板

确认删除?
VIP
微信客服
  • 扫码咨询
会员Q群
  • 会员专属群点击这里加入QQ群
客服邮箱
回到顶部