电脑桌面
添加小米粒文库到电脑桌面
安装后可以在桌面快捷访问

竣工验收证书A3表格

竣工验收证书A3表格_第1页
1/2
竣工验收证书A3表格_第2页
2/2
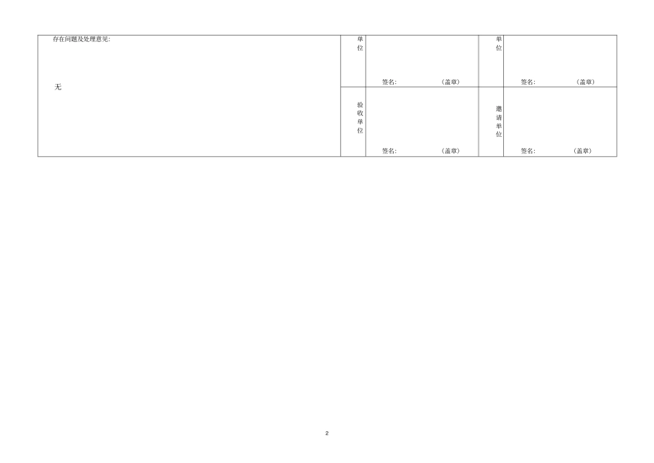
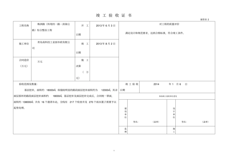
1 竣 工 验 收 证 书施管表 2 工程名称株洲路(科苑经一路-滨海公路)综合整治工程开工日期2013 年 6 月 3 日对工程的质量评价满足设计和规范要求,达到合格标准,符合竣工条件。施工单位青岛高科技工业园市政有限公司竣工日期2013 年 8 月 2 日合同造价(万元)万元施工决算(万元)验收范围及数量:基层挖补,面积约18000m2;纵缝较明显的路段面层挖补面积约为12000m2,其余面层损坏的路段面层挖补面积约18000m2,基层挖补及面层挖补完成后,合同统一罩面,面积约 138000m2;共有 16 个港湾车站,全线有217 个检查井及 270 个雨水篦子需要予以起垫处理。竣 工 验 收日期 2014 年 1 月 6 日参加竣工验收单位意见建设单位签名:(盖章)设计单位签名:(盖章)监理施工2 存在问题及处理意见:无单位签名:(盖章)单位签名:(盖章)验收单位签名:(盖章)邀请单位签名:(盖章)

1、当您付费下载文档后,您只拥有了使用权限,并不意味着购买了版权,文档只能用于自身使用,不得用于其他商业用途(如 [转卖]进行直接盈利或[编辑后售卖]进行间接盈利)。
2、本站所有内容均由合作方或网友上传,本站不对文档的完整性、权威性及其观点立场正确性做任何保证或承诺!文档内容仅供研究参考,付费前请自行鉴别。
3、如文档内容存在违规,或者侵犯商业秘密、侵犯著作权等,请点击“违规举报”。

碎片内容

竣工验收证书A3表格

文库响当当+ 关注
实名认证
内容提供者

该用户很懒,什么也没介绍

相关文档

确认删除?
VIP
微信客服
  • 扫码咨询
会员Q群
  • 会员专属群点击这里加入QQ群
客服邮箱
回到顶部